户型优化,受制于户型,感觉做出来的方案没有太大的特色,求助!!!

仅供分享不做任何商业用途,版权归原作者所有,谢谢配合。

马上注册,结交更多好友,享用更多功能,让你轻松玩转社区。

您需要 登录 才可以下载或查看,没有帐号?注册

x
本帖最后由 13675087301 于 2021-12-3 11:30 编辑

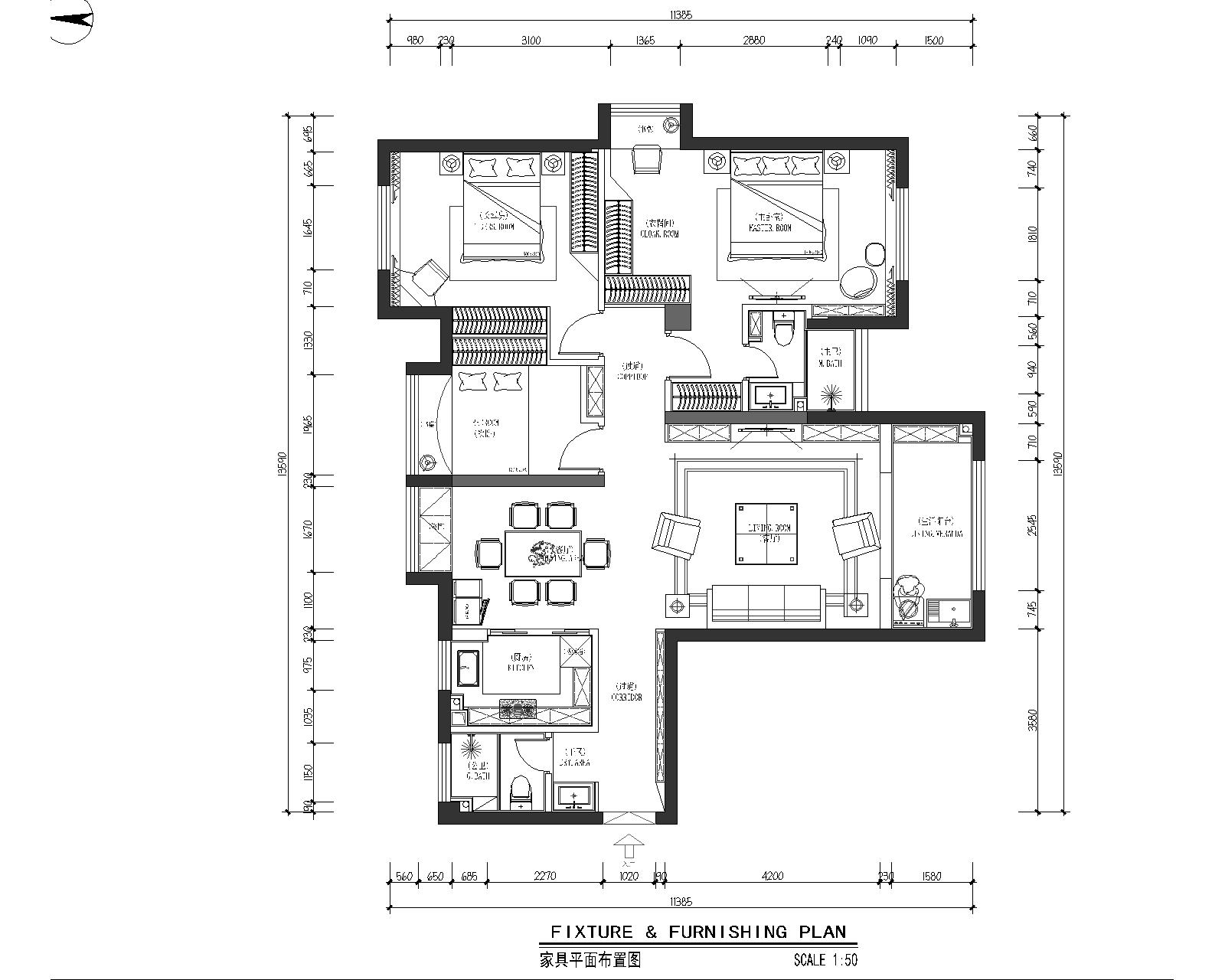
业主有两个小孩,一个20岁男孩,准备主卧给他作为以后婚房,一个十几岁女儿,还有她自己跟老公一间,想要现代轻奢的感觉,其他要求不多。
衫林华府2#1101-模型.jpg

 

衫林华府2#1101.rar

1.06 MB, 下载次数: 24

精华推荐
换一换

发表评论1

  • 13675087301 2021-12-3 11:31:23

    附件有cad文件,各位大佬帮帮忙,录用,金币补偿,谢谢了

户型优化,受制于户型,感觉做出来的方案没有太大的特色,求助!!!
拓者推荐
  • 2026拓者 CAD户型方案 发布
  • 【武汉站—“樱”你而来】获客实操
  • 【武汉站—“樱”你而来】户型优化
  • 【武汉站—“樱”你而来】风水
  • 【梁志天】西安曲江·九曲松间
  • 无间-上海汤臣君品合院方案
  • 君品-汤臣金桥花园项目方案
  • 无间-上海大宁中建玖上琅宸
  • HWCD-烟台洲際酒店深化方案图册
  • 琚宾新作-资兴东江湖度假酒店
  • 2025拓者年费+案例Vip会员说明!
  • 【 拓者年费--CAD图纸】
  • 【 拓者年费--户型方案】
  • 【 拓者年费--豪宅视频】
  • 【 拓者年费--灵感图库】