每一次设身处地的体验、每一次深入的沟通交流、从客户的生活方式入手、从客户想要的家的氛围开始,去做客户最忠实的聆听者、认真去体会客户的生活感悟,最终为客户装扮一个他们喜爱、想要的家。 业主需求 The owner needs 女业主有较多的首饰、包包和衣服,希望有能展示的空间,每个房间有独立的衣柜;屋主偶尔健身。屋主儿子喜欢动漫、手办;家里有钢琴,冷藏食品很多,后来考虑地下室放一个冰柜;色调和软装要求高级,适当绚丽;常住5人。 改造策略 Reform strategy 整体空间从负一楼到三楼。 优势:整体南北通透,通风效果好,前后都有阳台和庭院。 劣势:空间利用不是很合理。
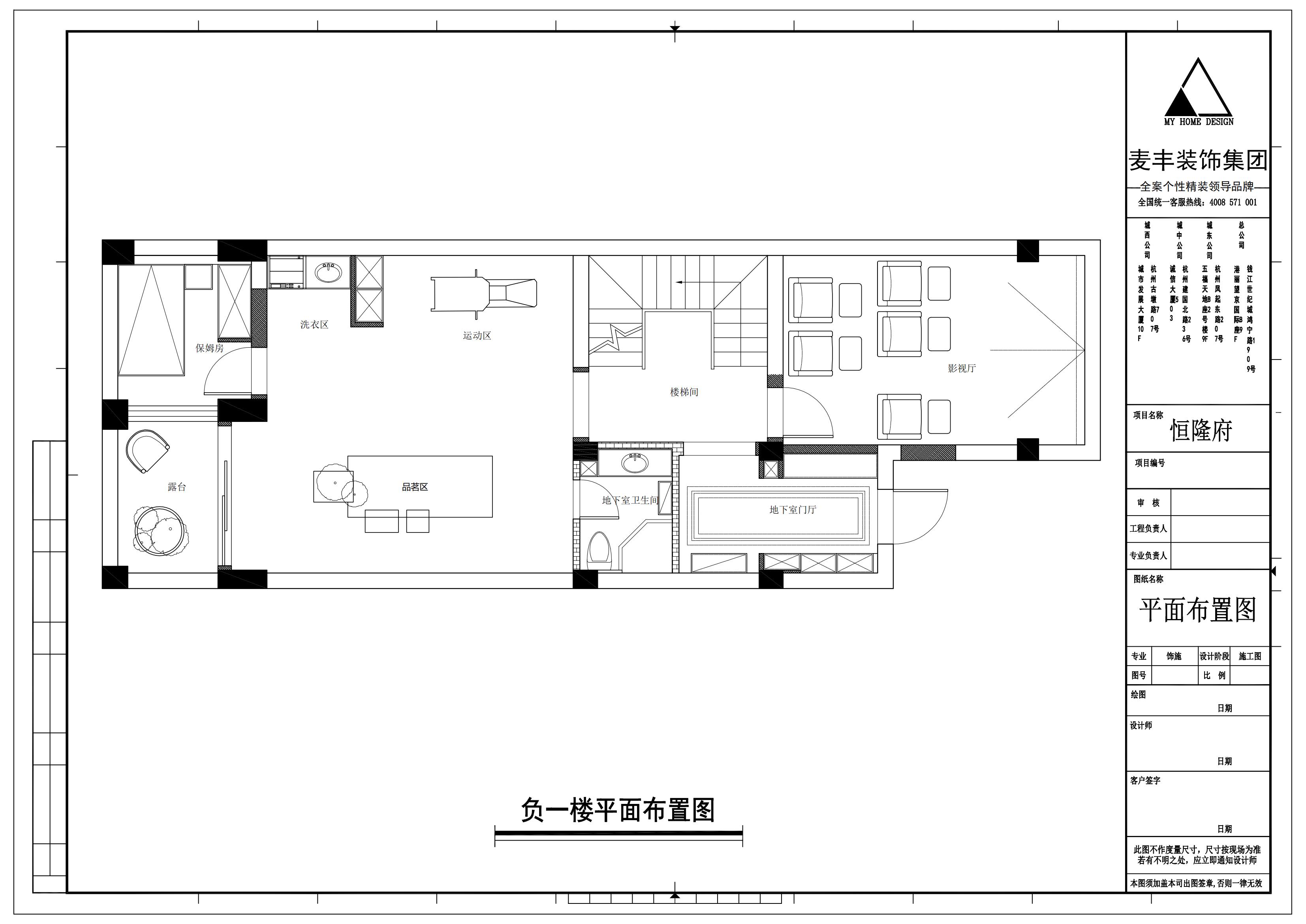
负一楼:入户门调整了方向,让原本浪费的大空间变成了影视厅;把下沉的部分采光井(有顶)利用起来做保姆间;客户不考虑安装电梯,所以把中庭的空间利用起来做一个卫生间,同时把门厅延长。
一楼:一楼的卫生间借用负一楼,把原一楼卫生间的部分空间给厨房,变大厨房的空间。
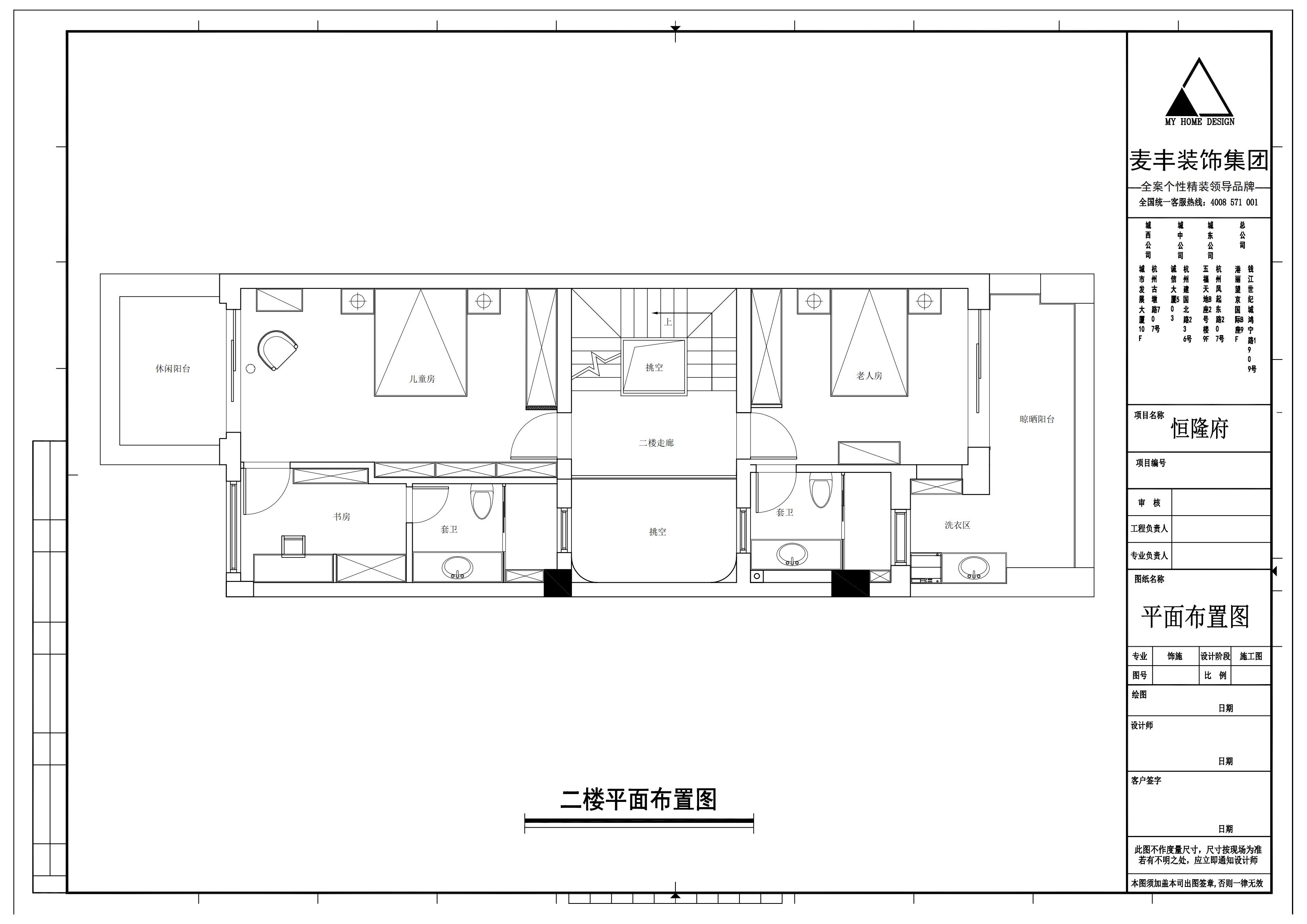
二楼:南面几个空间做了调整,再加上能包进的阳台,整体调整成一个套房;北面房间的区域开门比较多,封住设备区的门,打开阳台的窗户(外面阳台能封起来)做成移门,进出更方便。
三楼:把套房的走道部分留给楼梯间;把挑空部分做成衣帽间,同时卫生间的门从衣帽间进出;卫生间做窄做长,让出来的空间可以把客房变大,长度适当延长到衣帽间,增加卫生间的面积。 |
精华推荐
换一换
-
麦丰设计 2021-12-4 13:45:09卧室|BEDROOM
主卧套房摒弃了传统美式中的一些元素,以优雅的线条呼应美式意境,勾勒出具秩序美感的护墙,将轻奢融合其中。
/主卧套房卫浴空间以大理石砖填充,灰白纹理让空间更显澄澈、透亮。浴缸结合双层台阶设计,兼顾了实用与安全性能。
/客房实木护墙板与金属线条散发着低调优雅的气质,米白色家具点亮空间整体明度,通过明与暗的风格演绎,空间娟然素美,质感永恒。
/老人房素雅的杏色融入空间,形成奶油般的温柔质感,线条将精致感悄悄嵌入岁月,在静谧时光中优雅流连。
/儿童房
小景|LITTLE BING
案例信息丨Case Information项目地点:安吉恒隆府项目类型:住宅项目性质:全包项目面积:380㎡项目风格:美式轻奢设计师:麦丰国际设计施工:浙江麦丰装饰设计工程有限公司软装:东麦家居主要用材:大理石、实木护墙板、乳胶漆、墙布、瓷地砖、实木复合地板摄影:林峰文字编辑:BQ.


本帖最后由 麦丰设计 于 2021-12-4 14:19 编辑