-
15107227198 2022-1-6 09:25:35
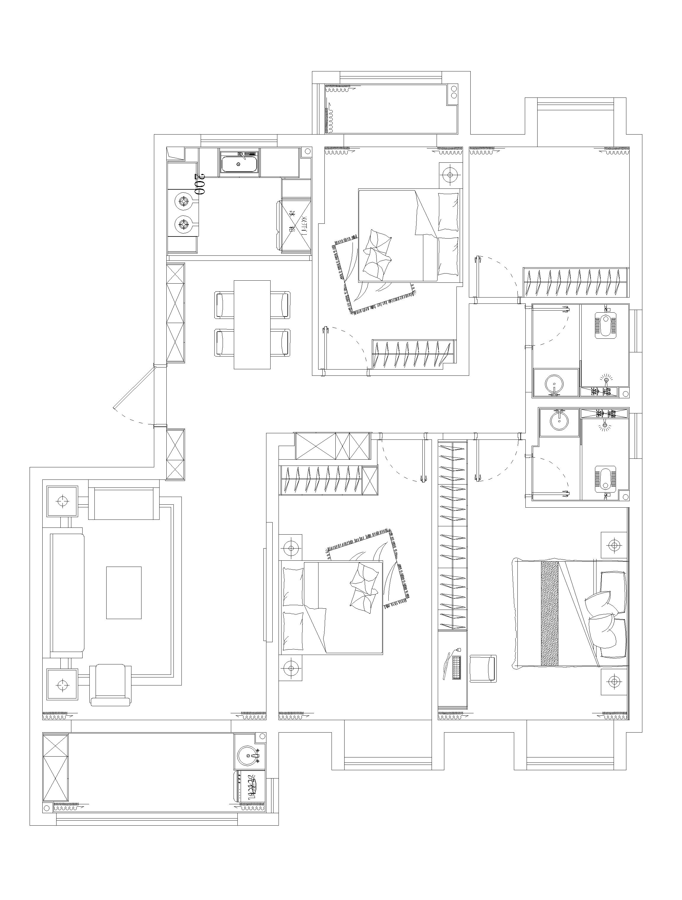
小混子 发表于 2022-1-4 08:33
厕所是不是可以换成钻石淋浴房然后加马桶加洗手台,我卡了一下尺寸够得,便池实在不太舒服,不管是洗澡还是 ...
后期业主考虑二胎,如果是做淋浴房,小宝宝洗澡就很不方便
-
小混子 2022-1-4 08:33:06
厕所是不是可以换成钻石淋浴房然后加马桶加洗手台,我卡了一下尺寸够得,便池实在不太舒服,不管是洗澡还是男孩子尿尿
后期业主考虑二胎,如果是做淋浴房,小宝宝洗澡就很不方便



餐厅位置够吗,减去60灶台,只剩2米2了