大户型方案优化来大佬帮忙提供思路

2022-1-4/ 户型方案/ 户型交流/ 只看大图 阅读模式
仅供分享不做任何商业用途,版权归原作者所有,谢谢配合。

马上注册,结交更多好友,享用更多功能,让你轻松玩转社区。

您需要 登录 才可以下载或查看,没有帐号? 注册

x
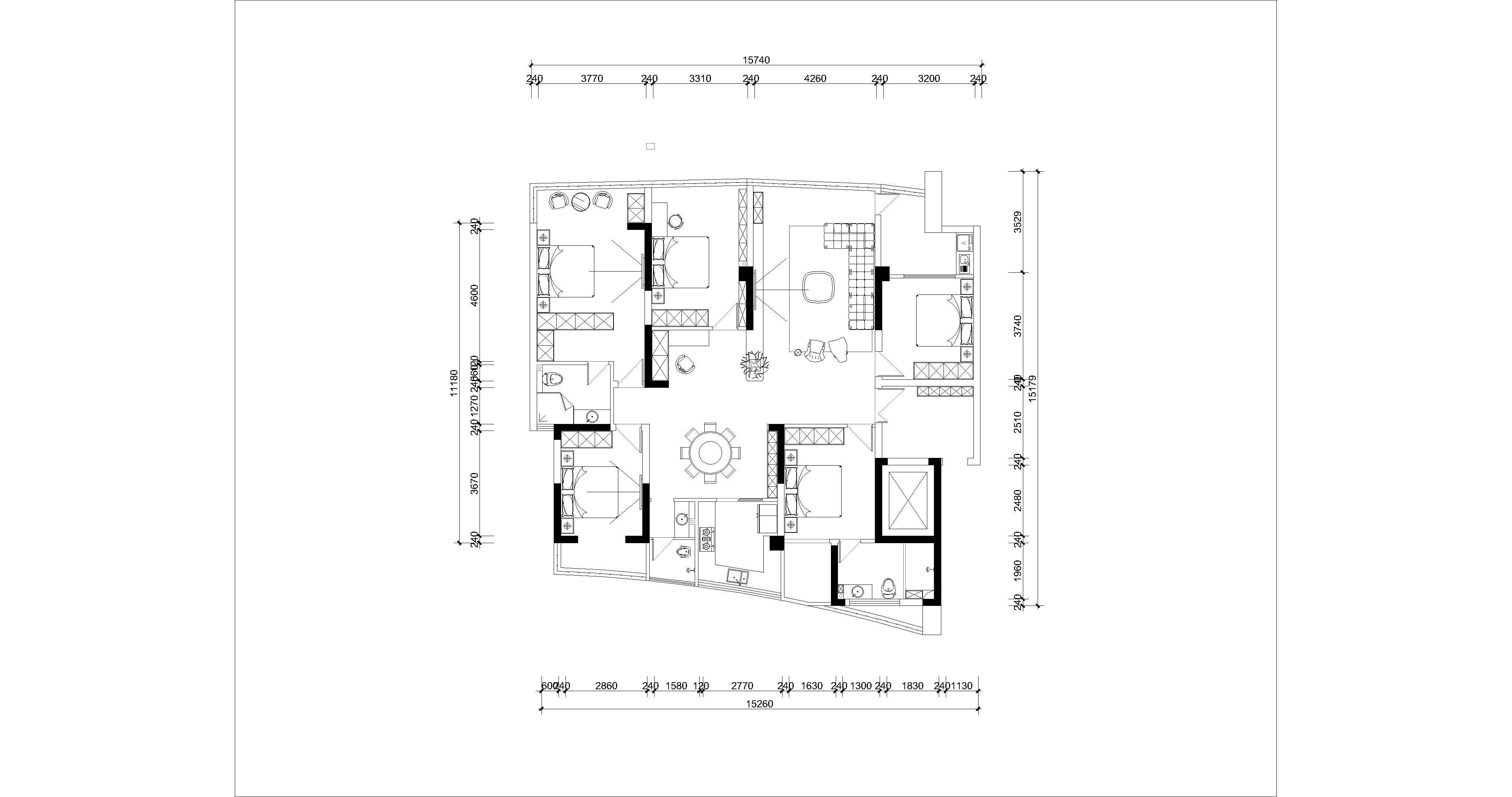
业主要求轻奢大气
改造设计漂亮点
改成3个卫生间
保留5间卧室
两个儿子+老人一起住。
常规的方案业主自己看过很多了,希望有一些不一样的方案。
方案上的不合理或者更多的想法希望大佬多多交流指正。


1.jpg
2.jpg

 

精华推荐
换一换

发表评论6

  • zgp123123 2022-1-5 10:51:57

    Lhz- 发表于 2022-1-5 10:11
    这个厨房可以改这么远吗(提前到燃气公司审批,否则你要背锅了),原厨房做卫生间有弊端

    厨房这么改没问题,原始的气表在阳台上,只需要移动一下燃气表就可以了

  • Lhz- 2022-1-5 10:11:15

    这个厨房可以改这么远吗(提前到燃气公司审批,否则你要背锅了),原厨房做卫生间有弊端

    厨房这么改没问题,原始的气表在阳台上,只需要移动一下燃气表就可以了
  • zgp123123 2022-1-5 09:37:25

    CAD文件

    1.rar

    405.1 KB, 下载次数: 108

大户型方案优化来大佬帮忙提供思路
拓者推荐
  • 朴悦-华润小径湾-悦海白兰墅
  • 琚宾-杭州保亿观云钱塘城
  • 召禾设计-上海汤臣君品
  • CCD-华润置地南通澐璟
  • HBA&DAS-中海江南玖序
  • CCD-华润 CCBD 889㎡设计方案
  • 【召禾设计]天际江景超大平层方案
  • 【WSD世尊】建发·云启玉诸
  • CCD-华润玺宸上院中叠样板间
  • CCD-武汉绿城外滩玫瑰园别墅
  • 2025拓者年费+案例Vip会员说明!
  • 【 拓者年费--CAD图纸】
  • 【 拓者年费--户型方案】
  • 【 拓者年费--豪宅视频】
  • 【 拓者年费--灵感图库】