现代客餐厅丨三代同堂的家

仅供分享不做任何商业用途,版权归原作者所有,谢谢配合。

马上注册,结交更多好友,享用更多功能,让你轻松玩转社区。

您需要 登录 才可以下载或查看,没有帐号? 注册

x
现代简约风的六口之家。


补充内容 (2022-2-11 20:21):
全景链接:https://vr.justeasy.cn/view/3l1j6318090t8m40-1631091088.html

补充内容 (2022-2-11 20:37):
对接效果图公司:陨星效果图

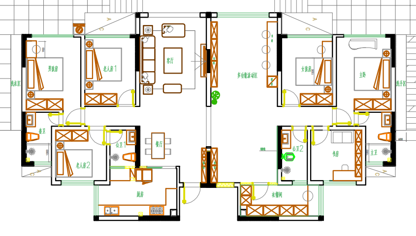
六口之家,刚性需求,每个空间都安排的满满当当。

六口之家,刚性需求,每个空间都安排的满满当当。

学习区是妈妈与孩子的专属办公及学习空间。活动区的整面落地镜是为可爱的小女儿学习舞蹈准备的。

学习区是妈妈与孩子的专属办公及学习空间。活动区的整面落地镜是为可爱的小女儿学习舞蹈准备的。

现代风暖色调搭配,让整个家温馨又舒适。

现代风暖色调搭配,让整个家温馨又舒适。

客厅是家主喜欢的玻璃门展示柜与岩板+木饰面造型的结合。线条简洁不失档次。

客厅是家主喜欢的玻璃门展示柜与岩板+木饰面造型的结合。线条简洁不失档次。

整面墙的储物柜与书柜承载着这个家所有的积累和向往。

整面墙的储物柜与书柜承载着这个家所有的积累和向往。

花园的一边是活动休闲区,另一边是老人家喜爱的菜园。

花园的一边是活动休闲区,另一边是老人家喜爱的菜园。

三两朋友相聚,烧烤,观景,赏鱼。是这座城市里为数不多惬意又自在的地方。

三两朋友相聚,烧烤,观景,赏鱼。是这座城市里为数不多惬意又自在的地方。

孩童玩耍嬉闹声,在这里能洗去一整天的疲惫。

孩童玩耍嬉闹声,在这里能洗去一整天的疲惫。

 

精华推荐
换一换

发表评论0

现代客餐厅丨三代同堂的家
拓者推荐
  • CCD--580㎡福州建总雍湾
  • 观享际 x 北谷地产
  • 会讲方案的设计师,行走的印钞机
  • 郝泽伟设计工作室 | 《木朴》
  • 【CCD+SRD】苏州·双湖玫瑰园
  • CCD-华润 CCBD 889㎡设计方案
  • 【召禾设计]天际江景超大平层方案
  • 【WSD世尊】建发·云启玉诸
  • CCD-华润玺宸上院中叠样板间
  • CCD-武汉绿城外滩玫瑰园别墅
  • 2025拓者年费+案例Vip会员说明!
  • 【 拓者年费--CAD图纸】
  • 【 拓者年费--户型方案】
  • 【 拓者年费--豪宅视频】
  • 【 拓者年费--灵感图库】