这种户型怎么布置,太难了!!!求大神帮忙!!!

2022-3-27/ 户型方案/ 户型交流/ 只看大图 阅读模式
仅供分享不做任何商业用途,版权归原作者所有,谢谢配合。

马上注册,结交更多好友,享用更多功能,让你轻松玩转社区。

您需要 登录 才可以下载或查看,没有帐号?注册

x
这种户型怎么布置,太难了!!!求大神帮忙!!!

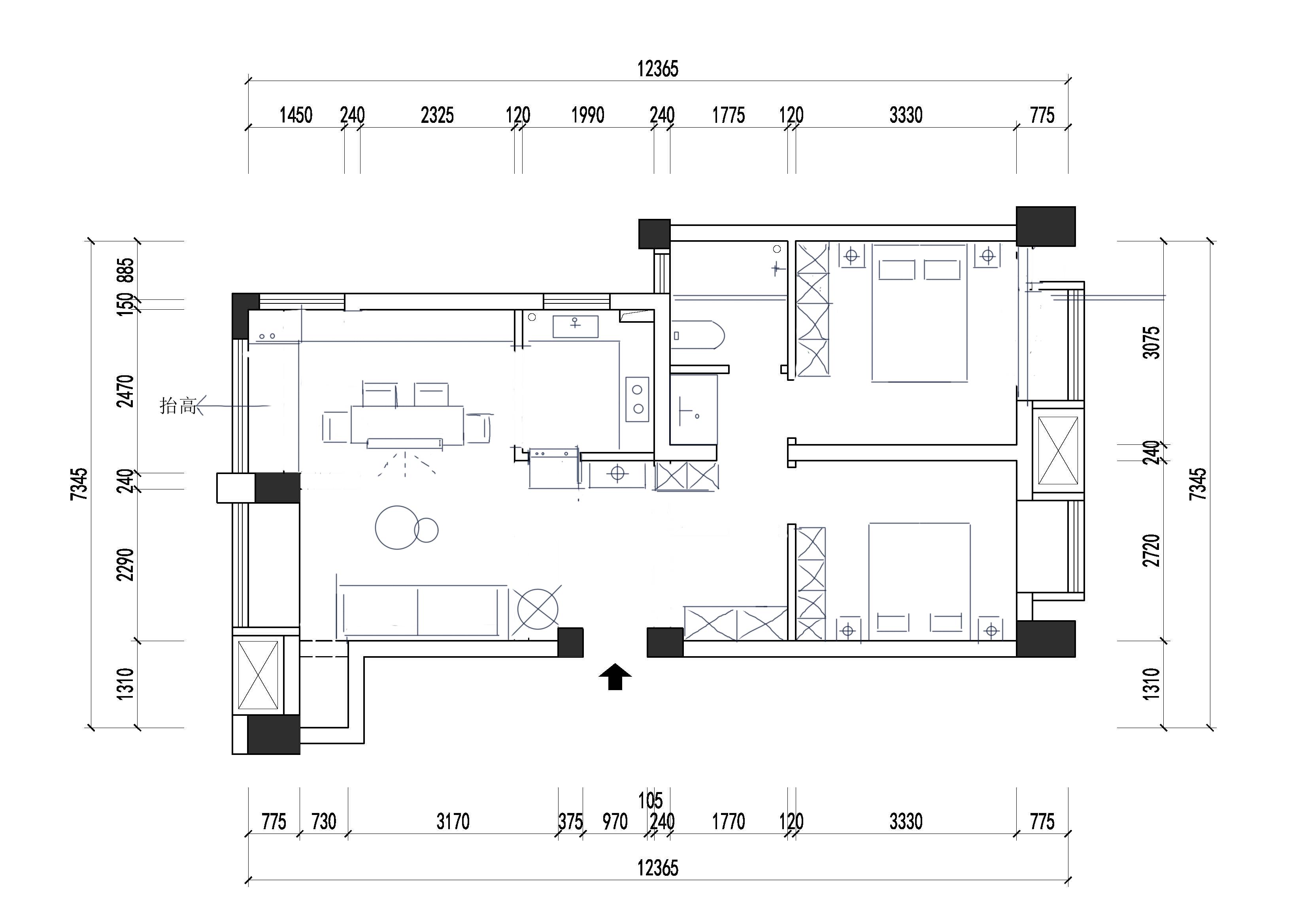
原始户型图

原始户型图
2.jpg

 

精华推荐
换一换

发表评论13

  • 3229939995 2022-3-28 22:02:09

    本帖最后由 3229939995 于 2022-3-28 22:03 编辑

    我也来试一试。

    Screenshot_2022-03-28-22-01-10-368_com.tencent.mm.jpg
  • qwe1314120 2022-3-28 17:01:32

    本帖最后由 qwe1314120 于 2022-3-28 17:22 编辑

    瞎做一下试试

    1111.jpg
    1231.jpg
  • 野人新之助 2022-3-28 09:24:16

    第一次改方案,改的不好,多多包涵,欢迎大家指正

    1111.jpg
    你想想如果是你自己住你会觉得舒服吗
这种户型怎么布置,太难了!!!求大神帮忙!!!
拓者推荐
  • 2026拓者 CAD户型方案 发布
  • 【武汉站—“樱”你而来】获客实操
  • 【武汉站—“樱”你而来】户型优化
  • 【武汉站—“樱”你而来】风水
  • 【梁志天】西安曲江·九曲松间
  • 无间-上海汤臣君品合院方案
  • 君品-汤臣金桥花园项目方案
  • 无间-上海大宁中建玖上琅宸
  • HWCD-烟台洲際酒店深化方案图册
  • 琚宾新作-资兴东江湖度假酒店
  • 2025拓者年费+案例Vip会员说明!
  • 【 拓者年费--CAD图纸】
  • 【 拓者年费--户型方案】
  • 【 拓者年费--豪宅视频】
  • 【 拓者年费--灵感图库】