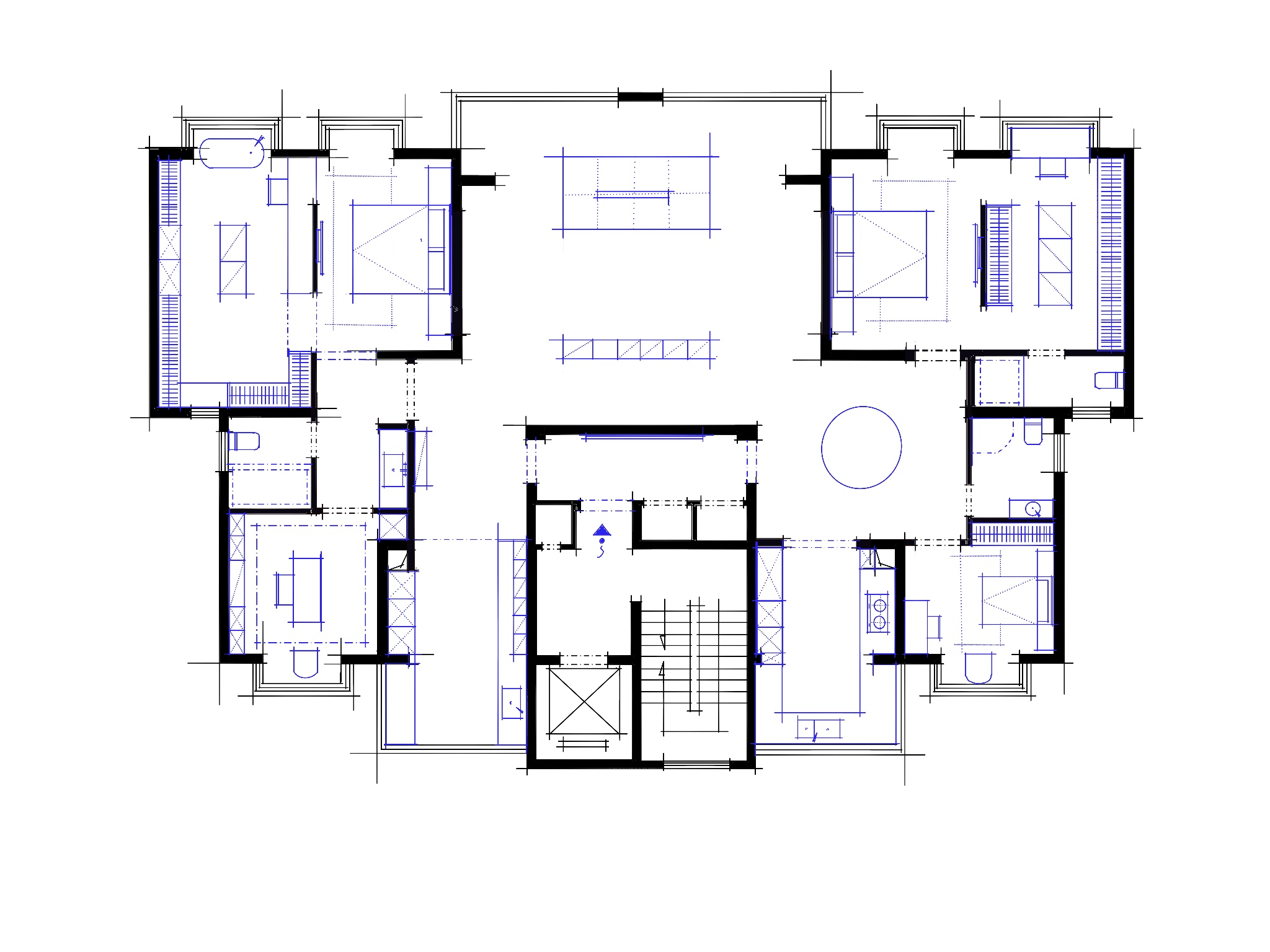
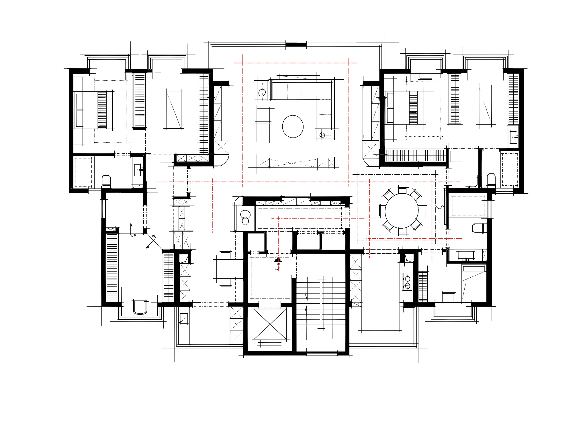
两套打通240平,求大神帮忙优化指点一下平面,给点意见

2022-4-1/ 户型方案/ 户型交流/ 只看大图 阅读模式
仅供分享不做任何商业用途,版权归原作者所有,谢谢配合。

马上注册,结交更多好友,享用更多功能,让你轻松玩转社区。

您需要 登录 才可以下载或查看,没有帐号?注册

x
客户背景:  常住人口一个男主人,双胞胎儿子年龄12岁,女主人和孩子长期在外地居住,周末或者假期会回到这里居住
男主人43岁,经商,爱好读书以及写毛笔字,性格开朗,有魄力,家庭和谐美满
女主人全职,41岁,性格开朗,有活力,情商高,爱好烹饪。有一颗向往美好生活的状态

要求:两套房子打通,做成一个大平层


大户型-Model.jpg

 

精华推荐
换一换

发表评论6

两套打通240平,求大神帮忙优化指点一下平面,给点意见
拓者推荐
  • 2026拓者 CAD户型方案 发布
  • 赛拉维:安顿生活的栖心之境
  • Atelier MKD|极简主义风格!
  • 东莞保利首铸鹭湾185样板间!
  • 【梁志天】西安曲江·九曲松间
  • 无间-上海汤臣君品合院方案
  • 君品-汤臣金桥花园项目方案
  • 无间-上海大宁中建玖上琅宸
  • HWCD-烟台洲際酒店深化方案图册
  • 琚宾新作-资兴东江湖度假酒店
  • 2025拓者年费+案例Vip会员说明!
  • 【 拓者年费--CAD图纸】
  • 【 拓者年费--户型方案】
  • 【 拓者年费--豪宅视频】
  • 【 拓者年费--灵感图库】