平层户型,求大佬帮看一下,有没有能打破常规的方案。

2022-4-12/ 户型方案/ 户型交流/ 只看大图 阅读模式
仅供分享不做任何商业用途,版权归原作者所有,谢谢配合。

马上注册,结交更多好友,享用更多功能,让你轻松玩转社区。

您需要 登录 才可以下载或查看,没有帐号?注册

x
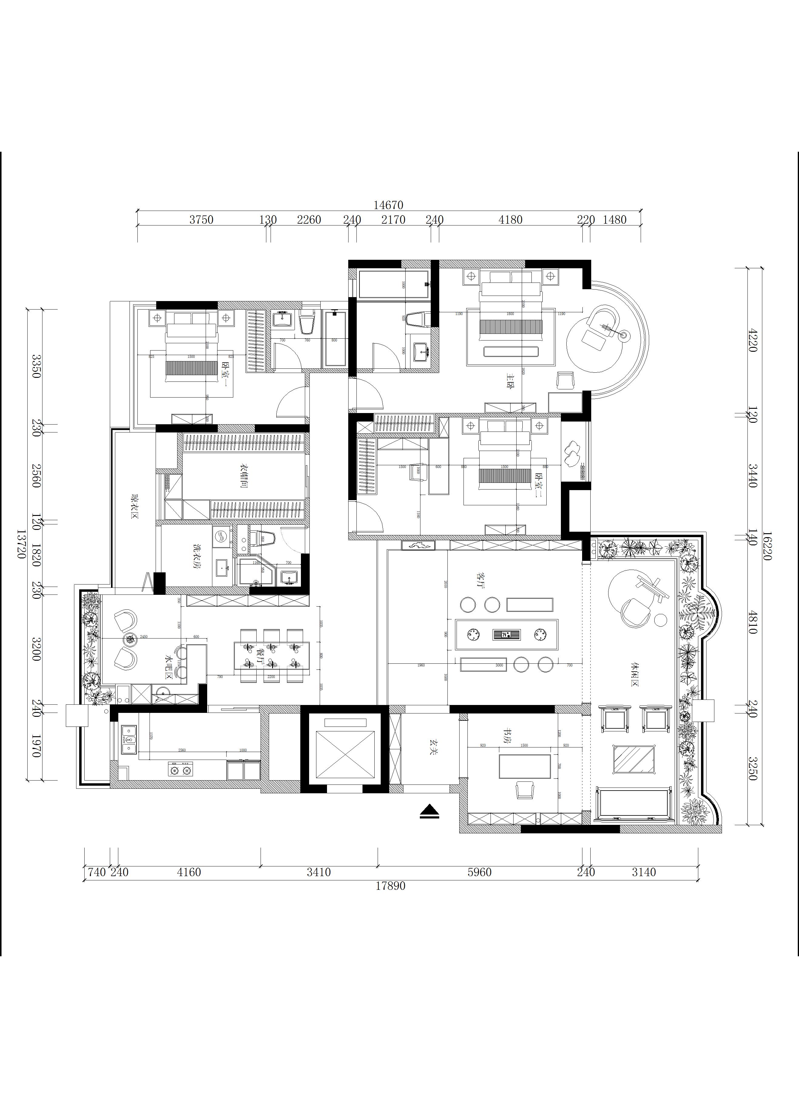
业主要求:
三个卧室,一个书房(多功能房),茶区。
客厅可不放沙发,客厅那块是下沉式的。

阳台都可往外推

阳台都可往外推

常规方案

常规方案

 

精华推荐
换一换

发表评论1

  • 酷酷的二 2022-4-14 11:16:34

    有没有想过卧室一的套卫给主卧用,主卧的卫生间做衣帽间。卧室一从现衣帽间进。洗衣房改成卧室一的套卫。公卫同样保留。这样两个房间配套都比较齐全吧

平层户型,求大佬帮看一下,有没有能打破常规的方案。
拓者推荐
  • 2026拓者 CAD户型方案 发布
  • 【武汉站—“樱”你而来】获客实操
  • 【武汉站—“樱”你而来】户型优化
  • 【武汉站—“樱”你而来】风水
  • 【梁志天】西安曲江·九曲松间
  • 无间-上海汤臣君品合院方案
  • 君品-汤臣金桥花园项目方案
  • 无间-上海大宁中建玖上琅宸
  • HWCD-烟台洲際酒店深化方案图册
  • 琚宾新作-资兴东江湖度假酒店
  • 2025拓者年费+案例Vip会员说明!
  • 【 拓者年费--CAD图纸】
  • 【 拓者年费--户型方案】
  • 【 拓者年费--豪宅视频】
  • 【 拓者年费--灵感图库】