— 归 家 — 在空间中设计师亦是一个导演,需要像导演一样揣摩他的观众,深思熟虑地构建故事,演绎出让人愉悦的场景,并在这三者之间得到平衡。 业主需求 The owner needs 本案业主希望整个空间要有质感,也要有温馨的感觉。房间不需要多,但是需要有一个比较大气的餐厅和厨房。同时也希望能抓住收纳,可以储存一家三口的生活用品等。 改造策略 Reform strategy Before
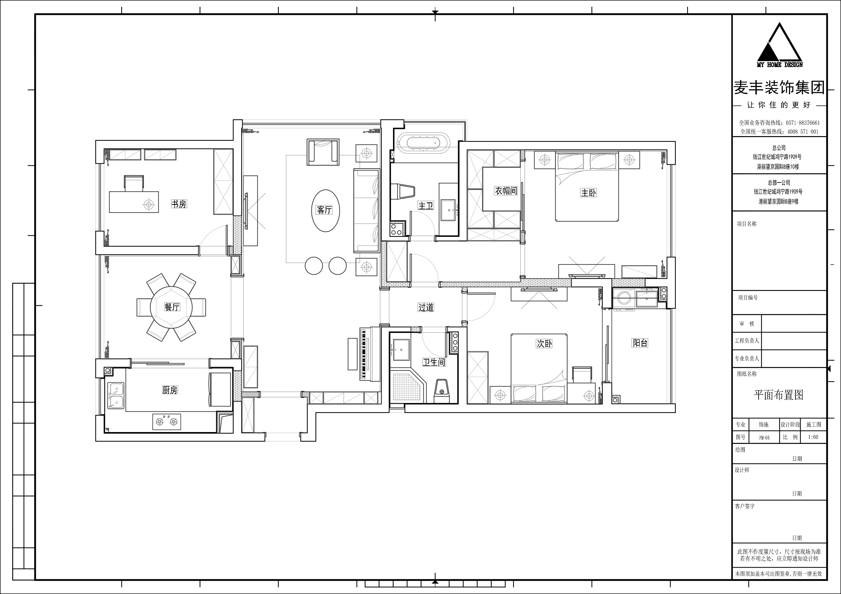
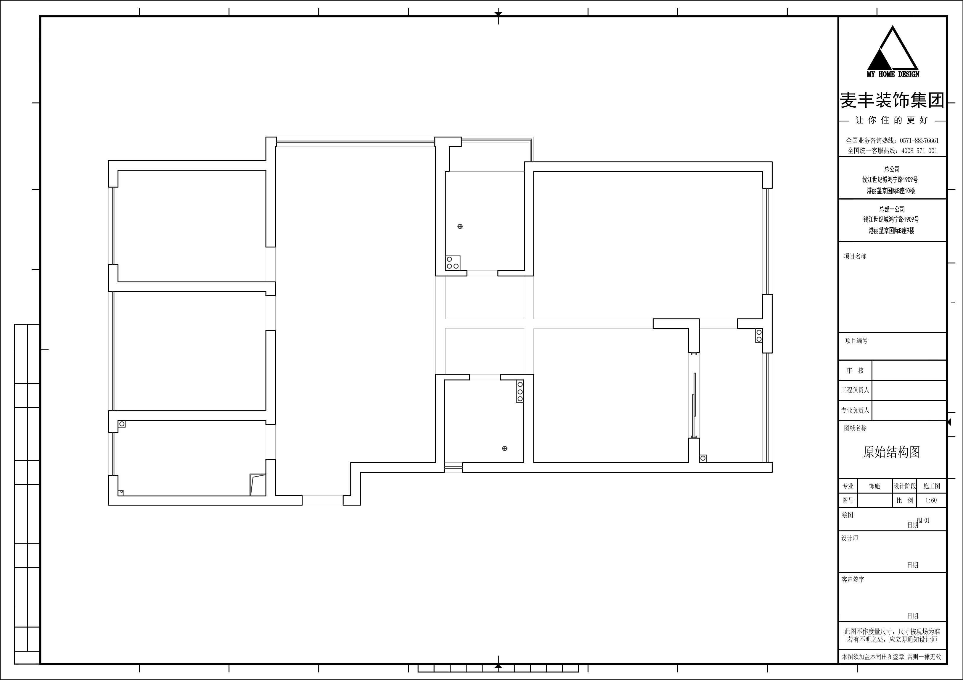
/原始平面图 After
/平面布置图 原户型是4房设计,餐厅偏小,进门鞋柜位置偏小。 因为是一家三口入住,所以不需要这么多房间。在设计时我们把一个朝北的小房间改成了餐厅,同时把原厨房的开门朝向现有餐厅的位置。 整个餐厅和厨房的动线都很舒服,自然采光也增加了不少。 |
精华推荐
换一换
-
麦丰设计 2022-4-12 18:05:33实景呈现Live-action rendering客厅|LIVING ROOM
本案客厅用线框木饰面和浅色墙布的叠加,做出了美式的对称美和层次感。豁然开朗的客厅,简洁的设计风格,灰度的和谐,高级感十足。
入户处有一个休闲角,业主们都可以在这里看书、小憩。通顶的收纳柜,满足日常的收纳,同时设计了陈列摆件的功能,不会显得沉闷。
家具的选择上,也以造型简约为主。舒适的软包沙发,英气的香槟色茶几。整体空间氛围自然舒服,散发着淡雅的高级感。
回复举报
-
麦丰设计 2022-4-12 18:00:57主卧|MASTER BEDROOM
主卧的背景延续了客餐厅的灰蓝色调,带着软包靠背的床给卧室增添一缕优雅感。次卧|SECONDARY BEDROOM
/女儿房为维持舒适放松的卧眠环境,女儿房整体色调以粉白色为主、紫色做出视觉跳色,烘托出美式的悠闲意象。卫生间|TOILET
/主卫卫生间墙面、地面统一的灰色大理石,干湿分离的设计,保证了日常使用时的舒适度。主卫业主们选择浴缸代替淋浴,希望在家也能有一个很好的泡澡时光。
小景
案例信息丨Case Information项目地点:江南国际城项目类型:大平层项目性质:半包项目面积:135㎡项目风格:现代美式施工:浙江麦丰装饰设计工程有限公司主要用材:木饰面,大理石,墙布,硬包摄影:林峰文字编辑:L.


发表评论3