微风十里-现代轻奢

仅供分享不做任何商业用途,版权归原作者所有,谢谢配合。

马上注册,结交更多好友,享用更多功能,让你轻松玩转社区。

您需要 登录 才可以下载或查看,没有帐号? 注册

x
本帖最后由 ly李玉 于 2022-5-13 17:16 编辑

微风十里-现代轻奢

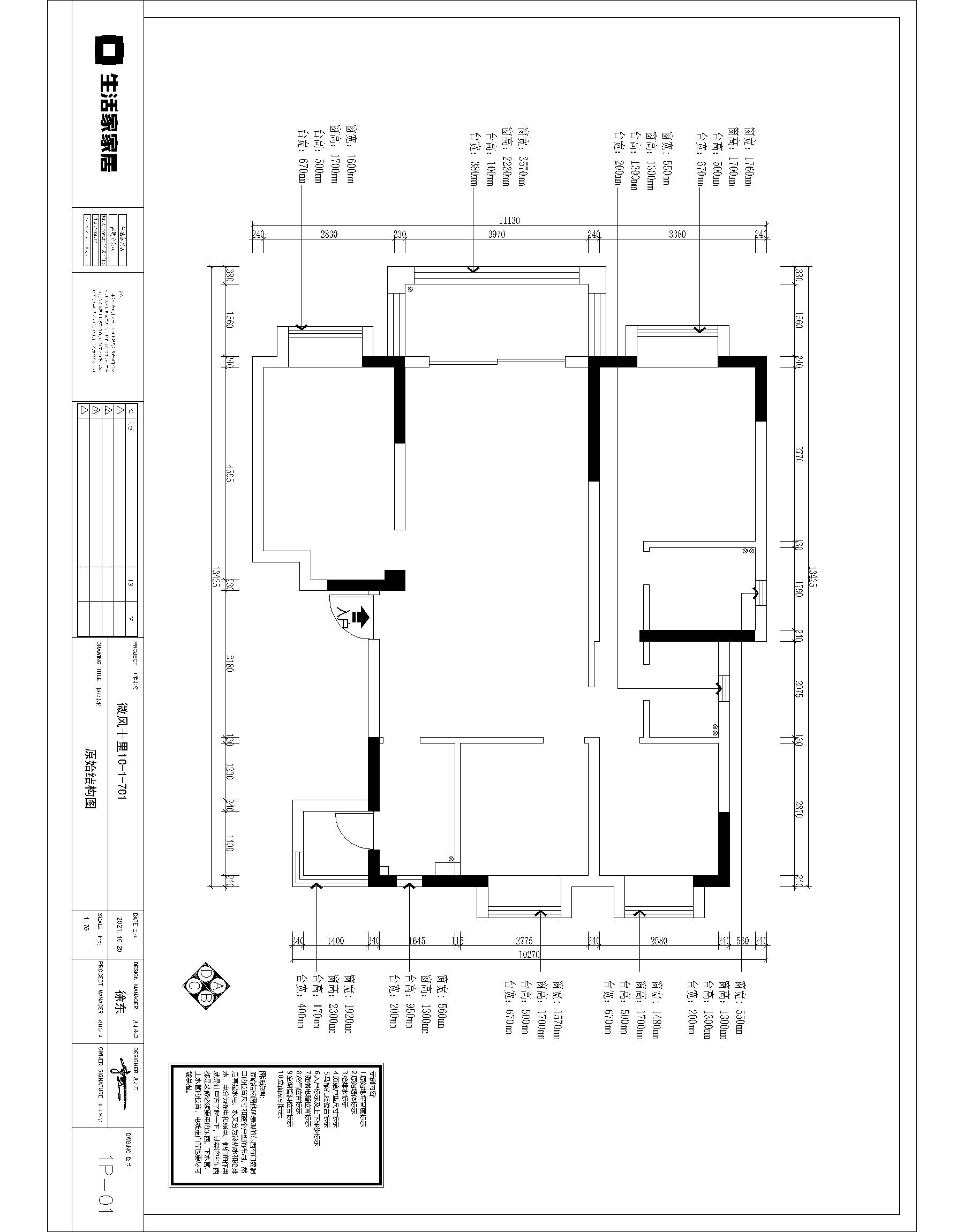
原始户型图

原始户型图

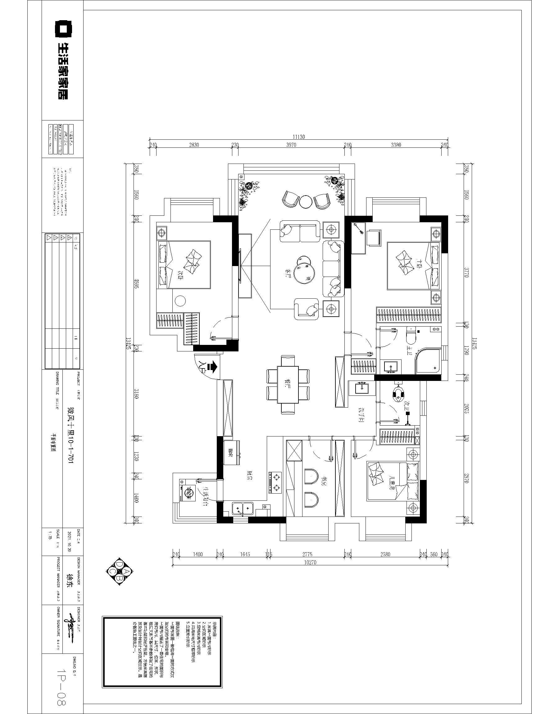
改造后平面布置

改造后平面布置
融创微风十里-副本-未命名-20211022-215617.jpg

客厅电视背景墙做的是石材外凸加灯带的造型。电视背景大面积用的白色石材,木质格栅做陪衬,与沙发背景墙也 ...

客厅电视背景墙做的是石材外凸加灯带的造型。电视背景大面积用的白色石材,木质格栅做陪衬,与沙发背景墙也 ...

餐厅

餐厅

客厅

客厅
融创微风十里-副本-主卧-20211022-215611.jpg

儿童房空间比较小,放置了床和衣柜基本就满了,所以在家具上都搭配的比较简单的款式,粉色是女孩子都喜欢的 ...

儿童房空间比较小,放置了床和衣柜基本就满了,所以在家具上都搭配的比较简单的款式,粉色是女孩子都喜欢的 ...
融创微风十里-副本-次卧-20211022-215605.jpg

 

精华推荐
换一换

发表评论0

微风十里-现代轻奢
拓者推荐
  • 朴悦-华润小径湾-悦海白兰墅
  • 琚宾-杭州保亿观云钱塘城
  • 召禾设计-上海汤臣君品
  • CCD-华润置地南通澐璟
  • HBA&DAS-中海江南玖序
  • CCD-华润 CCBD 889㎡设计方案
  • 【召禾设计]天际江景超大平层方案
  • 【WSD世尊】建发·云启玉诸
  • CCD-华润玺宸上院中叠样板间
  • CCD-武汉绿城外滩玫瑰园别墅
  • 2025拓者年费+案例Vip会员说明!
  • 【 拓者年费--CAD图纸】
  • 【 拓者年费--户型方案】
  • 【 拓者年费--豪宅视频】
  • 【 拓者年费--灵感图库】