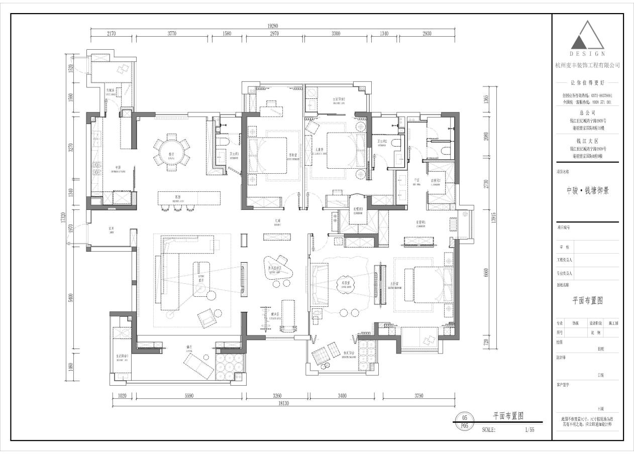
「 沫时 」 家的定义,不仅仅在于满足舒适,而是需要保留仪式感以及对美感、细节的关注。 业主需求 男业主希望能给妻子一个温馨的家,给亲爱的女儿一个属于自己的小天地。由于平时工作的严谨性,业主在细节处也追求完美,对材料品质方面有较高的要求,色彩方面简单不张扬,布局有序,需要一定收纳。 设计方案(户型对比图)
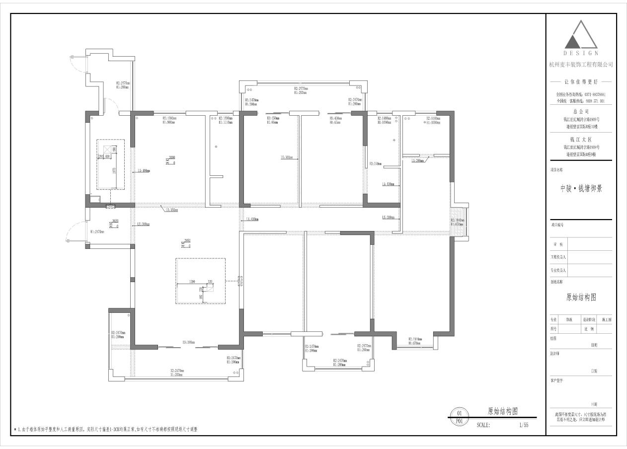
户型优劣势 优势:户型方正,每个房间都有独立阳台,动静分布合理,空间功能分区合理,尺度大小合理 劣势:门厅敞开无遮挡无过度,宽度无法拓展。主卫过小,去往主卫需要穿过衣帽间。 主卧入口过于直入,隐私保护有欠缺。 户型改造 1、为了保证空间尺寸尽量不被压缩,切对客厅及入户门直对的问题,所以门口门厅区域只是简单的用了组储物柜作为阻挡,以保证室内的隐私和空间的过度。 2、跟随的屋主的女儿的长大,属于自己独立的衣帽间也是必不可少的,本案通过主卧入口的调整,给女儿房整合出一个独立的衣橱空间。 3、主卧通过分区式衣橱的处理,直接了当的解决了主卧床直对主卫。将主卫干区拿出来也是直接解决了主卫尺度不够的问题,让梳妆台和干区处于一个开放区也更方便了使用。 - 设计理念 设计师起初做了多搞方案,各个方向的都有,但通过跟屋主的深入沟通,发现屋主对于自己家的想法和格局的改造都有自己明确的方向。最终还是以解决客户问题为主,处理客户想要而无法实现的功能格局。
|
精华推荐
换一换
-
麦丰设计 2022-5-21 13:48:36客厅
在空间立面的处理选择上打造了严谨的对称美重建切割的节奏变化尽量克制更多的展现业主对精致生活一丝不苟的态度
墙体的切割面细节是设计师给予的序列感和仪式感空间被赋予了利落的性格用线条分割也用线条呈现
为了营造简约自然的空间格调设计师在元素和色调的选择上以素雅为主并且融合了木质元素呈现利落而纯粹的都市氛围感
客厅采用无主灯设计主灯精美确有喧宾夺主的特性相比于繁华我们更追求生活里简单的点点滴滴餐厅
餐厅的空间设计相比客厅更突出了精致感大理石的餐桌搭配皮面木质的餐椅再配上作为点睛之笔的圆形吊灯共同构成一个和谐有序的空间
“人生在世,吃喝二字”或许生活就该如此简单吧台
人间有味是清欢对于吧台空间业主也有着自己的场景需求
吧台分隔餐厅与客厅以其实现生活的分区颜色统一却造型各异的吊灯是端然中一丝异起的随性厨房
封闭式的厨房设计避免了中式烹饪时的油烟弥漫整列的柜子保证了收纳空间让厨房既有一派人间烟火气又兼具了现代高级感回复举报
-
麦丰设计 2022-5-21 11:34:35女儿房
明亮的千歳緑拉开空间的张力预设了童年生活该有的活泼简单设计是连接生活与艺术的桥梁童年时光中的每一个美好瞬间都值得被记录珍藏
书房(多功能房)
为了保证业主的基本需求及功能的多样性且空间尽量保证原始比较方正的格局设计师将客厅和多功能书房打通使空间之间能互动交流以多功能书房为中心展开让书房可以连接到各个空间成为家庭的中心
卫生间
卫浴空间清爽实用通过石材清晰的线条、隐约的纹理使整个空间通透宽阔
案例信息丨Case Information项目地点:钱塘御景项目类型:住宅项目性质:全包项目面积:260㎡项目风格:现代风设计师: 麦丰国际设计施工:浙江麦丰装饰设计工程有限公司软装:东麦家居主要用材:岩板、染色木皮、硬包摄影:林峰文字编辑:cc


发表评论3