【免费】尚石设计--样板房方案汇报--PPT方案

2022-6-18/ 方案概念/ 样板间/ 只看大图 阅读模式
仅供分享不做任何商业用途,版权归原作者所有,谢谢配合。

马上注册,结交更多好友,享用更多功能,让你轻松玩转社区。

您需要 登录 才可以下载或查看,没有帐号?注册

x
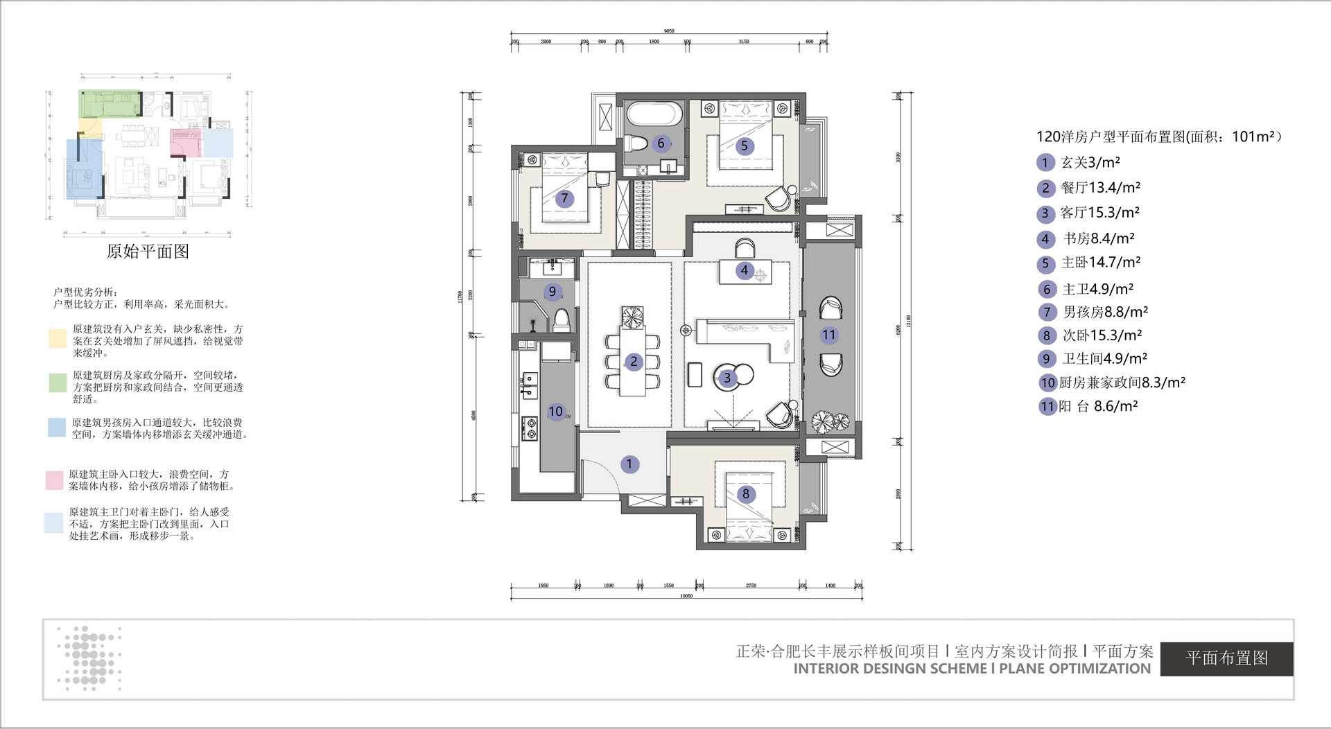
来源网络,仅供学习,请勿用于商业用途,下载后24小时内自行删除,如有侵权联系管理员删除



tz (6).jpg

tz (8).jpg

tz (9).jpg

tz (10).jpg

tz (13).jpg

tz (17).jpg

tz (19).jpg

tz (22).jpg

tz (24).jpg

tz (25).jpg

tz (26).jpg

tz (29).jpg

tz (33).jpg

tz (35).jpg

tz (38).jpg

tz (40).jpg

tz (42).jpg

tz (45).jpg

tz (49).jpg

tz (51).jpg

tz (54).jpg


免费下载 仅供学习, PPT JPG方案.rar (44.09 MB, 下载次数: 388)
精华推荐
换一换

发表评论9

【免费】尚石设计--样板房方案汇报--PPT方案
拓者推荐
  • 【广州站】设计师创业课
  • 【广州站】收纳设计思维训练营
  • 【广州站】户型优化总监内训课
  • 【广州站】 风水丨设计与签单课
  • 【广州站】获客实操训练营
  • 2025拓者年费+案例Vip会员说明!
  • 【 拓者年费--CAD图纸】
  • 【 拓者年费--户型方案】
  • 【 拓者年费--豪宅视频】
  • 【 拓者年费--灵感图库】