在商业定位中定义,在交互体验中续航, 浆果设计赋予 Flow Bar & Lab 非格式化的超越, 时光流淌,意境折叠,趣味释放, 你愿意一起加入这场观影吗?
诚如瓦尔特·本雅明所说,“这是一个影像的时代,视听的时代,机械复制的时代,灵光消逝的时代。” 影像记录,记忆留驻,体验长存,而商业空间的生命力无限延展,浆果设计常常从场景导演的视角出发打造商业空间,不止于创意美学和视觉艺术的呈现,让商业空间更鲜活。解构体块、突破限制、包裹热烈、释放个性,Flow Bar & Lab 成为浆果设计笔下商业逻辑与互动体验的浸透之作。目之所及处,过往的经验被覆盖,认知的边界被消弭,全新的场景中生长出新鲜趣致。
经由唯一的入口,一处有意为之的倾斜墙体,似通往未知世界的巨型“暗门”,极简线条的艺术形态又仿若开启时光的“切口”,隔绝与外界的链接。
入眼处,人的视线第一时间被天花上的巨幅艺术装置所占据。形状如圆润水滴,纵横有序排列,或疾或缓,自成规律地循环运行着,成为当代艺术的折叠隐喻。
与静谧温润的光影配合,每一滴“水”的律动与转换,在深沉的场景外表下放映着内与外、动与静的剧目,让人以一种意想不到的方式感知着空间流动的节奏,构建截然不同的体验。
相较于常规吧台的开放式布局,设计师赋予六边形的吧台以钻石般的切割方式,令其以独特的材质与形制,成为全场的第二视觉中心,最终让纯粹的力量感植入场景的内核。
金属与木质相结合,几何与有机构图交相叠映,构成吧台的独特动线,有序而自然地兼纳调酒与互动,加深空间的故事性。人静坐于此,感受空间赋予的停顿、纯粹、安逸。
在狭长的建筑中,空间内座椅的组合排列形式摒弃了常规化的序列。设计师通过质地饱满而润泽的流线型木质桌面,与地面暗藏的水波线条、顶面装置互动,三者明暗不一、动静各异的变化,绘制出具象化的空间情绪。
缄默而细腻、深邃而流动的工业墨色,延展至空间内部的每一处,令神秘气息和未知感暗涌浮动。而看似阻遏外部的空间,因临街墙面上的一线窄窗,将两个世界重新联结,建立新的互动关系。
天花和墙体界面上嵌入了暗隐的光源,大面积的漫反射蕴生微妙氛围,拓宽人们向外凝望、或向内探索的视线互动领域,在社交维度上呼应“艺术生活化、生活艺术化”的哲学。
浆果设计营造的商业空间,在回报逻辑与市场趋势之内,在创意公式与美学定律之外,点破固有印象、重塑场景互动、驶向商业目标。Flow Bar & Lab 联结的两个世界,是都市内的热闹、个性,也是都市外的隐逸、静谧,而有趣是开启这两个世界的秘密钥匙,在无数的故事共鸣与精神融合中,抵达远超想象的多元境界。
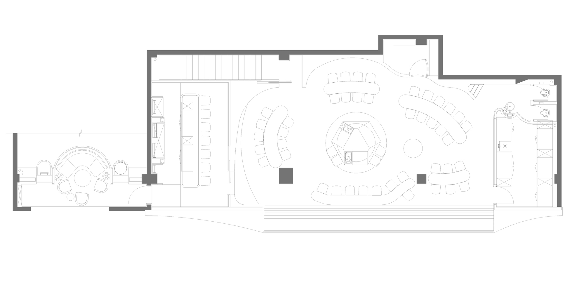
Flow Bar & Lab 平面图 项目 NAME|Flow Bar & Lab 地址 LOCATION|中国·沈阳 面积 AREA|180㎡ 时间 DATE|2021年8月 设计 FIRM|Jingle Design 浆果设计研究所 主创DESIGNER| 周博、蔡雨洋 团队 TEAM|马迪、曾凡龙、刘中男、赵亮 艺术装置 ART INSTALLATION | WWAT艺术工作室 王品添 摄像 PHOTOGRAHPY|图派视觉 视频 VIDEO | 叁斧半影视 材料MATERIALS | 木饰面、微水泥、金属、玻璃、艺术装置
浆果 Jingle Design 寓意澎湃鲜活的果实。 浆果设计研究所由周博和蔡雨洋两位先锋设计师创立于2016年,于上海、沈阳分别设有公司,团队致力于“用商业逻辑成就空间美学价值;为美好体验持续创造无限惊喜”。提供从商业定位与规划、空间设计、软装陈设、装置艺术的全局观专业服务,为商业品牌打造持久续航力。
秉持“让商业空间更鲜活”的品牌理念,浆果设计持续探索商业空间与交互体验中的无限可能。作为空间体验的导演与生活方式的意见领袖,浆果团队不断推翻昨天的自己,呈现更具前沿思考的设计。作品涵盖精品酒店、度假温泉、餐饮零售空间、美业会所与展厅设计等多元商业领域,让空间体验者沉浸于美学与体验并呈的感官互动之中。 01 The X Macallan Bar Bar & Club
02 77 Vision礼约中心 Commercial Design
03 三秋舍·梦幻岛 Restaurant Design
04 茉里·山水 Restaurant Design
05 茉里·观邸 Restaurant Design
|
精华推荐
换一换


发表评论0