设计最大的灵感来源于业主 而设计本身就是一场行为艺术 让这场艺术尽情的挥发出来 业主需求 The owner needs 业主是一个两口之家,说话酷酷,做事酷酷,喜欢酷酷的居住环境,希望新房能气质安静摩登一些,做了一些沟通后,把暗调作为全屋色调。 改造策略 Reform strategy Before
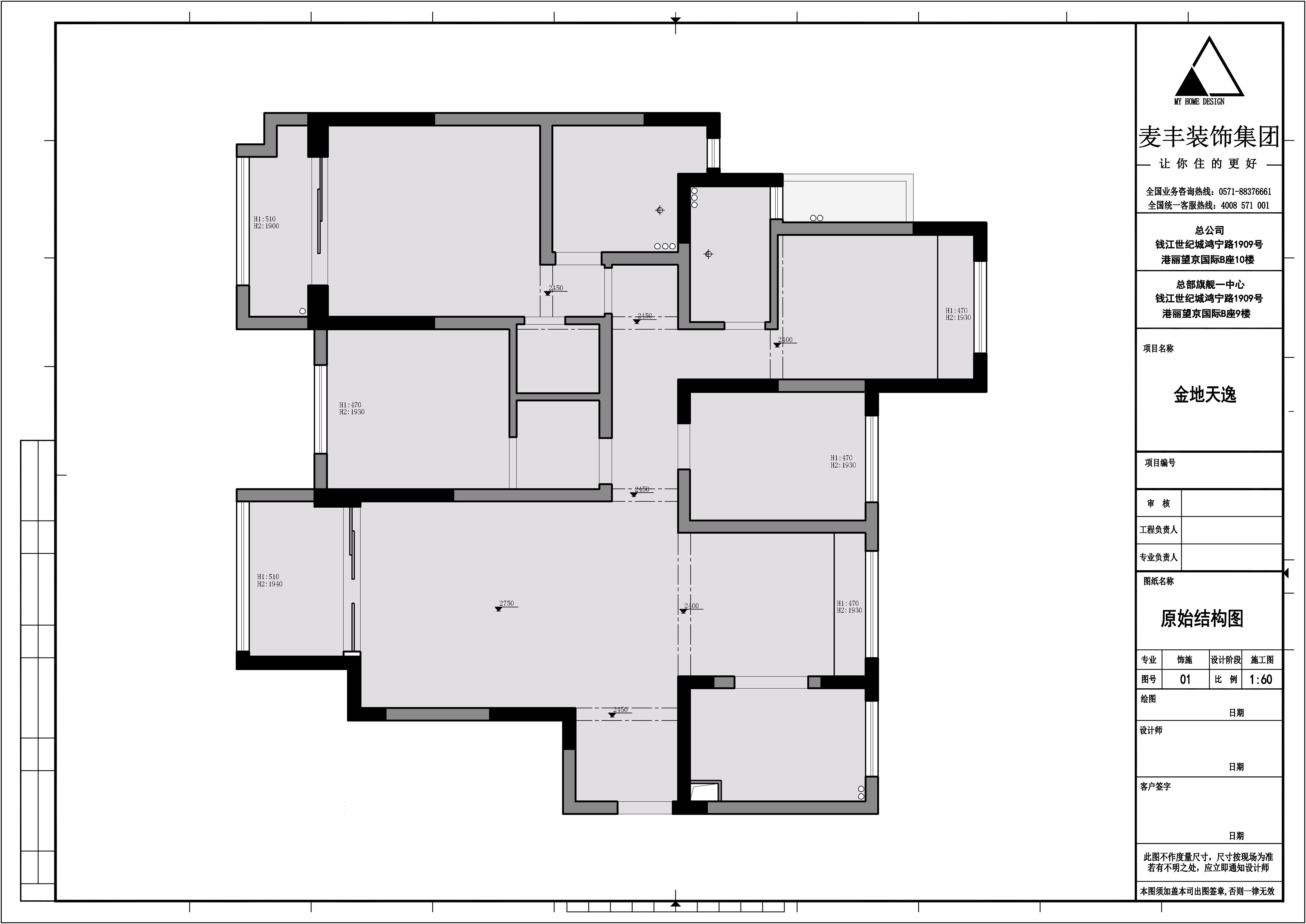
/原始平面图 优劣势: 户型方正,业主对空间的使用功能有明确的想法,但方正的户型也会显得部分空间有些无趣。 After
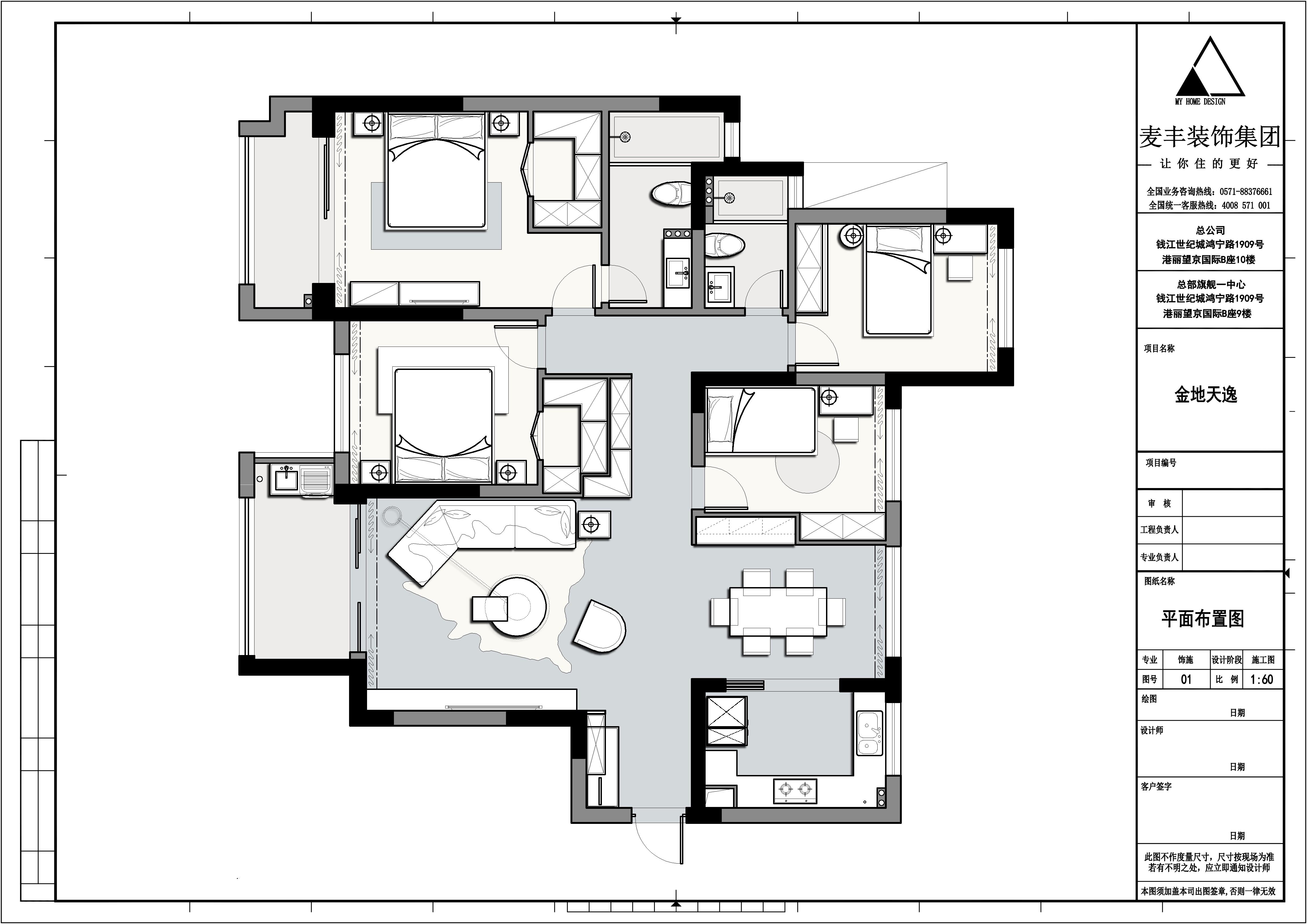
/平面布置图 户型改造 在过道设计上,做了一组转角柜子,增加了过道的张力和空间的延续性。 设计灵感 业主喜欢木质温润的质感表现,想在选材上能够凸显这种质感,所以材料运用上用了大量的深浅木色,在深色空间里,流露出一点点温情。 |
精华推荐
换一换
-
麦丰设计 2022-7-6 15:51:18实景呈现Live-action rendering客厅|LIVING ROOM
本案整体色调以黑、白、灰为主,再局部添加木色,温馨而又沉静。沙发和座椅构成一个围合区域,通过改变家居布局增进人与人之间的沟通。
业主选了一块与地砖花纹类似的岩板作为电视背景墙,虽然是深灰色,但在灯光的映衬下也显得光鲜。沙发背景墙一侧设置玻璃隔板展示柜,搭配灯带渲染,更加凸显现代效果。
餐厅|DINING HALL
餐厅左侧为餐边柜,分为吊柜、操作台、下柜三个部分,不仅有强大的收纳功能,操作台也可以摆放一些小家电,也可以作为备餐台使用。回复举报
-
麦丰设计 2022-7-6 15:48:52厨房|KITCHEN
厨房与餐厅互相链接,以玻璃移门断开,以木、石材进行贯穿,无把手的柜体立面,秩序与质感兼具。主卧|MASTER BEDROOM
深浅有度的主卧色调,在某些特定的时刻给人五险的思绪遐想。原阳台纳进卧室空间,作为起居休闲区,两侧则做了两排立柜,提升空间利用。
床的右侧是一个小小的入步式衣柜,足够收纳男女业主2个人的衣服。床头内嵌氛围灯带,只开电视的情况下,室内也不会显得太黑,保护视力。卫生间|TOILET
卫生间墙面和地面运用了同款花色的瓷砖,淋浴间玻璃推拉门,二分离式格局,减少空间会拥挤的情况。
小景
案例信息丨Case Information项目地点:金地天逸项目类型:住宅项目性质:全包项目面积:150㎡项目风格:现代设计师:麦丰国际设计施工:浙江东麦装饰设计工程有限公司主要用材:岩板,双饰面门板等摄影:林峰文字编辑:L.


发表评论2