身处繁华,心入山林 山色明月照,到来诗景绕 业主需求 The owner needs 本案为两口之家,女儿女婿偶尔来住,还养了一猫一狗。女主人要求储物收纳要多,需要一个衣帽间,地下室需要猫狗的活动空间,男主人想要一个安静的书房,还要有一个聊天会友喝茶的区域,女儿想要个电竞休闲区。 改造策略 Reform strategy
一层对比图
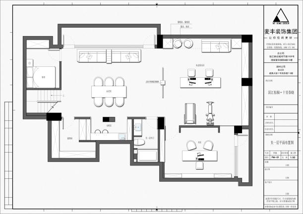
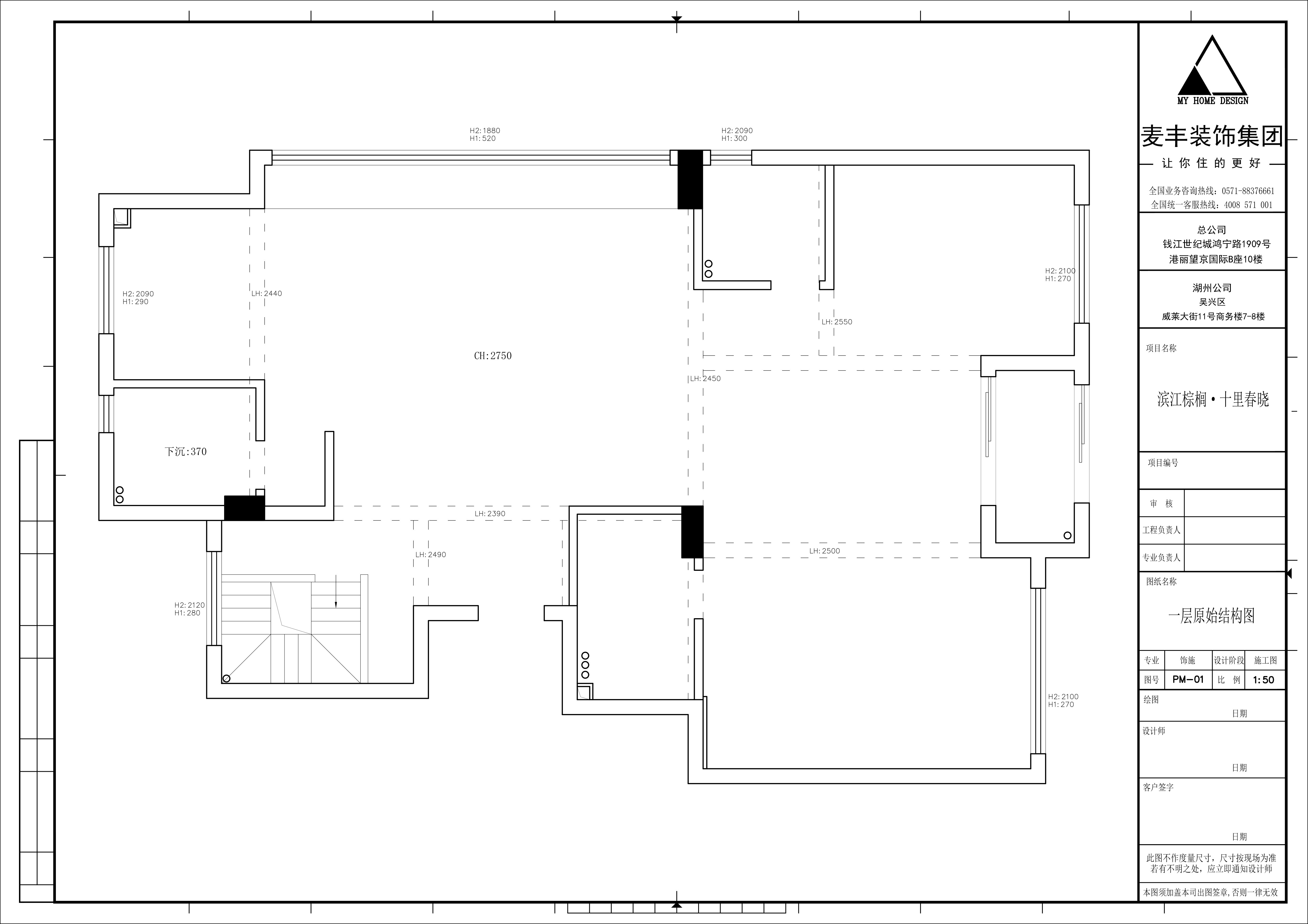
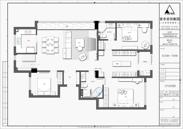
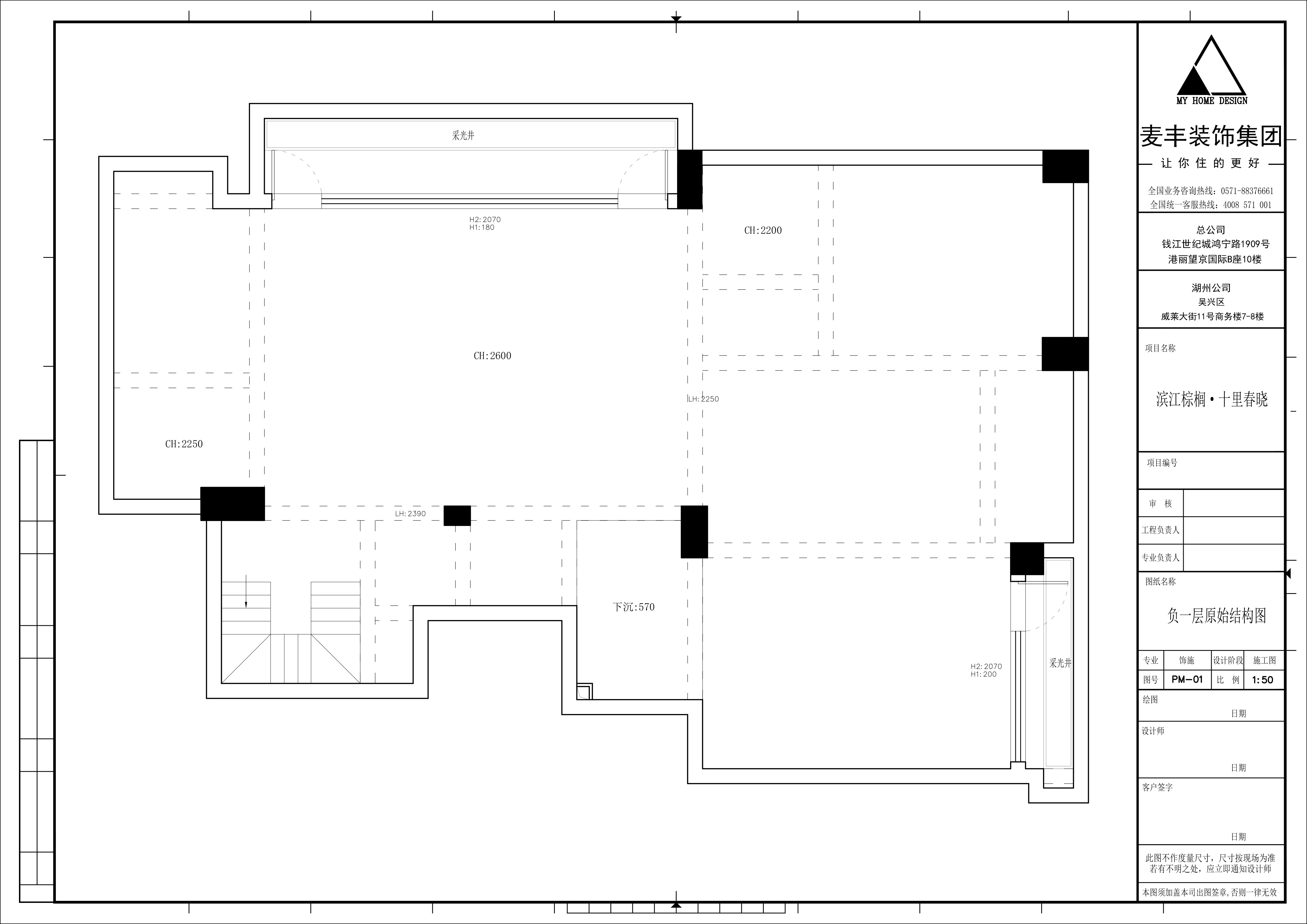
负一层对比图 劣势:原楼梯占用过多空间,一层卫生间过多 优势:三房朝南,餐客一体,带有观景飘窗,延展空间,拓展视野 户型改造 1. 原楼梯空间改为北面客房,多出一室 2. 一层外卫改为楼梯间,动线通畅,提高空间利用率 3. 南面中间房间改为衣帽区,连接客厅,南北通透,直通阳台,洗衣晾衣收纳动线方便流畅。 |
精华推荐
换一换
-
麦丰设计 2022-7-14 14:16:47实景呈现Live-action rendering客厅|LIVING ROOM
本案以精炼的动线、体量、空间造型的延伸、交迭以及适度的留白,凝聚着空间的形与神,静谧的空间里流淌着浓浓的文化馨香与艺术氛围。
电视背景墙则是选择了灰白相间的山水大岩板与深木色的电视机柜,两侧铝板雕花让整个空间更显沉稳大气。
在空间使用木材筑造原始感的基础上,设计师把装饰简化,以空造实, 把飘窗打造成喝茶休息的卡座空间,把中式的元素特点表露出来。餐厅|DINING HAL
客餐厅相连,面积不大,但空间比较敞亮。餐桌椅和客厅沙发茶几相呼应,定格整体空间品位,提升空间的档次和美观度。
回复举报
-
麦丰设计 2022-7-14 14:14:28厨房|KITCHEN
厨房选用低饱和度的家居色彩搭配,打造一个舒缓放松的烹饪空间。U型设计,对厨房各个功能区域做了比较好的划分,操作面大、动线短、空间利用率高。
主卧|MASTER BEDROOM
主卧空间同样沿用了客餐厅的主色调,温润的低保和色彩,打造休闲舒适的睡眠空间。吸顶灯和床头的阅读灯传达了雅致、舒适、自然的极简中式感。
床尾设置化妆区,暖橙色点亮空间色彩,平衡空间冷暖,含有中式元素的抱枕、床品、墙纸,贯穿整个空间。
次卧|SECONDARY BEDROOM
/女儿房女儿房选择了清新的黄绿色调,设计师从空间设计到软装配饰都着力强调阳光,强调宜居、温情。
-
麦丰设计 2022-7-14 14:10:57
客卧
客卧以素雅为主,暗提花肌理灰色窗帘,橙黄色调的融入,大胆而不张扬,简约而不杂,让空间材质都呈现出了更加丰富的肌理。
书房|STUDY ROOM
在光影的变幻下,空间灵动飘逸,给人以优雅润泽的感觉,水墨感背景墙给予空间一丝留白。
休闲娱乐区
位于负一层的综合休闲服务空间,中式茶厅和现代沙发区中间由金属屏风隔断,顶面运用软膜天花定制成客户喜欢的图案,身临其境。
文人以茶会友,品茶论道。整体采用经典的木材家具,富有光泽,舒朗的造型中富有意境美。一侧墙体做了收纳柜和操作台,便于茶厅空能扩增以及茶具的收纳。
案例信息丨Case Information项目地点:湖州 滨江棕榈·十里春晓项目类型:住宅项目性质:精装套餐项目面积:280㎡项目风格:新中式设计师:麦丰国际设计施工:浙江东麦装饰设计工程有限公司主要用材:铝板雕花,不锈钢,岩板,大理石,木饰面,艺术涂料等摄影:林峰文字编辑:L.


发表评论3