柏瑞设计---天赋碧桂园 B1样板房施工图

2022-8-30/ CAD图纸/ 样板间/ 只看大图 阅读模式
仅供分享不做任何商业用途,版权归原作者所有,谢谢配合。

马上注册,结交更多好友,享用更多功能,让你轻松玩转社区。

您需要 登录 才可以下载或查看,没有帐号?注册

x
柏瑞-湖南·浏阳天赋碧桂园B1样板房设计方案+软装方案+施工图+物料表+SU模型

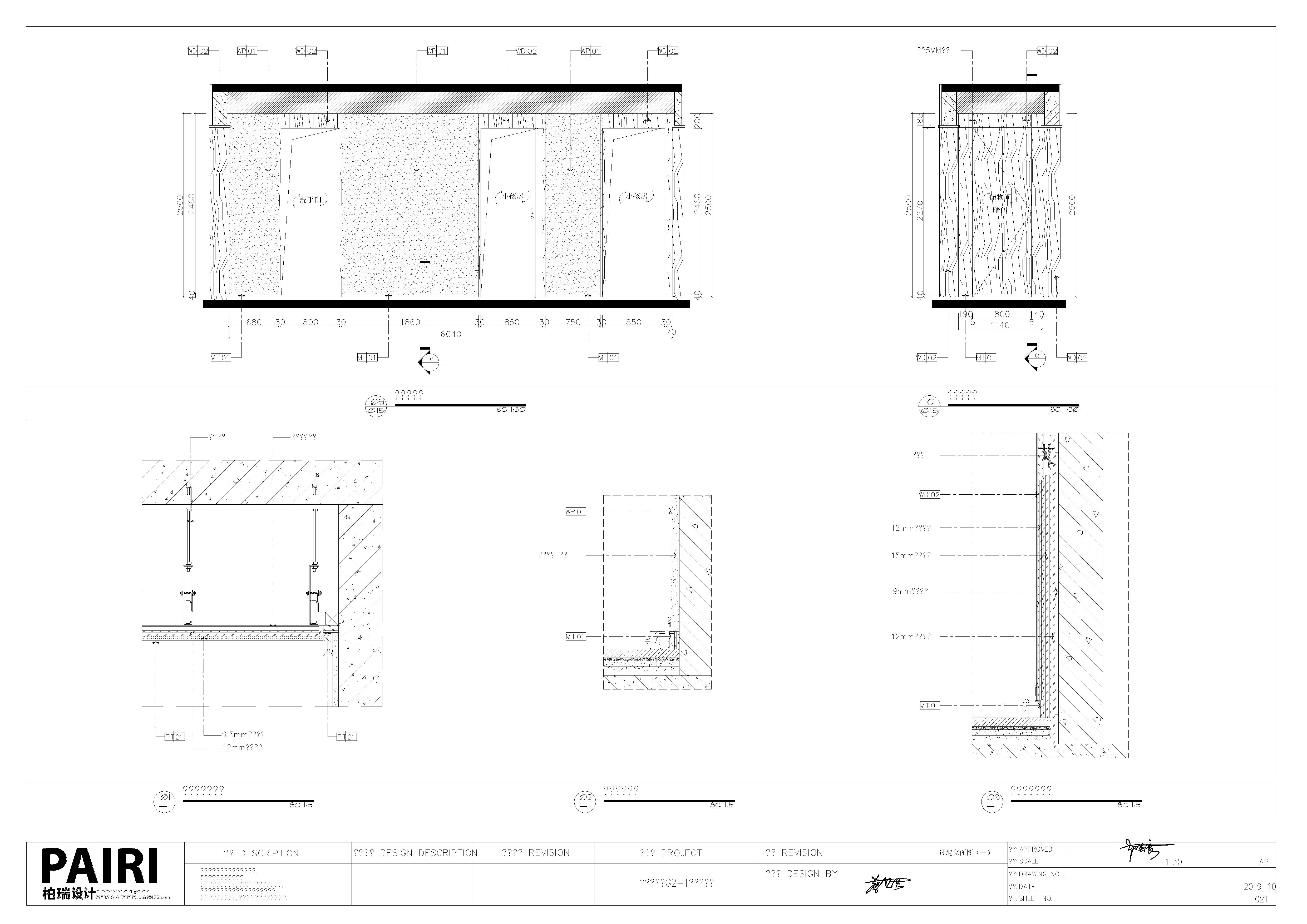
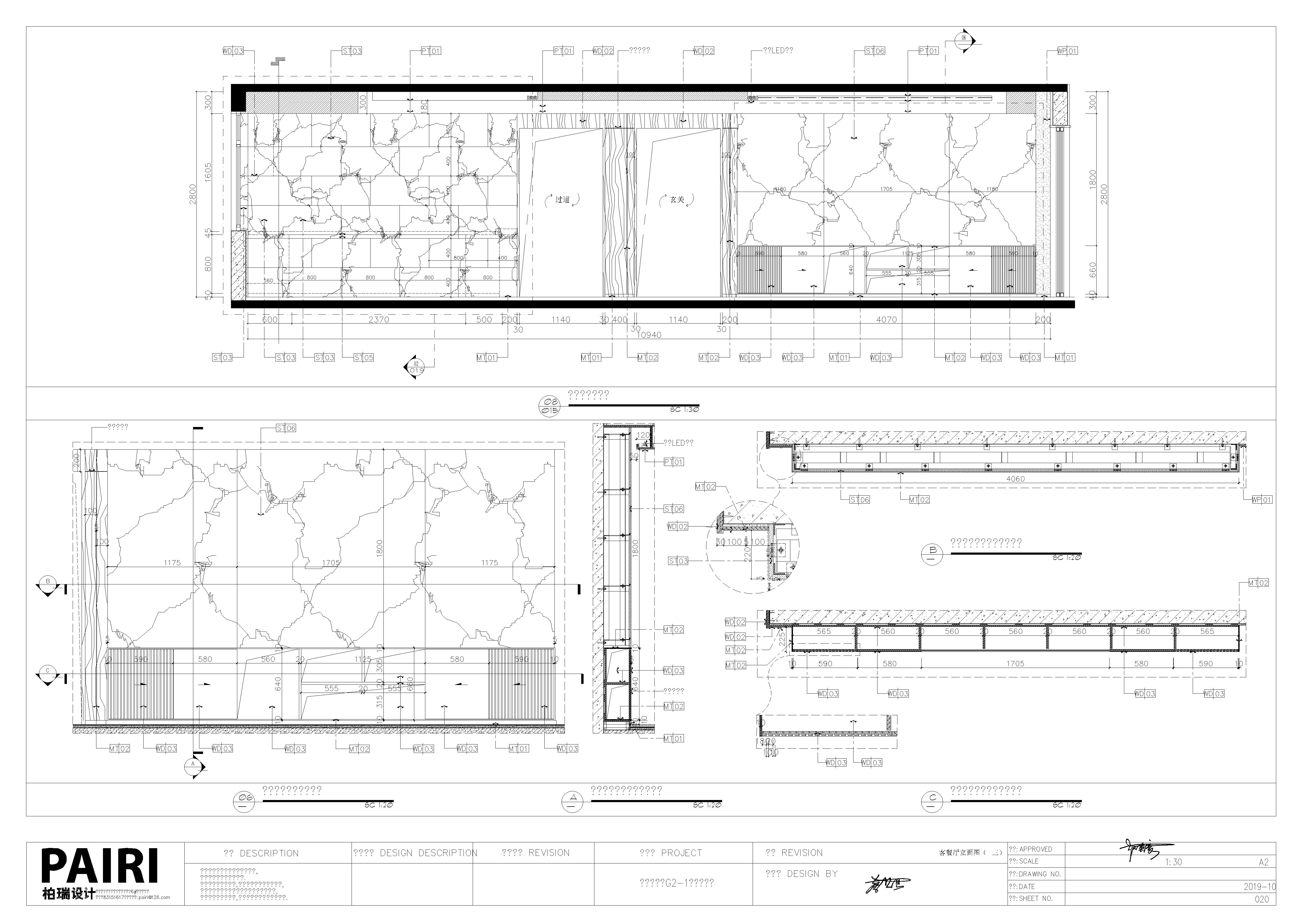
8K1$B@ATH@S@`036KG(`%YA.png

SY3IUAP[8]2MXZ9%~V]73AC.png
ESKFUO_[BD`S5Q[1GK02ROE.png

([P8MU`NMT2]~MM(WK[8.png

}S7]T]$LR[_(C4IN6T0JDYG.png

}Y)4{XLY4}SYAJ889{I9L.png

~FEIHLUH5_GB)(NME(9[DSG.png

CU~1FFT}IT`E5{}F%T8`WQB.png

V09A]][J(QX@DGAY1M(O0YQ.png

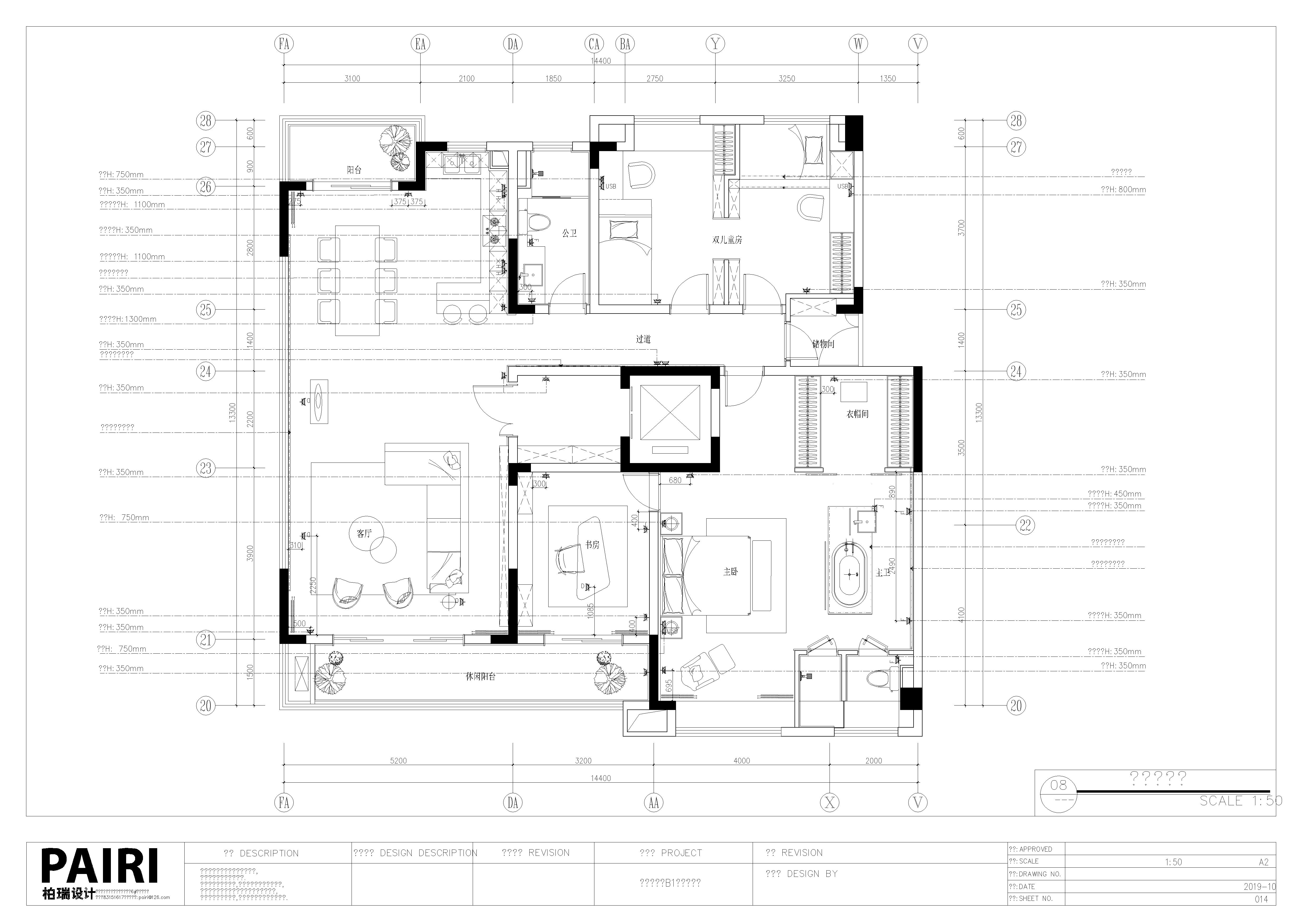
平面布置图.jpg

天棚布置图.jpg

插座布置图.jpg

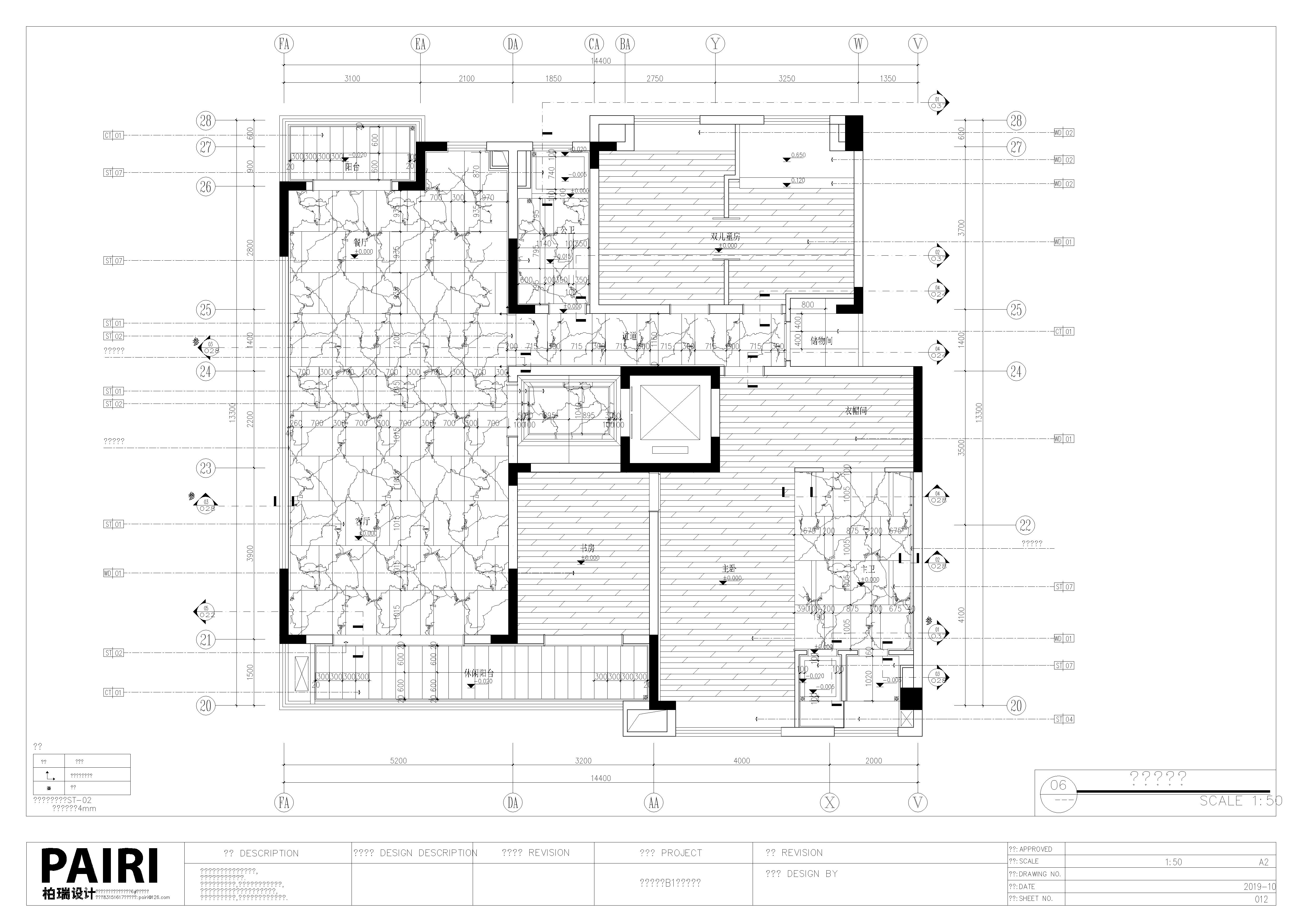
地面布置图.jpg

立面图1.jpg

立面图4.jpg

立面图2.jpg

立面图3.jpg
QQ截图20220830090902.png



B1施工图 效果图 物料.rar (250.5 MB, 下载次数: 10, 售价: 5 交易币)
精华推荐
换一换

发表评论1

柏瑞设计---天赋碧桂园 B1样板房施工图
拓者推荐
  • 【广州站】设计师创业课
  • 【广州站】收纳设计思维训练营
  • 【广州站】户型优化总监内训课
  • 【广州站】 风水丨设计与签单课
  • 【广州站】获客实操训练营
  • 2025拓者年费+案例Vip会员说明!
  • 【 拓者年费--CAD图纸】
  • 【 拓者年费--户型方案】
  • 【 拓者年费--豪宅视频】
  • 【 拓者年费--灵感图库】