现代超有特色餐厅部分施工图+效果图

2022-9-3/ CAD图纸/ 餐饮空间/ 只看大图 阅读模式
仅供分享不做任何商业用途,版权归原作者所有,谢谢配合。

马上注册,结交更多好友,享用更多功能,让你轻松玩转社区。

您需要 登录 才可以下载或查看,没有帐号?注册

x
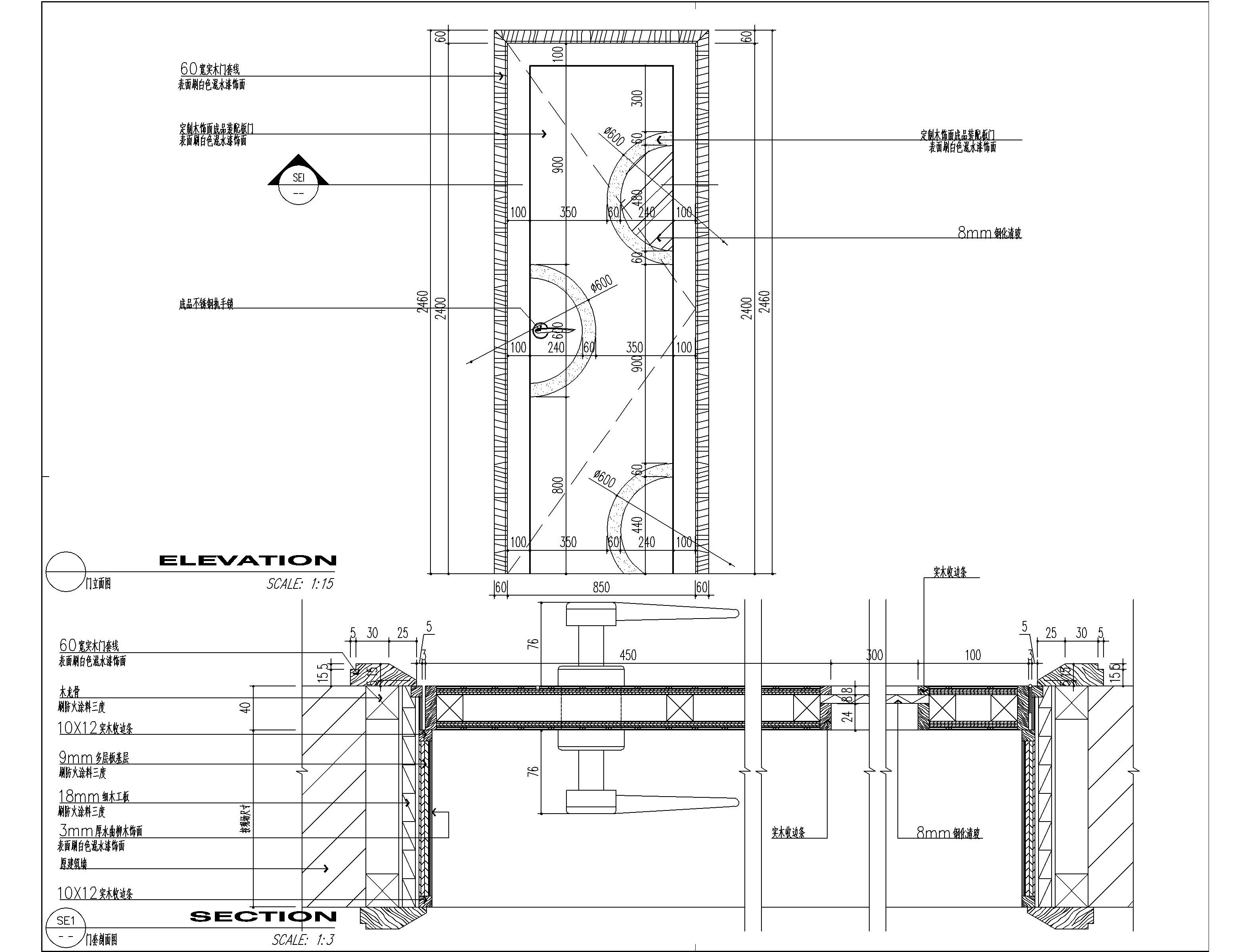
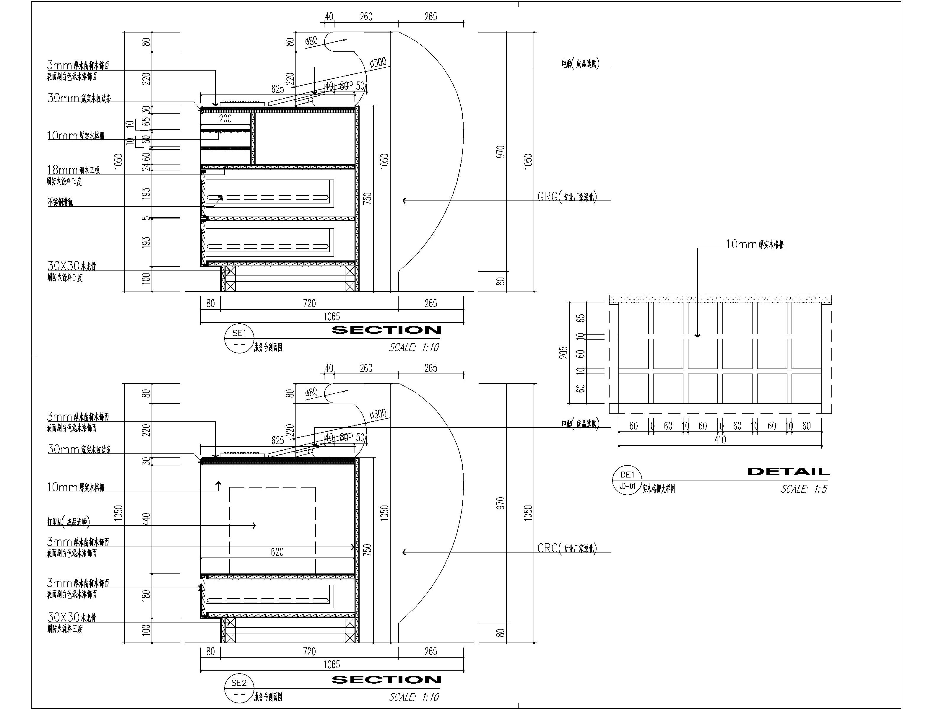
宴会厅.jpg 餐厅冬包厢.jpg 餐厅秋包厢.jpg 咨询区.jpg 3F平面.jpg SPA服务台节点-布局3.jpg SPA服务台节点-布局4.jpg SPA门表.jpg
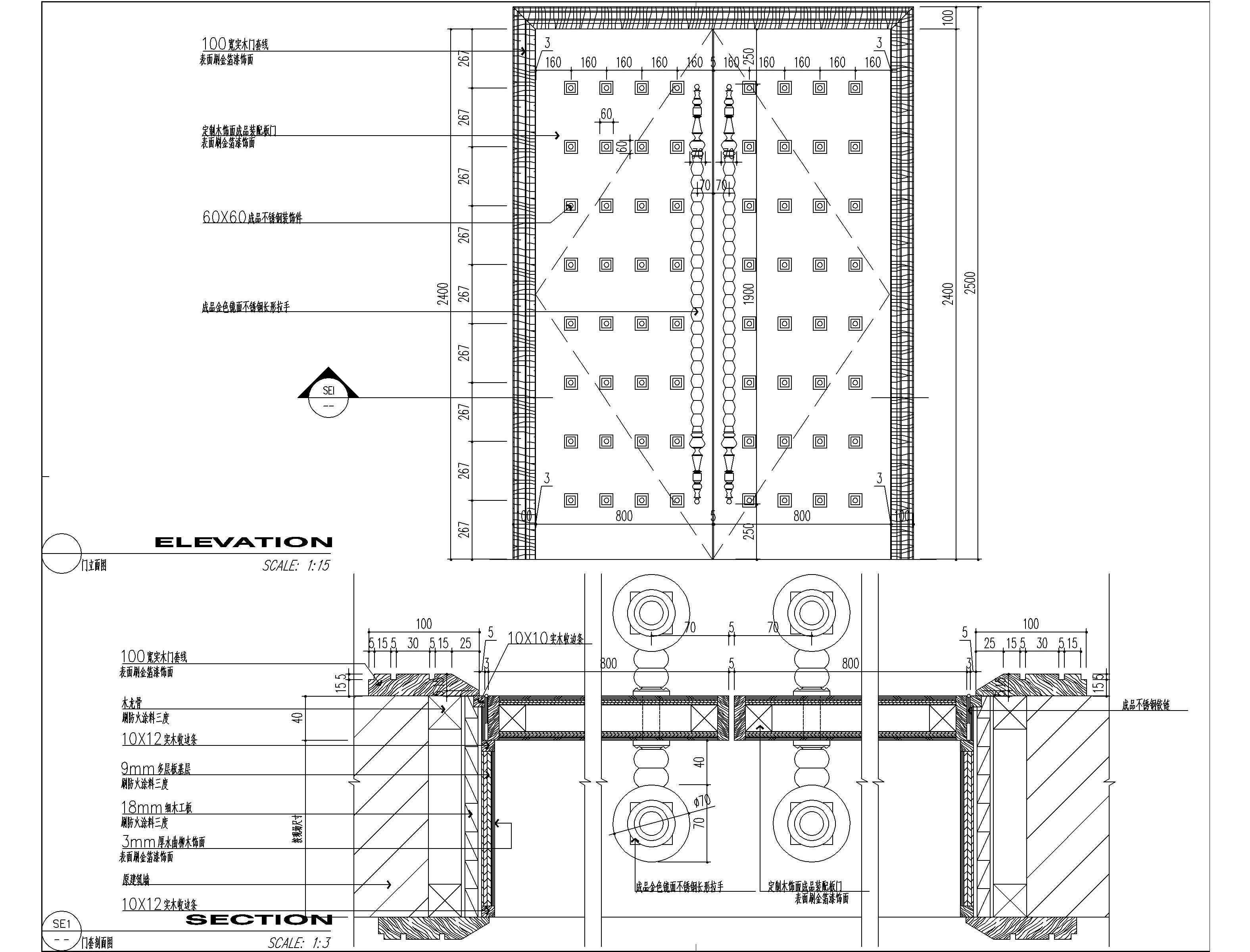
豪包.jpg

 

现代超有特色餐厅施工图.rar

57.59 MB, 下载次数: 1

售价: 9 交易币  [购买]

精华推荐
换一换

发表评论0

现代超有特色餐厅部分施工图+效果图
拓者推荐
  • 明星杨采钰的家丨召禾设计
  • 洣图设计 | 国锐白玉茗艺墅!
  • 收纳设计【直播 1月29-31日】
  • 璞辉设计 | 重塑家的软装哲学
  • 柒筑设计|265㎡瓯江之畔
  • 无间-上海汤臣君品合院方案
  • 君品-汤臣金桥花园项目方案
  • 召禾设计-顶级私人豪宅方案
  • HWCD-苏州吴中区280合院
  • 召禾设计-绿城潮鸣东方
  • 2025拓者年费+案例Vip会员说明!
  • 【 拓者年费--CAD图纸】
  • 【 拓者年费--户型方案】
  • 【 拓者年费--豪宅视频】
  • 【 拓者年费--灵感图库】