|
本帖最后由 LeDDesign 于 2022-9-22 13:28 编辑 中式禅意与现代舒适生活自然相遇
绿城·莲花小镇栖于天台石梁镇近800米海拔的山顶,聚风凝气,扶摇直上,腾达之意象。依山划地,擎画高山中式养生宅院、养生文化主题酒店、高山风情商业街、养心书院、高山滑雪场等物业形态,布局有序,蔚然之间,已成一个集养、食、住、游、娱、禅于一体的全龄养生高山小镇,前景似锦。绿城莲花小镇一期春晓苑,建筑形式采用独门独户的中式宅院。中式宅院置身绿色林海之中,视域阔达无界,建筑拟旨中式合院,复原中式宅院的昔日荣光。
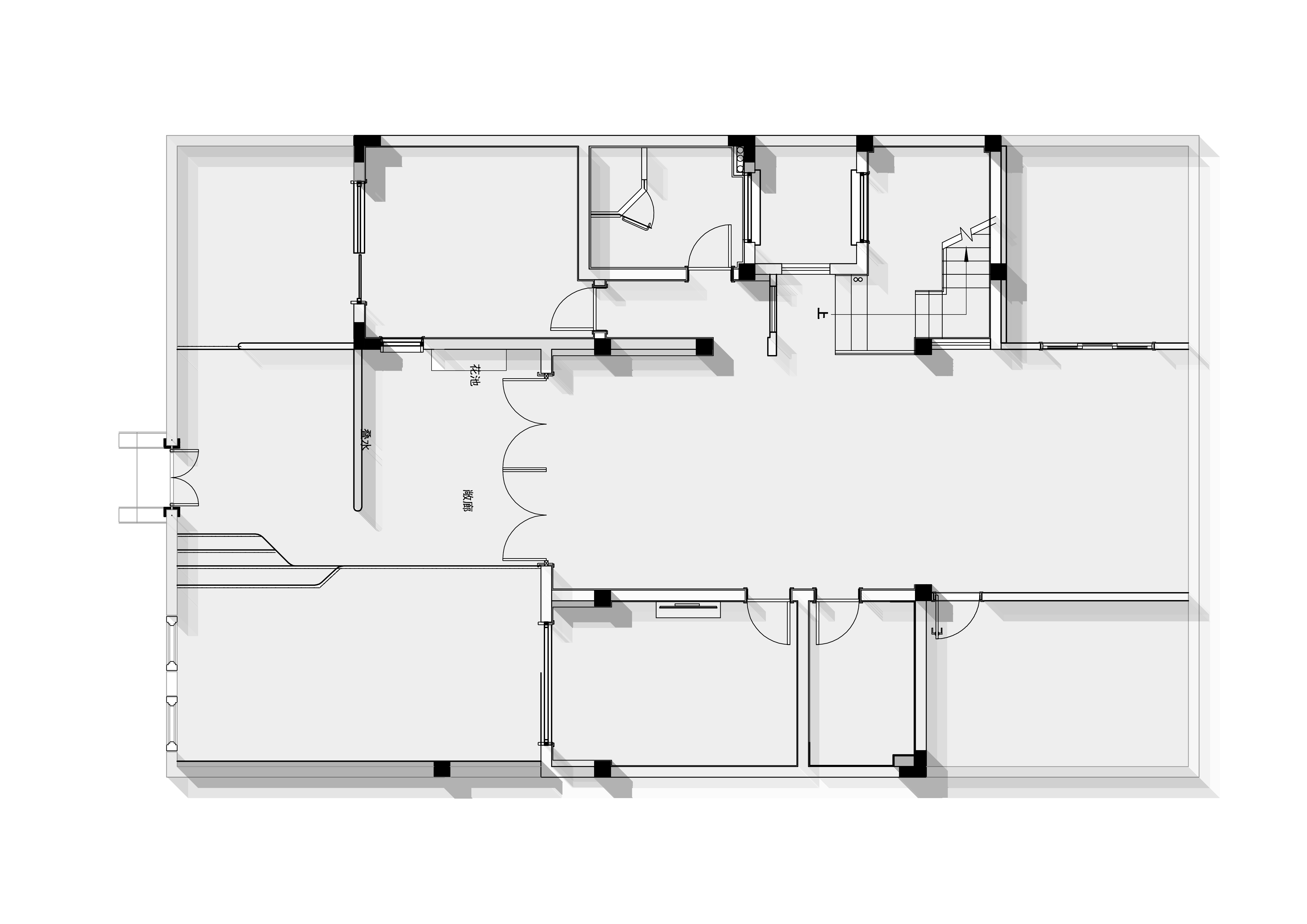
一层原始平面图
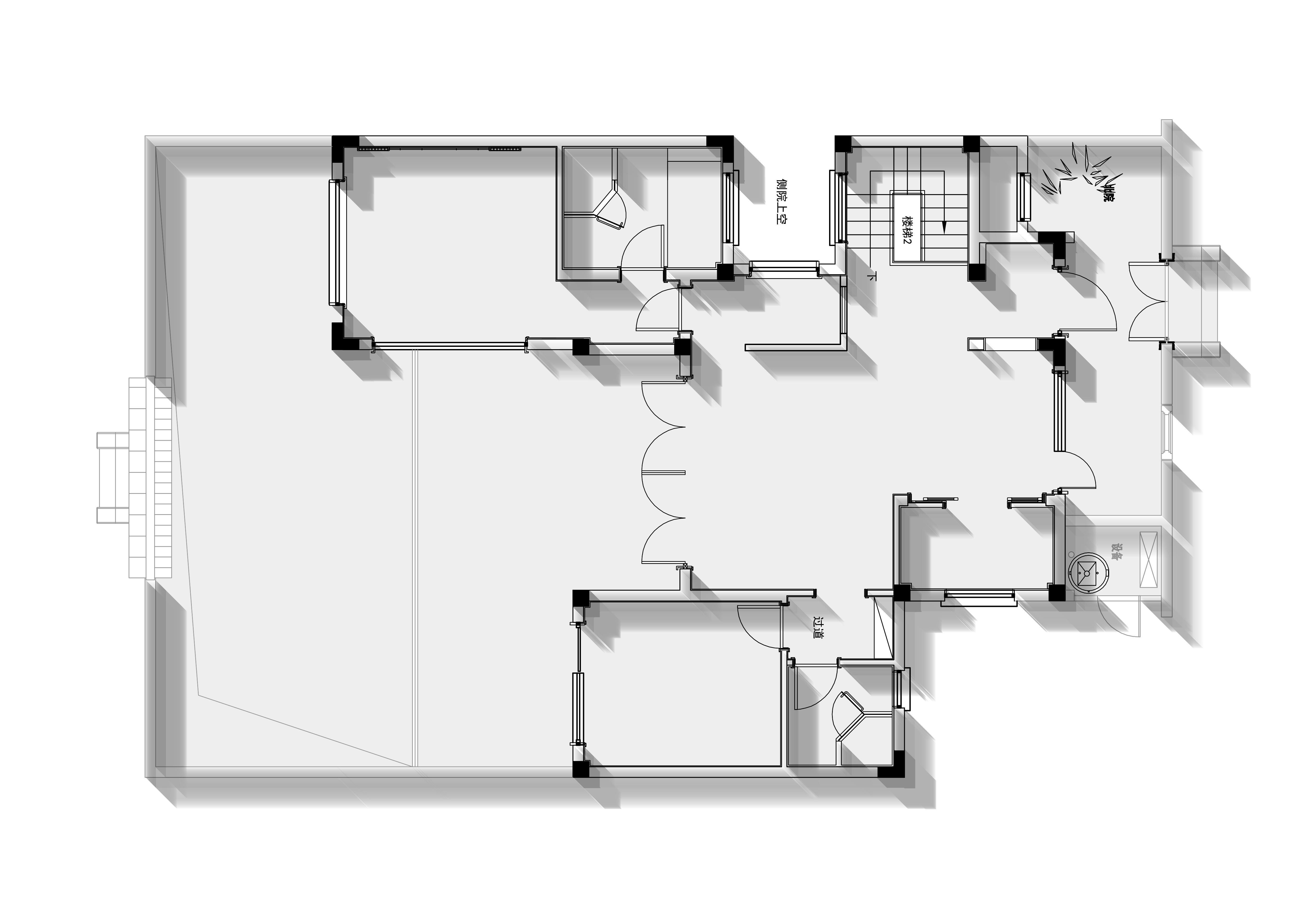
负一层原始平面图
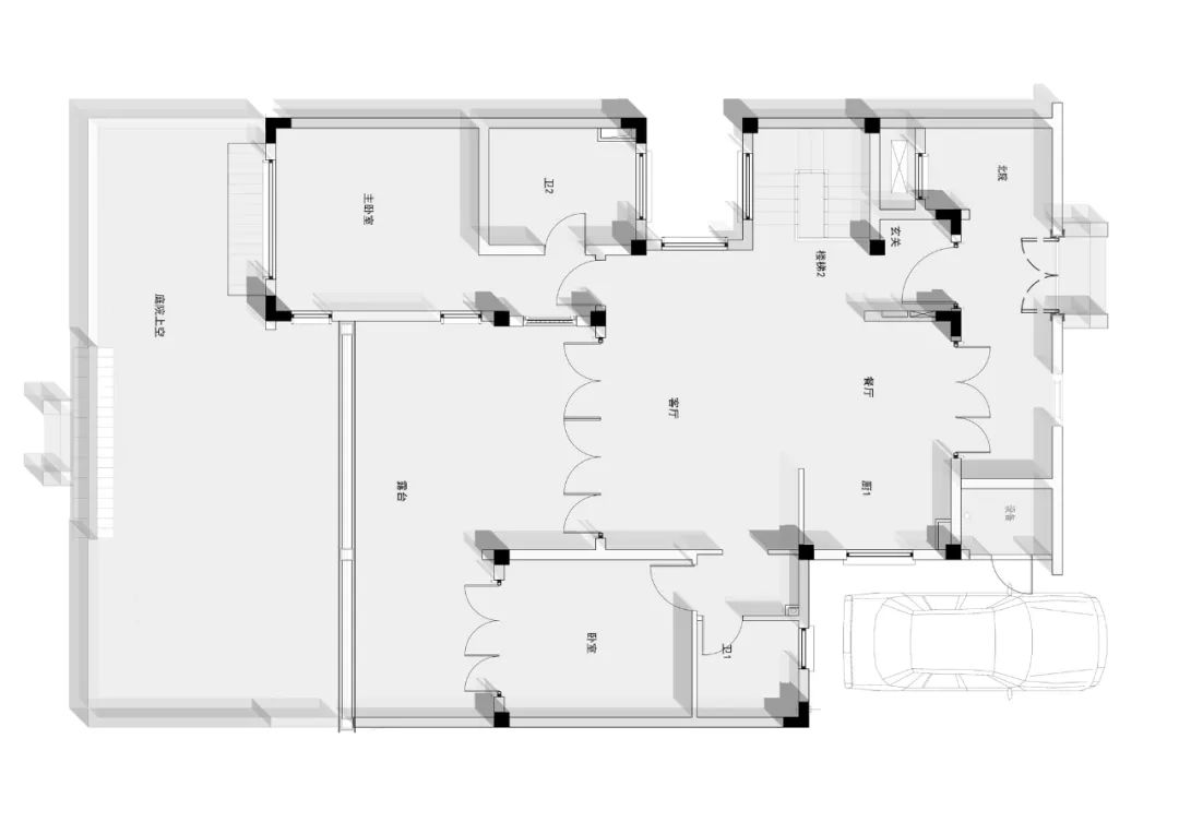
一层平面布置图
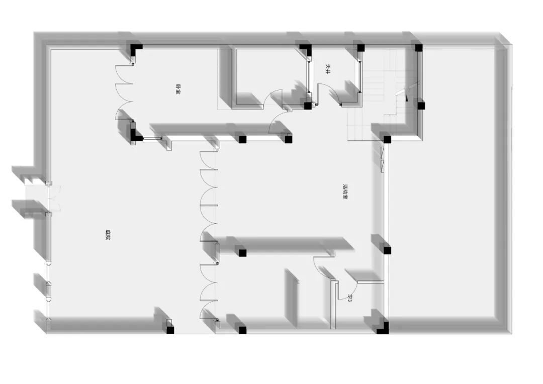
负一层平面布置图
outdoor/室外 别墅外观是一套拥有现代形制的合院式别墅,庭院中还加入了偏现代风格的造景,且以传统东方气质为美,放眼望去整个合院,简单却又具诗意之感。
在院子里建一个泳池,在天气晴朗的日子里,兴致来了下水游一游,惬意无比。采用墙上出水,不使用时可作为一处流水景观。台阶上设计了长条灯带,使光线照出台阶的层次感。
泳池采用微水泥饰面,整体色彩氛围宁静而高贵,再配合延长灯带的点缀,整个泳池的氛围感一下子就出来了。
旁边设计了一个户外秋千设计搭配上墙边的植物造景又有几分禅意,远离城市的喧嚣,可以在这里静静的思考。
入户端景玄关设计,虚实结合,让主人一进屋就有一种心旷神怡的感觉。
一盏小灯也能让人回家的时候放松下来。
在庭院中设计一处品茶区,是别墅业主不可或缺的,闲暇时,在庭院休闲区聊聊天,喝喝茶,是和朋友家人相聚的好地方。
Public area/公区
楼梯背景采用人工定制马赛克设计,孔雀绿的色调贴合自然,坐在餐厅吃饭聊天有一种别样的心情体验。
冬天室外白雪皑皑,室内悬吊壁炉暖意浓浓,几个好友,家人围坐一起,谈谈今年成果,展望明年的生意前景,是一种别样的温馨。
The master bedroom/主卧 主卧设计经过提炼和保持冷静,通过细节和使用花鸟苏绣背景墙,散发出一种低调奢华的感觉。微妙、柔和的曲线贯穿整个空间,反映了自然元素,同时为整个空间带来了独特的设计美学。
衣柜采用大叶紫檀全实木家具,体现了客户追求自然的生活态度。
精巧的装饰品,能够营造自然与温馨的氛围,在满足美感需求的前提下让整个空间显得空灵清隽。
Second lie 1/次卧1
整体中式氛围,融入了极简风格的磁吸轨道灯,不仅有中式的稳重,而且有现代的时尚。
Second lie 2/次卧2
实木木饰面,结合格栅木饰面,在中式风格的基础上加入了别样的风格。
cloakroom/衣帽间
衣帽间采用全套东南亚酸枝红木,并结合现代衣柜系统的层板灯,收纳系统,意大利天地铰链。
Av Room/影音室
影音室设计采用了中式吸音格栅里面,天花采用星空顶吸音氛围吊顶,观影沙发选用了baxter拉扣沙发,时尚而舒适。
Wine Cellar/酒窖
酒窖采用了恒温恒湿酒柜系统,可以储藏红酒,白酒,茶叶,古玩,字画等。让主人的精品收藏得到全天候保护。
Sweat Lodge/汗蒸房 工作一天,身体也很疲劳了,不用特地去商业空间去做SPA和桑拿,回到家一样可以体验高端汗蒸体验。
徐乐添 设计创始人 - 从业13年 专注室内空间设计 高级室内设计师、建筑师、工程师、建造师 清华大学空间环境艺术设计硕士
|
精华推荐
换一换


发表评论0