|
项目名称:昆山天使湾独栋别墅 项目地点:昆山天使湾 设计内容:室内设计 项目面积:约300平米 设计时间:2017年 设计机构:上海赫富斯建筑装饰有限公司(英文简称:HFS) 主笔设计师:黄峰 施工单位:业主自定 材料:象牙白大理石、浑水油漆、壁布
当2017年业主邀请设计师主笔这个项目的室内设计时,距离业主买下这栋别墅已近10年,这10年中他游历了法国、意大利、希腊等国家。业主本人是从事与建筑设计相关的职业,在游历了雅典卫城、圣托里尼、卢浮宫等地后,很自然的倾向在新的居所中选择法式美学的装饰调性,在这北欧自然风、意式轻奢风、日式侘寂风大行其道的今天反倒有些另类。
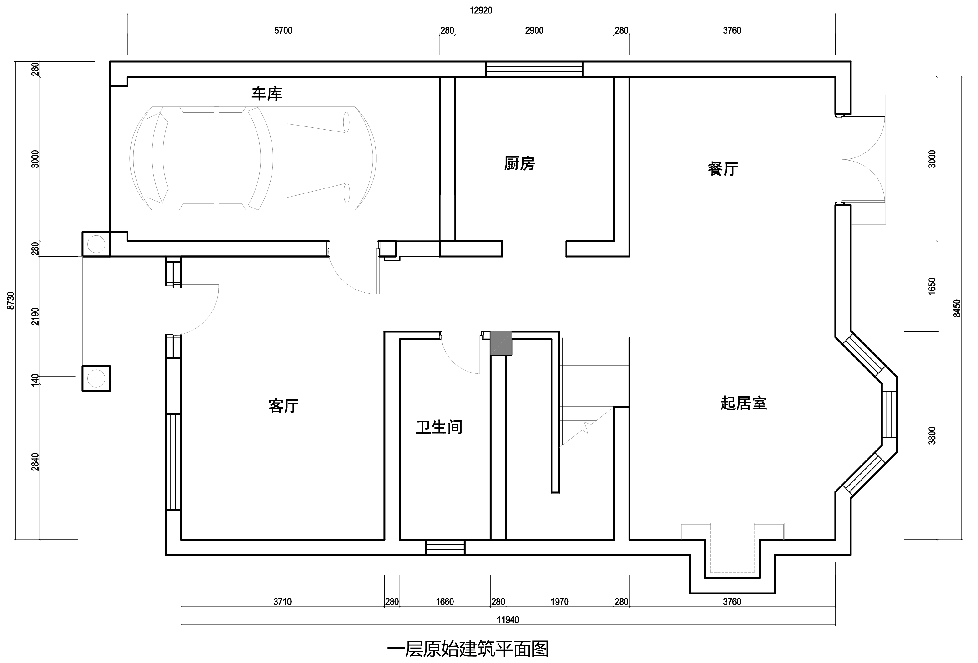
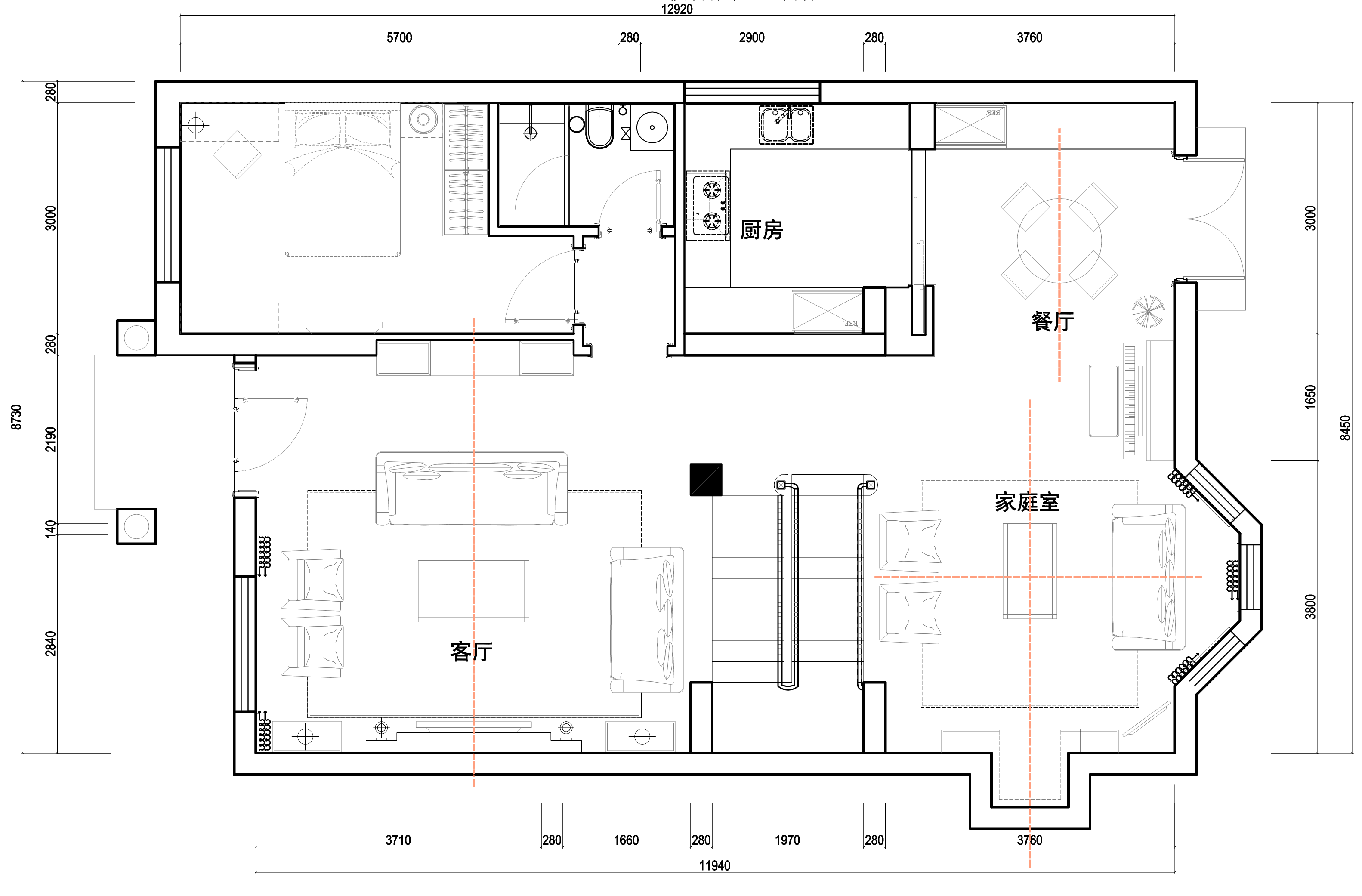
空间的骨架和序列是从平面图设计开始的。在一楼原建筑设计中,空间被分割的过于破碎:客厅太小,楼梯间旁边的卫生间坐落在空间的中心位置并将客厅与起居室隔开,空间显得过于闭塞。业主认为一层朝南的车库过于奢侈,可以取消它。如此将卫生间移至原车库处,将客厅扩大至楼梯间处,空间尺度相对适用了。通过楼梯间不高的透空栏杆,将客厅和起居室在视线上连成一片,大宅的空间气势就此生成。
二层的难点是业主要做三个卧室(主卧、次卧、客卧)+一个更衣室,还希望卧室都是带卫生间的套间,并且主卧、次卧均需要朝南。这样的需求引起主卧套间面积偏小不好排布。经过设计师一番苦思冥想,将卫生间四件套(洗手台、马桶、浴缸、冲凉房)分开设置,利用原主卧室偏狭长的特点,先划分出储衣区、冲凉房、门厅区,台盆区外置,浴缸和马桶拼在一个区域,睡眠区就顺势排布出来。紧凑的空间中还利用了门厅区和台盆区的转折,保证了卧室对隐私性的要求。每一寸空间都没有浪费,得到最高效的利用。 无论法式、中式,古典空间在造型布局上讲究对称。必须在空间中找到几根对称轴线来控制立面造型的位置。在一层公区中,从电视背景墙出发,穿过中心茶几、三人位主沙发至陈列柜,形成客厅看不见的对称控制轴线。起居室、餐厅同理。如此就获得了一个稳定、和谐状态的空间形式感受,建立起各角度的视线落点,让空间好用又好看。
造型型制选择官邸制,有造型但不张牙舞爪,尽量保持克制。在具有与仪式感的空间表情下,又不失生活的烟火气息。
公共区域选择了流行于18、19世纪法国贵族官邸中的明黄色,给空间带来一种家应该所具有的温暖感和温情感,无形中提高了家庭成员之间交流的欲望,让到访的客人感受到一种热情。白色起到中和明黄色的作用,让明黄色不至于于让空间过分活跃,是对立的统一。各种深浅不一的宝蓝色作为跳色点缀在空间中,含蓄而典雅。 客厅背景墙的两侧做了装饰挂镜的设计处理,同背景墙的重彩绘画形成一实一虚、一亮一暗的对比关系。为了让镜子不显得过于闪亮而抢镜,设计师借鉴了凡尔赛宫镜厅中茶灰色锈镜作材质。 明清时期,欧洲的宫廷中东方艺术风格成为时尚,室内装饰和家具中大量使用东方元素,业主到欧洲游历时,也发现中国的重彩绘画经常出现在重要的墙面上,起到艺术装饰的作用,很是喜欢。设计师在一楼客厅的电视背景墙和主卧室床背景上,分别使用了不同色系的重彩绘图作品,效果不同凡响,成为空间的视觉中心,同时显示出主人的艺术格调和品味。
以法式为代表的欧洲古典设计风格,已经经历了几百上千年的时间的沉淀和选择,它的调性不会随着时间的推移而过时。法式自带的贵气感、殷实感与美好感,满足着人们对美好生活的期待。 业主于2018年入住本案四年后,在2022年8月中旬才得以拍照存档并发表。设计师再次亲临现场,感觉它不仅是逝去的过去,同样也在当下,也会在未来历久弥新
在2017年时,设计师主笔了两个风格调性截然不同的住宅项目,一个是本案的法式风格,另一个是现代中式风格。至今还陆续设计过意式轻奢风、北欧自然风、现代度假风、侘寂风、奢牌潮流风等不同调性的案例。设计师的观点是:设计师都会有自有擅长的风格、审美偏好,但它们不重要。重要的是通过设计师的专业能力,在各种限制性条件中,实现业主对家的期待和审美理想。幸运的是,无论是设计师主笔的哪个项目,业主都非常信任,只会在平面设计阶段对功能性的需求提出意见,效果图设计方案基本一次通过,为彼此都节省了大量的沟通时间和精力成本。后续会将近几年做的不同风格调性的案例陆续发表,敬请期待. 主笔设计师介绍:黄峰先生早年在师范学校学习美术,当过三年美术老师,喜好阅读文学、历史、哲学类书籍。九十年代在美术学院进修室内设计,世纪之初开始了室内设计师的职业生涯。2009年起与英国籍设计师GRAHAME ELTON先生合作经营以室内设计为主营业务的公司,开展高端住宅、样板房、会所、酒店、办公楼等空间的室内设计。 公司介绍:上海赫富斯建筑装饰有限公司(英文简称:HFS)成立于2011年。主营样板房、高级别墅、会所等空间的室内设计业务。
|
精华推荐
换一换



发表评论0