DESIO大铄设计丨临港新城馨尚锦苑售楼部:一场探秘 x 洄游 x 新生的体验

仅供分享不做任何商业用途,版权归原作者所有,谢谢配合。

马上注册,结交更多好友,享用更多功能,让你轻松玩转社区。

您需要 登录 才可以下载或查看,没有帐号? 注册

x
00文首.gif
临港新城 · 馨尚锦苑位于上海市浦东区的核心区域,作为上海市的五大新城之一,临港新城依托洋山深水港和浦东国际机场,毗邻国内首座跨海大桥以及首个国家级保税港,凭借其得天独厚的地理条件、突出的区位优势以及开放的政策支持,坐享一城繁华配套,链接全城通达生活圈。

DESIO大铄设计的灵感源于临港新城主城区的滴水湖,取滴水见海的概念,售楼处好似微缩的城市社区生活中心,以超未来艺术手法将“水生万物 · 无限流转”的美意落于空间构筑,功能上亦由展售演变为多元复合的生活体验馆,彷佛身处雅灰风时光机一同探索海底两万里!





未标题-1_画板 1 副本.jpg
1.jpg
入室,确如其名“港城丨悦庭”,优雅的气度更创无限的想象空间,营造来者皆是客的轻松愉悦、强仪式感氛围。

2.jpg
3封面图.jpg
接待区整体可分为三面不同质感的界面,黑色大理石铺就大气稳重的地面,米灰色墙砖随竖向墙体的转折而铺贴,于整体造型中不乏诸多细节,滴水欲落的装置垂于线性感的墙面是作点睛之笔,接待台的棱面亦是对蓝灰色玻璃架构的天井造型的呼应,联结天井与墙体的为大尺度通铺的木饰面天花板。

4.jpg
滴水见海,仰视意为天景,而光透过天井照到天花、墙面、吧台与地面,藉自然之力展现出不同的质感与纹理,增强室内的空间感、层次感。
6.gif
视觉框景底墙半露的雕塑引人入胜,右转透过墙面带有标识性的圆孔造型,进一步探秘。



未标题-1_画板 1.jpg
7.jpg
8.jpg


转至内部,紧邻大面积玻璃窗划分满足多元功能需求的主题区域,设计上我们也相当注重区域感的塑造,区域不一定是以实体的界面来区隔,透过沉浸式社交体验的操作,也就是让空间的平面布局与组成元素相互对话,满足动与静、开放与半开放的功能需求。

9.jpg
10.jpg
11.jpg
12.jpg
例如水吧台的重色系橱柜、环柱陈列的洽谈区座椅、矩形地毯承接卡座与茶几的休闲区布局,墙角半围合式的品酒区座椅、童乐区的造型天花回应了下方空间的家具布局和地毯纹理,软硬兼施在单一均质的大空间中创造出不同功能场域的主从关系,进而定义出空间的区域感。
13.jpg
14.jpg
海纳百川,让空间承载故事,让美学融入生活。
15.jpg
16.jpg
游至沙盘区,最瞩目的便是星辰大海--天花板垂落成千上百条定制的鱼形薄片,以雅灰色为主色调,同时点缀贯穿主题的海洋蓝,透过数位等差的运算创造出如同洄游的鱼群,轻盈剔透的鱼形薄片在白天与夜晚都有着迷人的效果。
17.jpg
18.jpg




未标题-1_画板 1 副本 2.jpg
19.jpg
20.gif
深海蓝的楼梯是海底时光机的隧道,狂想穿越未来,通向雅奢氛围的社交场域。

21.jpg
22.jpg
放眼望去,些许湛蓝色的水滴将要浸润水波纹地面,而墙面的光影作动态之势,再缓缓像暗夜的边界泛滥开去,彷佛我惺忪睡眼中的景,设计以抽象的艺术手法悬挂雨露,定格风调雨顺之美意。
滴水见海,无限流转;鲤跃龙门,寓意新生。

23.jpg
24.jpg
25.jpg
两个VIP洽谈室皆是简明的空间,灰色基调之上,以蓝色系花艺与抱枕为点缀,单椅与壁挂的艺术装置为夺目的亮点,装置以抽象手法,藉水波纹不锈钢的材料属性,将天降普泽的美誉定格为滴水之势,营造居家的真实体验与舒适的商谈氛围。

26.jpg
27.jpg
水育新生,以水滴形状的艺术装饰,凝练提取淮水文化底蕴并贯穿始终,形成一场人与天地之间的自然对话。
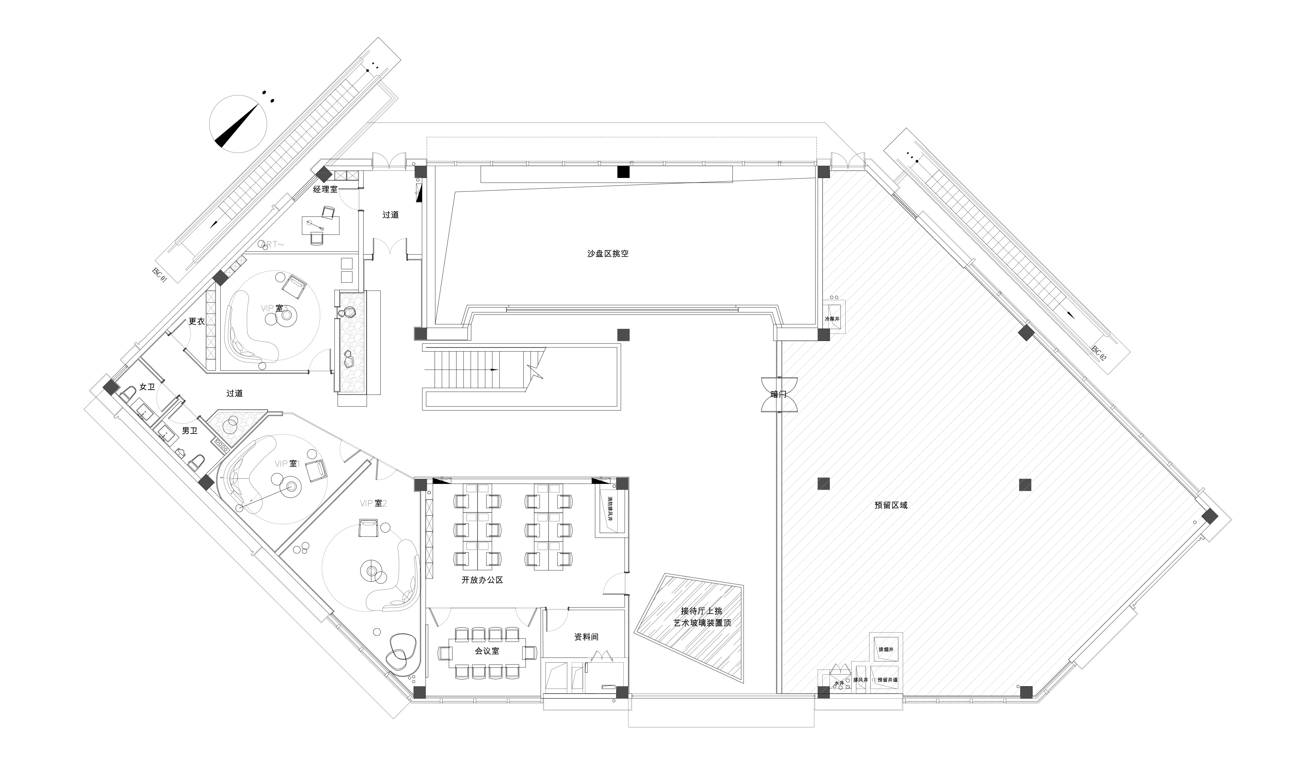
一层平面图.jpg
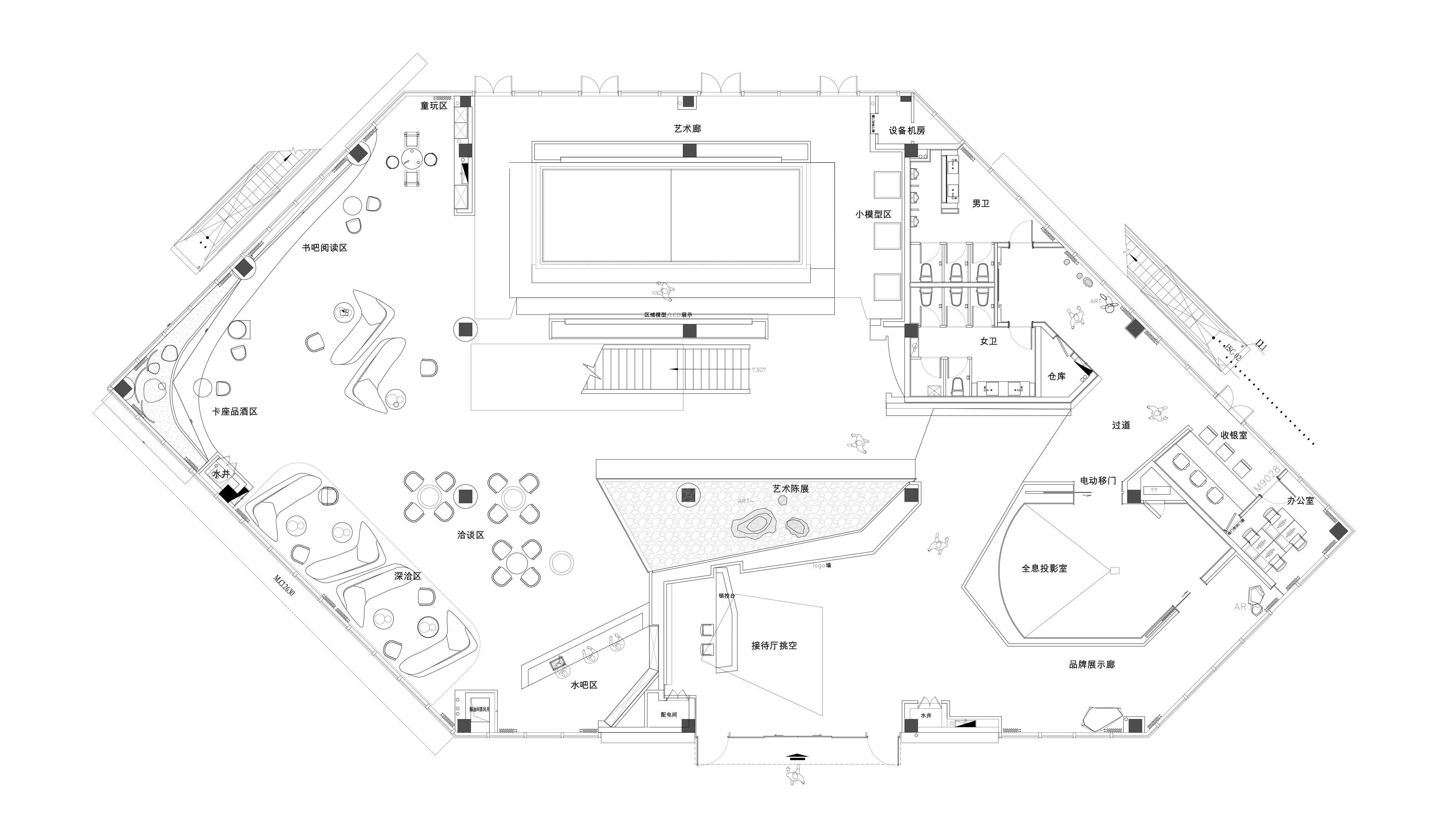
二层平面图.jpg
平面图
项目信息
项目名称丨临港 · 海港新城馨尚锦苑售楼部
硬装设计丨DESIO DESIGN
软装设计丨DESIO DESIGN
设计主创丨Sherry Sun
设计团队丨姜文静,谢新月
设计时间丨2021年12月
完工时间丨2022年7月
空间面积丨1963㎡
摄影团队丨ingallery

后记
城市不断向前发展,新旧更新是必然趋势。海港新城馨尚锦苑售楼部,是引导现在走向未来的全新典范新生项目,“滴水见海”概念贯穿空间,整体灰色基调之上以海之蓝为点缀,辅以美学生活的精致花艺、质感家具与艺术装置;让每个空间叙述人们探索未来的故事,这里是城市社区生活的沉浸式体验中心,呼应着城市更新的时代精神与可持续发展的必然趋势。
微信图片_20221111130825.png



DESIO大铄设计,知名的综合性专业设计公司,2014年成立于上海,为客户提供集前期规划、室内设计、软装陈设及家居生活一体的定制服务,和象屿、中国铁建、保利、中铁置业等一线开发商建立了长期的合作关系。依托高度专业的设计团队、一流品质的创意技法、日臻成熟的服务体系,DESIO大铄设计已经成长为具有国际知名度的品质空间私属定制设计品牌,在地产设计、商业设计、创意办公、高端私宅等领域颇有建树。


标签: 大铄设计
精华推荐
换一换

发表评论0

DESIO大铄设计丨临港新城馨尚锦苑售楼部:一场探秘 x 洄游 x 新生的体验
拓者推荐
  • 朴悦-华润小径湾-悦海白兰墅
  • 琚宾-杭州保亿观云钱塘城
  • 召禾设计-上海汤臣君品
  • CCD-华润置地南通澐璟
  • HBA&DAS-中海江南玖序
  • CCD-华润 CCBD 889㎡设计方案
  • 【召禾设计]天际江景超大平层方案
  • 【WSD世尊】建发·云启玉诸
  • CCD-华润玺宸上院中叠样板间
  • CCD-武汉绿城外滩玫瑰园别墅
  • 2025拓者年费+案例Vip会员说明!
  • 【 拓者年费--CAD图纸】
  • 【 拓者年费--户型方案】
  • 【 拓者年费--豪宅视频】
  • 【 拓者年费--灵感图库】