五味壹品牛肉面门头及室内装饰设计(含效果图)全套施工图(详细)

2022-11-20/ CAD图纸/ 其它图库/ 只看大图 阅读模式
仅供分享不做任何商业用途,版权归原作者所有,谢谢配合。

马上注册,结交更多好友,享用更多功能,让你轻松玩转社区。

您需要 登录 才可以下载或查看,没有帐号?注册

x
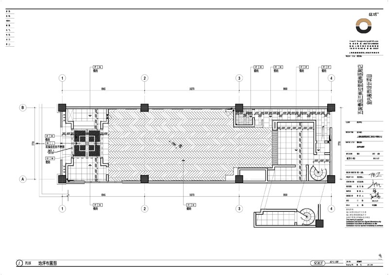
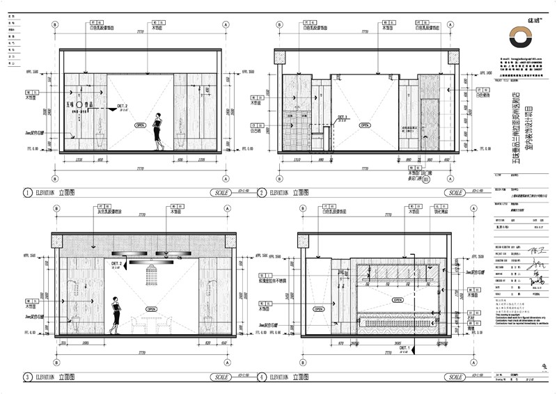
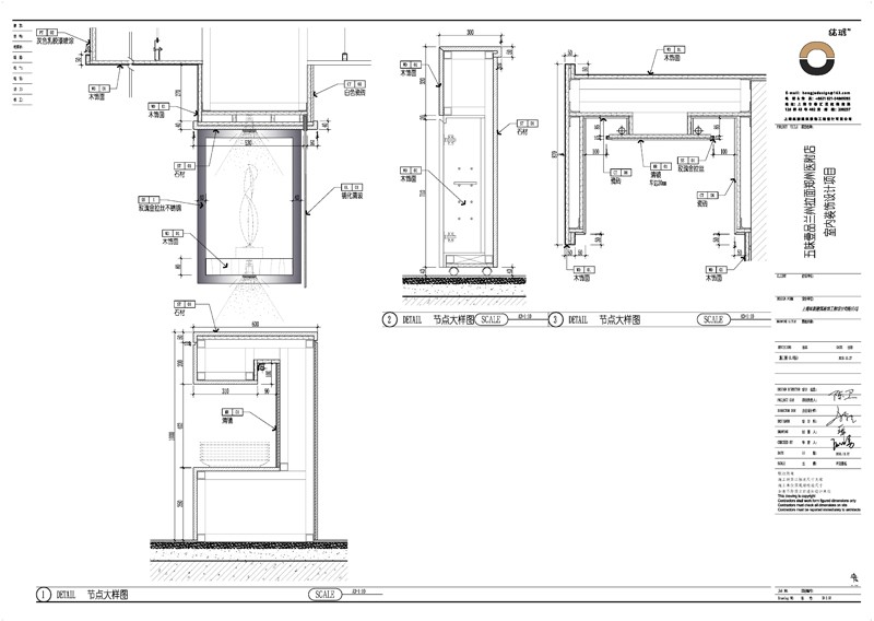
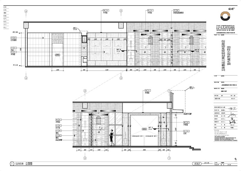
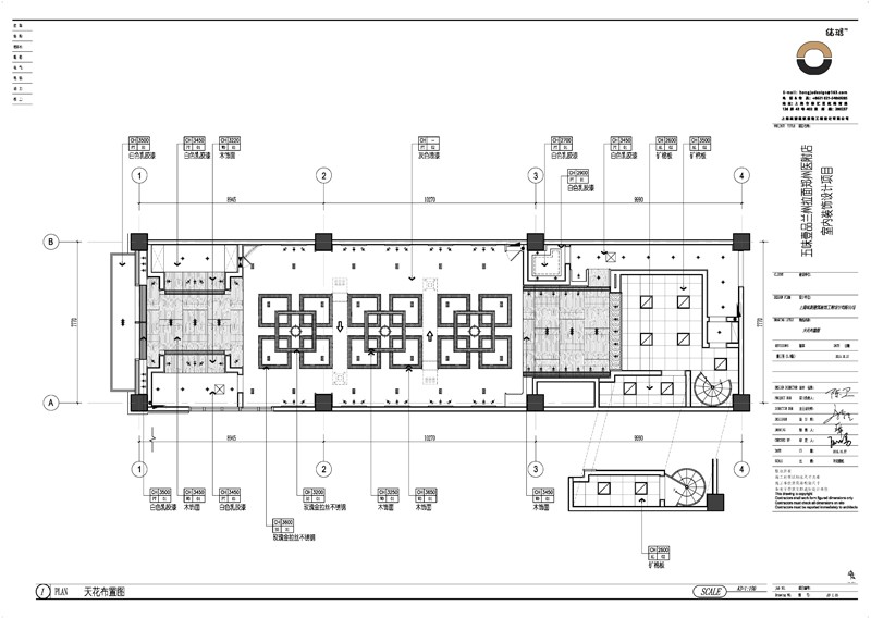
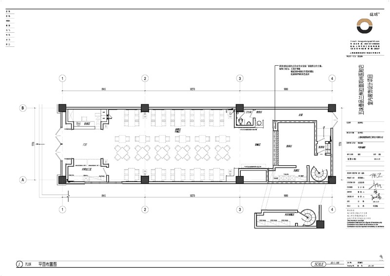
ID 1.03 平面布置图.jpg ID 1.04 地坪布置图.jpg ID 1.05 天花布置图.jpg ID 2.02 就餐区立面图.jpg ID 2.03 就餐区立面图.jpg ID 2.04 就餐区立面图.jpg ID 3.02 节点详图.jpg 7.jpg

五味壹品牛肉面门头及室内装饰设计(含效果图)全套施工图.rar

20.01 MB, 下载次数: 6

售价: 7 交易币

精华推荐
换一换

发表评论0

五味壹品牛肉面门头及室内装饰设计(含效果图)全套施工图(详细)
拓者推荐
  • 明星杨采钰的家丨召禾设计
  • 洣图设计 | 国锐白玉茗艺墅!
  • 收纳设计【直播 1月29-31日】
  • 璞辉设计 | 重塑家的软装哲学
  • 柒筑设计|265㎡瓯江之畔
  • 无间-上海汤臣君品合院方案
  • 君品-汤臣金桥花园项目方案
  • 召禾设计-顶级私人豪宅方案
  • HWCD-苏州吴中区280合院
  • 召禾设计-绿城潮鸣东方
  • 2025拓者年费+案例Vip会员说明!
  • 【 拓者年费--CAD图纸】
  • 【 拓者年费--户型方案】
  • 【 拓者年费--豪宅视频】
  • 【 拓者年费--灵感图库】