本帖最后由 w_studio 于 2022-12-13 14:21 编辑
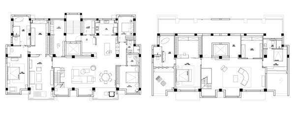
红木家具与法式雕花,共同描绘了一幅不可复制的隽永画卷。 Rosewood furniture and French carvings together depict a meaningful picture that cannot be copied. 母女两人同住,一层母亲住,希望保留现有的红木家具;二层女儿住,希望增加法式风情。两种风格的交织,正如母女生活中常发生的那样,时而无声陪伴,时而如胶似漆。 The mother and daughter live together, and the mother lives on the first floor, hoping to keep the existing mahogany furniture; The daughter lives on the second floor, hoping to increase the French style.The interweaving of the two styles, as often happens in the life of mother and daughter, sometimes accompanies silently, sometimes like glue. Ⅰ 平面圖 Planar graph
Ⅱ 客廳 Living room
设计先从保留的红木家具出发,大空间营造出兼容性比较强的基调,然后考虑楼上楼下风格元素的比重。风格背驰,但从颜色和氛围上可以融合。 The design starts from the preserved mahogany furniture, creating a more compatible tone in large space, and then considering the proportion of upstairs and downstairs style elements. The style is different, but the color and atmosphere can be combined.
Ⅲ 餐廳 Restaurant
在柔和、优雅的氛围中,设计师在每一个空间,都精心置入了视觉冲击点。圆顶灯光下,大理石、红木家具、艺术漆等多层次的材料运用,铺陈了从厨房到餐厅的连贯性的结构。 In a soft and elegant atmosphere, the designer carefully placed visual impact points in every space. Under the dome light, marble, mahogany furniture, art paint and other multi-level materials are used, laying out a coherent structure from the kitchen to the dining room. Ⅳ 臥室 Bedroom
无论是采用传统的家具还是现代感的装置,运用熟悉的物件,让空间瞬间充满了舒适的亲切感。较为私密的卧室空间,在统一的视觉色调中,融合了更多个性化的元素。 Whether traditional furniture or modern devices are used, familiar objects are used to make the space instantly full of comfortable intimacy. The more private bedroom space integrates more personalized elements in the unified visual tone.
Ⅴ 其它 Other
設計出品 / 無一內建築設計事務所 Design by / WUI DESIGN&ASSOCIATES 主案 / 吳恒 Design director / HENG WU 團隊 / 金夢 任銘 Partake / MENG JIN MING REN 视觉 / 無序 Vision / WISH 項目類型 / 私宅 Category / Private residence 关于我们 我们是WU 1,一个为生活而设计的团队,确切地说,是有关于这个时代的全新的生活方式。 我们的设计,永远来自于生活的本质需求, 这是我们坚定的价值观。作品从毫米到公里,从空间跨越到视觉、品牌,我们关注的永远是设计中人一与生活的关系。 |
精华推荐
换一换


发表评论0