原创施工图,打印样式直出简单彩平方案

2022-12-16/ 户型方案/ 户型交流/ 只看大图 阅读模式
仅供分享不做任何商业用途,版权归原作者所有,谢谢配合。

马上注册,结交更多好友,享用更多功能,让你轻松玩转社区。

您需要 登录 才可以下载或查看,没有帐号?注册

x
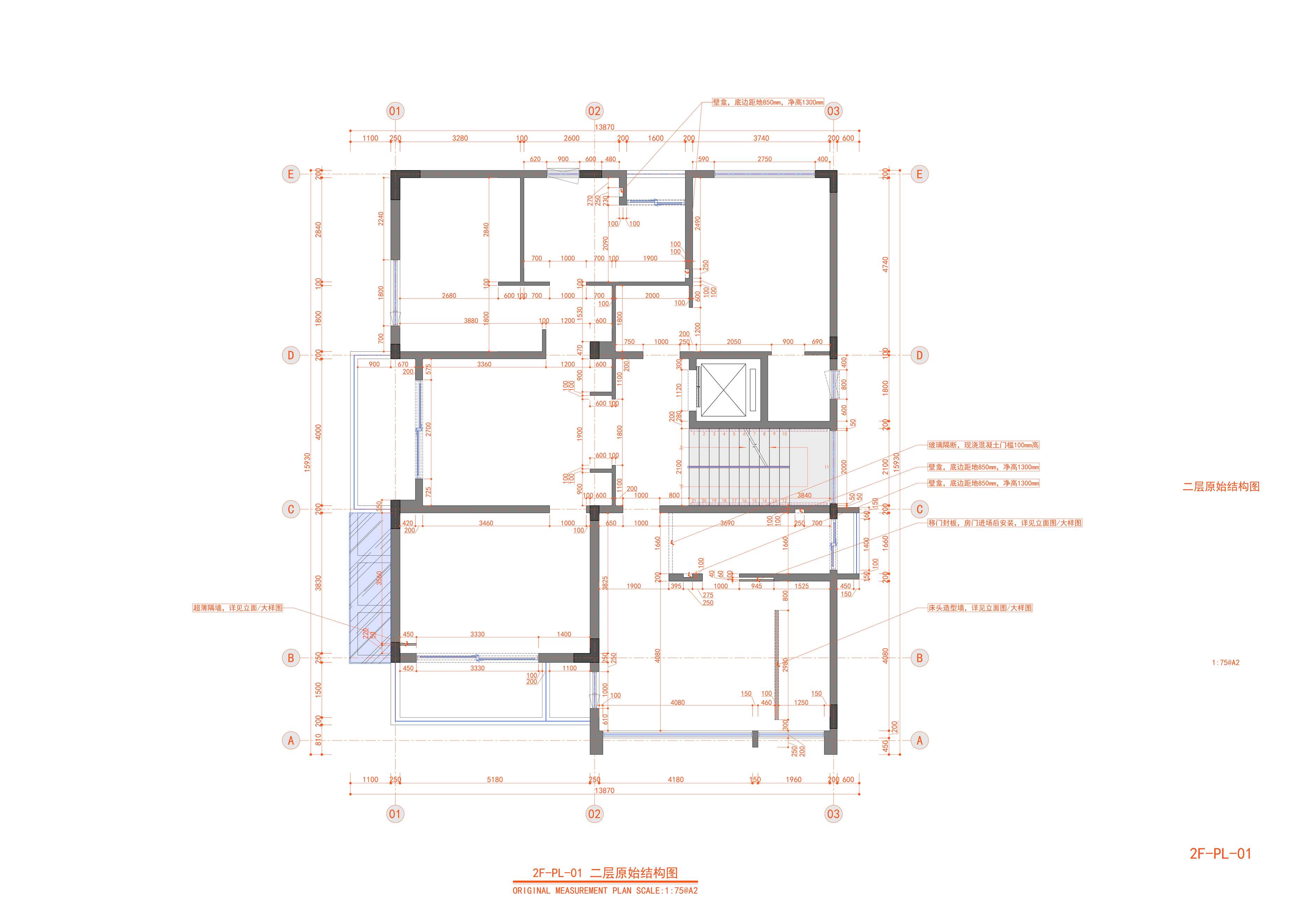
简单调整打印样式可出简单彩平方案,彩色施工图,方便网络传输用途,打印纸稿只需要切换打印样式即可

A2-1.jpg

红色

红色
C2-1.jpg

附上 一整层平面系统图

331-1.jpg 332-1.jpg 333-1.jpg 334-1.jpg 335-1.jpg 336-1.jpg 337-1.jpg 338-1.jpg 339-1.jpg 340-1.jpg 341-1.jpg 342-1.jpg 343-1.jpg


精华推荐
换一换

发表评论4

原创施工图,打印样式直出简单彩平方案
拓者推荐
  • 2026拓者 CAD户型方案 发布
  • 【武汉站—“樱”你而来】获客实操
  • 【武汉站—“樱”你而来】户型优化
  • 【武汉站—“樱”你而来】风水
  • 【梁志天】西安曲江·九曲松间
  • 无间-上海汤臣君品合院方案
  • 君品-汤臣金桥花园项目方案
  • 无间-上海大宁中建玖上琅宸
  • HWCD-烟台洲際酒店深化方案图册
  • 琚宾新作-资兴东江湖度假酒店
  • 2025拓者年费+案例Vip会员说明!
  • 【 拓者年费--CAD图纸】
  • 【 拓者年费--户型方案】
  • 【 拓者年费--豪宅视频】
  • 【 拓者年费--灵感图库】