书香情怀,状元府邸。

仅供分享不做任何商业用途,版权归原作者所有,谢谢配合。

马上注册,结交更多好友,享用更多功能,让你轻松玩转社区。

您需要 登录 才可以下载或查看,没有帐号? 注册

x
00-题图01.jpg
《埤雅·释鱼》:“俗说鱼跃龙门,过而为龙,唯鲤或然。

02.jpg
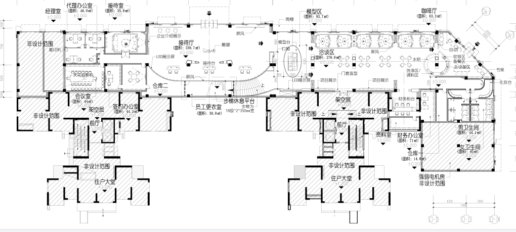
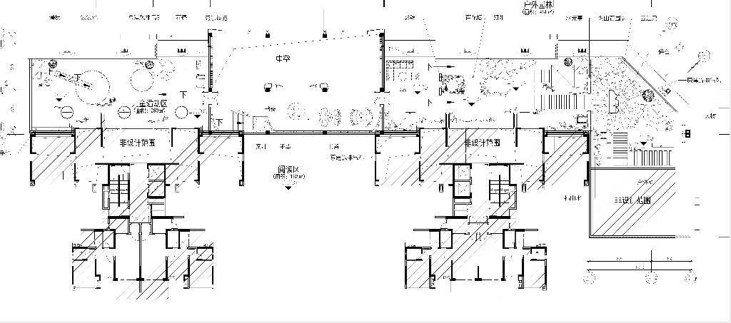
本案项目用地面积26666.64㎡。地块位于江门北新区潮连大桥附近,西江江景尽收眼底。周边拥有万达商场、汇悦城商场、奥园广场等商业配套,紫茶小学、江门市第一幼儿园等优质教育资源环绕,邻近高尔夫球场、丰乐公园、八卦山公园、元宝山公园等大型公共设施,居住氛围浓郁。建筑外立面以现代风格为主,为高层建筑,有商业配套,属博富控股西江边三旧改造项目。本设计运用空间格局改造,大块面,大尺寸,高挑到顶的书架及精心选材等手段解决了建筑先天空间比例过高及进深不足的问题 ,且引用了鲤鱼跃龙门的元素改造了前厅内两根大柱,小空间营造大气度,打造出人文博学的气息。
01
接待大厅


12-01.jpg

12-02 (2).jpg
02
沙盘展示区


12-03沙盘展示区.jpg
03
洽谈区

12-04洽谈区一.jpg

1676280114419.jpg
04
咖啡厅

12-06咖啡厅.jpg

12-07.jpg
05
VIP洽谈室及走廊

12-08VIP洽谈室.jpg

12-09走廊.jpg
06
财务室签约室

12-10财务室.jpg
07
公共卫生间

12-11公共卫生间.jpg
08
二层阅读馆

12-12二层阅读馆.jpg
09
二层包间

12-13包房.jpg

12-14.jpg

1676280363015.jpg

1676280386020.jpg
项目名称:广东江门北新区博学名苑营销中心
服务内容:外观、室内设计、园林概念扩初方案
面积:1520㎡

010.jpg

“叠尺设计”微信公众号



精华推荐
换一换

发表评论0

书香情怀,状元府邸。
拓者推荐
  • 朴悦-华润小径湾-悦海白兰墅
  • 琚宾-杭州保亿观云钱塘城
  • 召禾设计-上海汤臣君品
  • CCD-华润置地南通澐璟
  • HBA&DAS-中海江南玖序
  • CCD-华润 CCBD 889㎡设计方案
  • 【召禾设计]天际江景超大平层方案
  • 【WSD世尊】建发·云启玉诸
  • CCD-华润玺宸上院中叠样板间
  • CCD-武汉绿城外滩玫瑰园别墅
  • 2025拓者年费+案例Vip会员说明!
  • 【 拓者年费--CAD图纸】
  • 【 拓者年费--户型方案】
  • 【 拓者年费--豪宅视频】
  • 【 拓者年费--灵感图库】