请那位大师看看还有别的方案?现在没有电视背景 ,

2023-2-28/ 户型方案/ 户型交流/ 只看大图 阅读模式
仅供分享不做任何商业用途,版权归原作者所有,谢谢配合。

马上注册,结交更多好友,享用更多功能,让你轻松玩转社区。

您需要 登录 才可以下载或查看,没有帐号?注册

x
本帖最后由 kkbbccdd 于 2023-2-28 15:57 编辑

https://www.tuozhe8.com/forum.php?mod=attachment&aid=MTAxNDQ4MnxlMDY0YWJkNHwxNzY3MDE1NTA2fDB8 2023年2月20改-002.jpg 2023年2月20改-Model.jpg

2023年2月20改.rar

834.58 KB, 下载次数: 59

精华推荐
换一换

发表评论3

  • kkbbccdd 2023-2-28 15:55:15

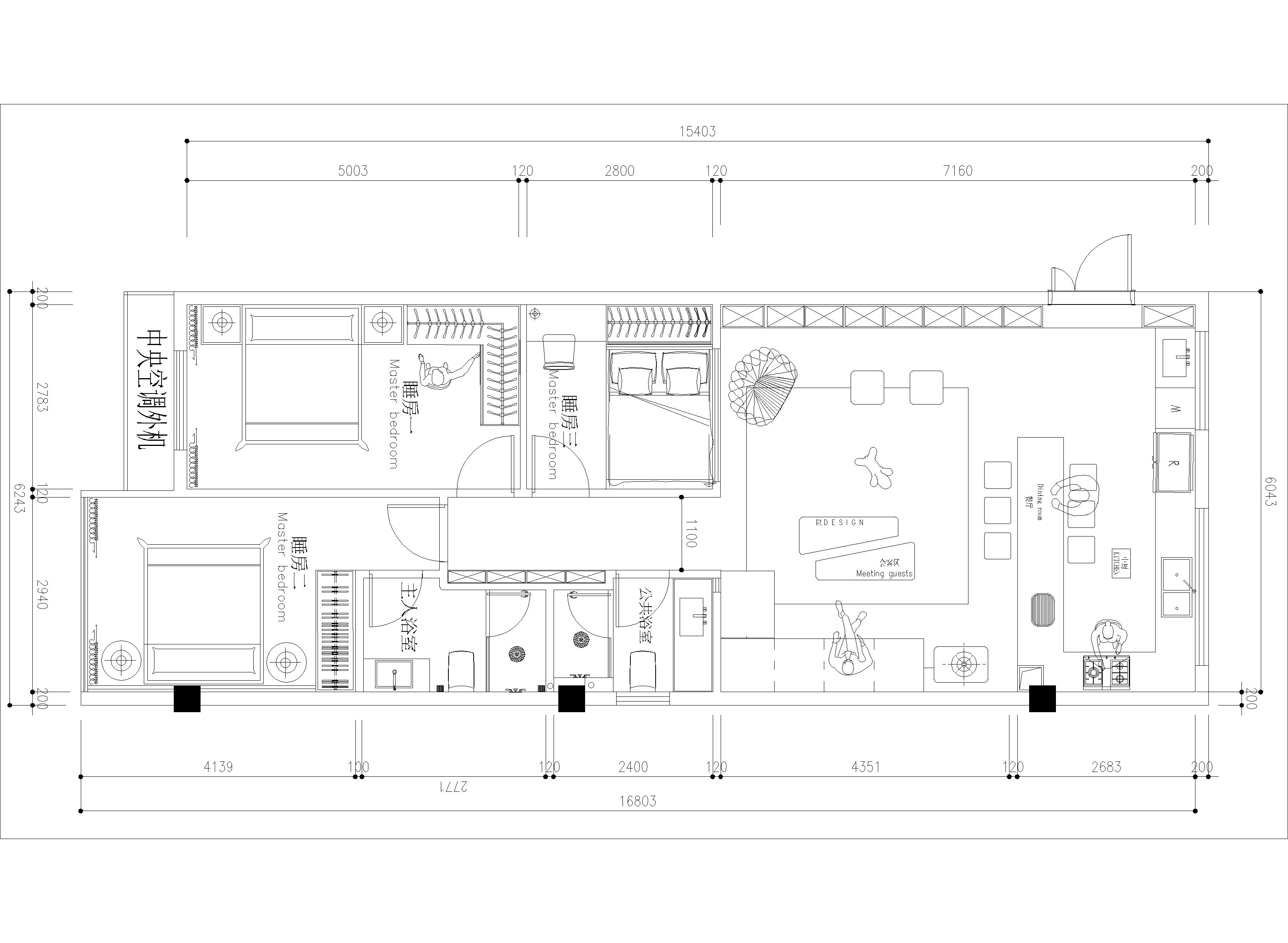
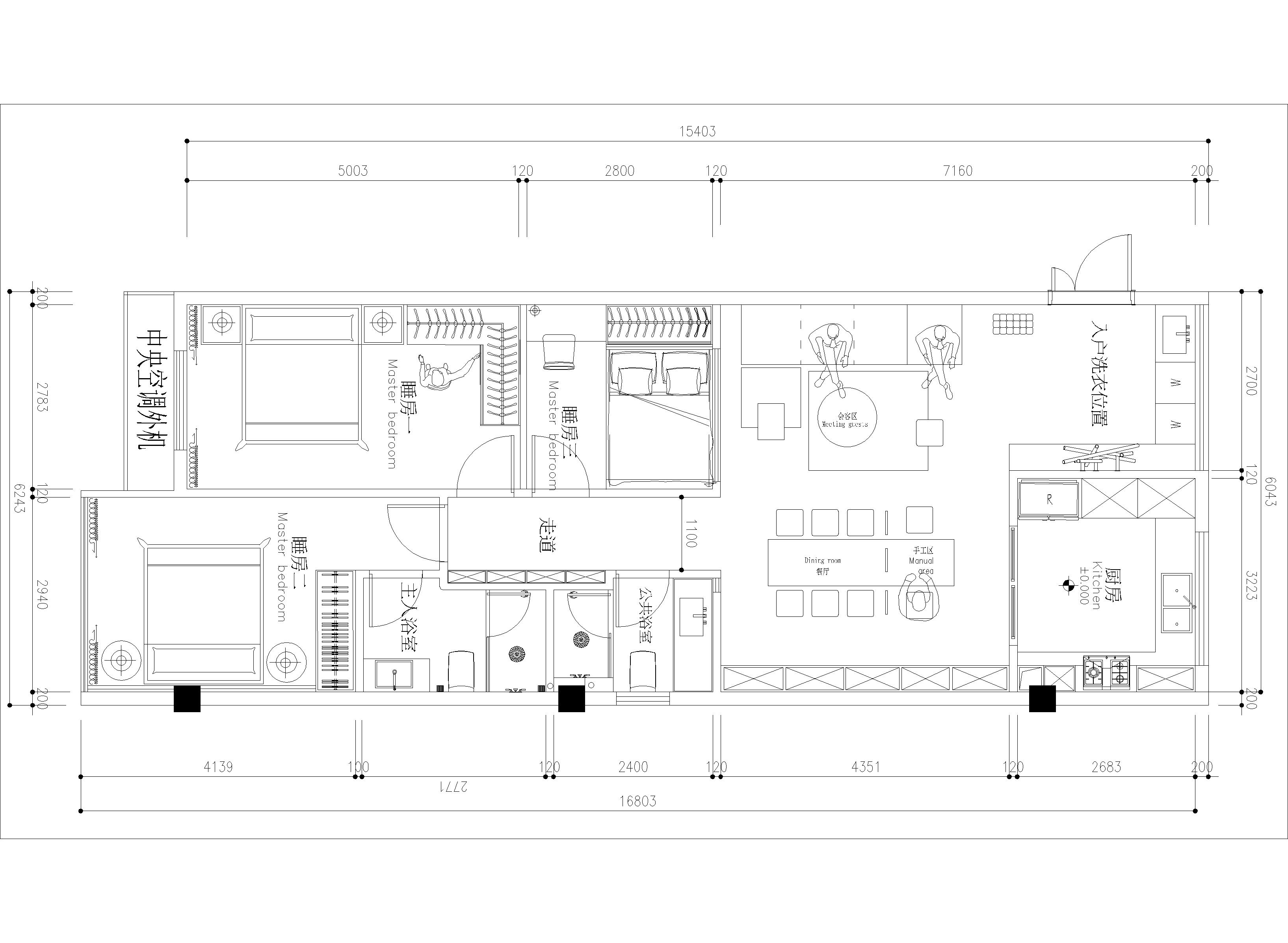
    请那位老师看看 这个户型怎么设计三个房间  现在没有电视墙了  内墙体都可以拆除 没有简力墙

请那位大师看看还有别的方案?现在没有电视背景 ,
拓者推荐
  • 明星杨采钰的家丨召禾设计
  • 洣图设计 | 国锐白玉茗艺墅!
  • 收纳设计【直播 1月29-31日】
  • 璞辉设计 | 重塑家的软装哲学
  • 柒筑设计|265㎡瓯江之畔
  • 无间-上海汤臣君品合院方案
  • 君品-汤臣金桥花园项目方案
  • 召禾设计-顶级私人豪宅方案
  • HWCD-苏州吴中区280合院
  • 召禾设计-绿城潮鸣东方
  • 2025拓者年费+案例Vip会员说明!
  • 【 拓者年费--CAD图纸】
  • 【 拓者年费--户型方案】
  • 【 拓者年费--豪宅视频】
  • 【 拓者年费--灵感图库】