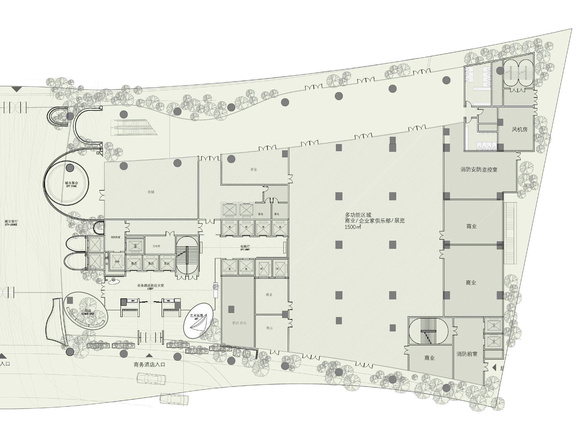
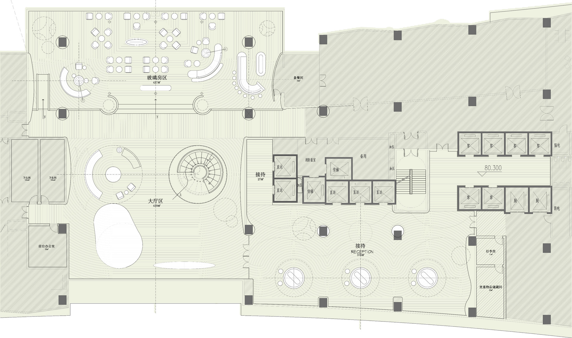
CCD-深圳国际交流中心酒店方案PDF+效果图

2023-3-16/ 方案概念/ 酒店概念/ 只看大图 阅读模式
仅供分享不做任何商业用途,版权归原作者所有,谢谢配合。

马上注册,结交更多好友,享用更多功能,让你轻松玩转社区。

您需要 登录 才可以下载或查看,没有帐号? 注册

x
本帖最后由 方案大师 于 2023-3-16 21:04 编辑

tt (1).jpg

tt (2).jpg

tt (3).jpg

tt (4).jpg

tt (5).jpg
















































































































PDF方案 JPG 效果图.rar (760.35 MB, 下载次数: 42, 售价: 15 交易币)
精华推荐
换一换

发表评论1

CCD-深圳国际交流中心酒店方案PDF+效果图
拓者推荐
  • 重庆站】精工课(5月27-28日)
  • 郝泽伟设计工作室 | 《木朴》
  • 会讲方案的设计师,行走的印钞机
  • CCD·艺澍家|上海·甘云间!
  • 王小锋 | 1006㎡泉州建发缙湖别墅!
  • CCD-华润 CCBD 889㎡设计方案
  • 【召禾设计]天际江景超大平层方案
  • 【WSD世尊】建发·云启玉诸
  • CCD-华润玺宸上院中叠样板间
  • CCD-武汉绿城外滩玫瑰园别墅
  • 2025拓者年费+案例Vip会员说明!
  • 【 拓者年费--CAD图纸】
  • 【 拓者年费--户型方案】
  • 【 拓者年费--豪宅视频】
  • 【 拓者年费--灵感图库】