新人方案,路过大佬求指点 设计师自家住宅 新人小白 路过大佬求指点

仅供分享不做任何商业用途,版权归原作者所有,谢谢配合。

马上注册,结交更多好友,享用更多功能,让你轻松玩转社区。

您需要 登录 才可以下载或查看,没有帐号? 注册

x
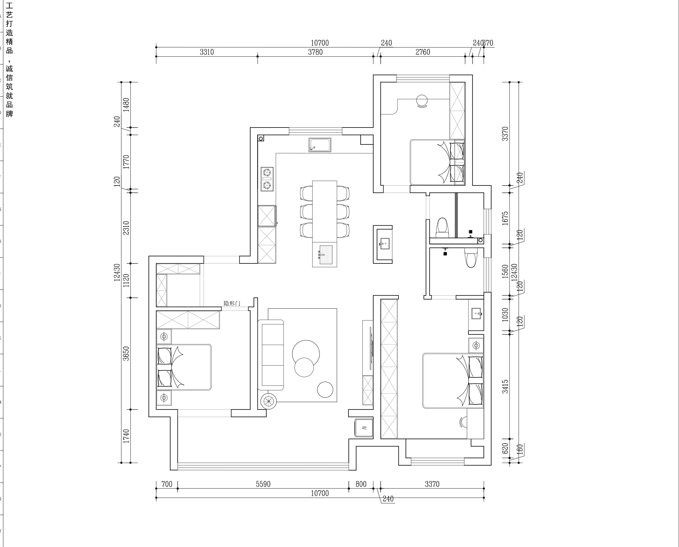
婚房居住
现在无孩子,考虑两年之内有个宝宝,母亲偶尔过来居住
需要更多的储物空间
厨房接受开放式
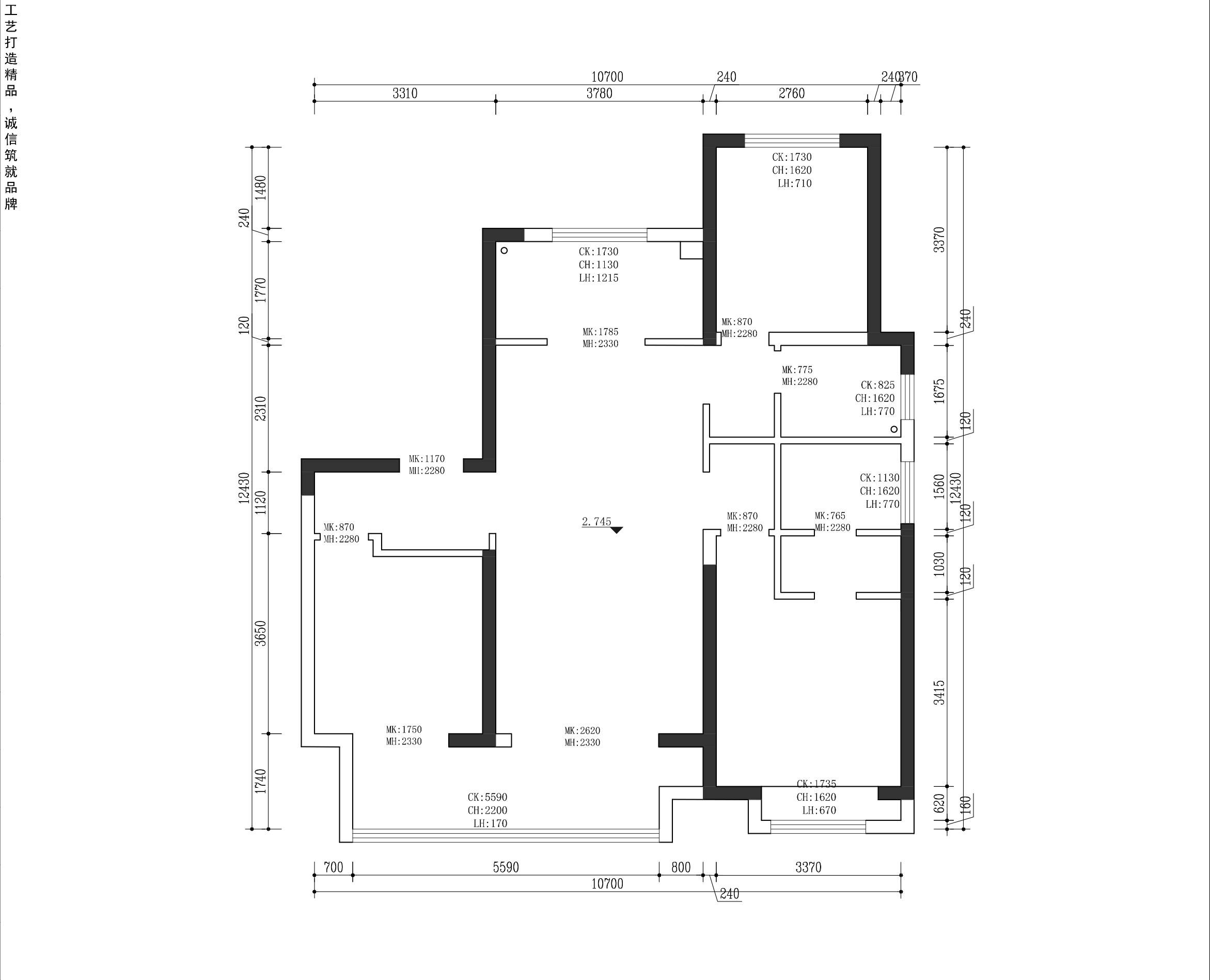
申哥-模型.jpg
申哥-方案.jpg

 

申哥 鲥式.rar

2.05 MB, 下载次数: 4

精华推荐
换一换

发表评论0

新人方案,路过大佬求指点 设计师自家住宅 新人小白 路过大佬求指点
拓者推荐
  • 朴悦-华润小径湾-悦海白兰墅
  • 琚宾-杭州保亿观云钱塘城
  • 召禾设计-上海汤臣君品
  • CCD-华润置地南通澐璟
  • HBA&DAS-中海江南玖序
  • CCD-华润 CCBD 889㎡设计方案
  • 【召禾设计]天际江景超大平层方案
  • 【WSD世尊】建发·云启玉诸
  • CCD-华润玺宸上院中叠样板间
  • CCD-武汉绿城外滩玫瑰园别墅
  • 2025拓者年费+案例Vip会员说明!
  • 【 拓者年费--CAD图纸】
  • 【 拓者年费--户型方案】
  • 【 拓者年费--豪宅视频】
  • 【 拓者年费--灵感图库】