|
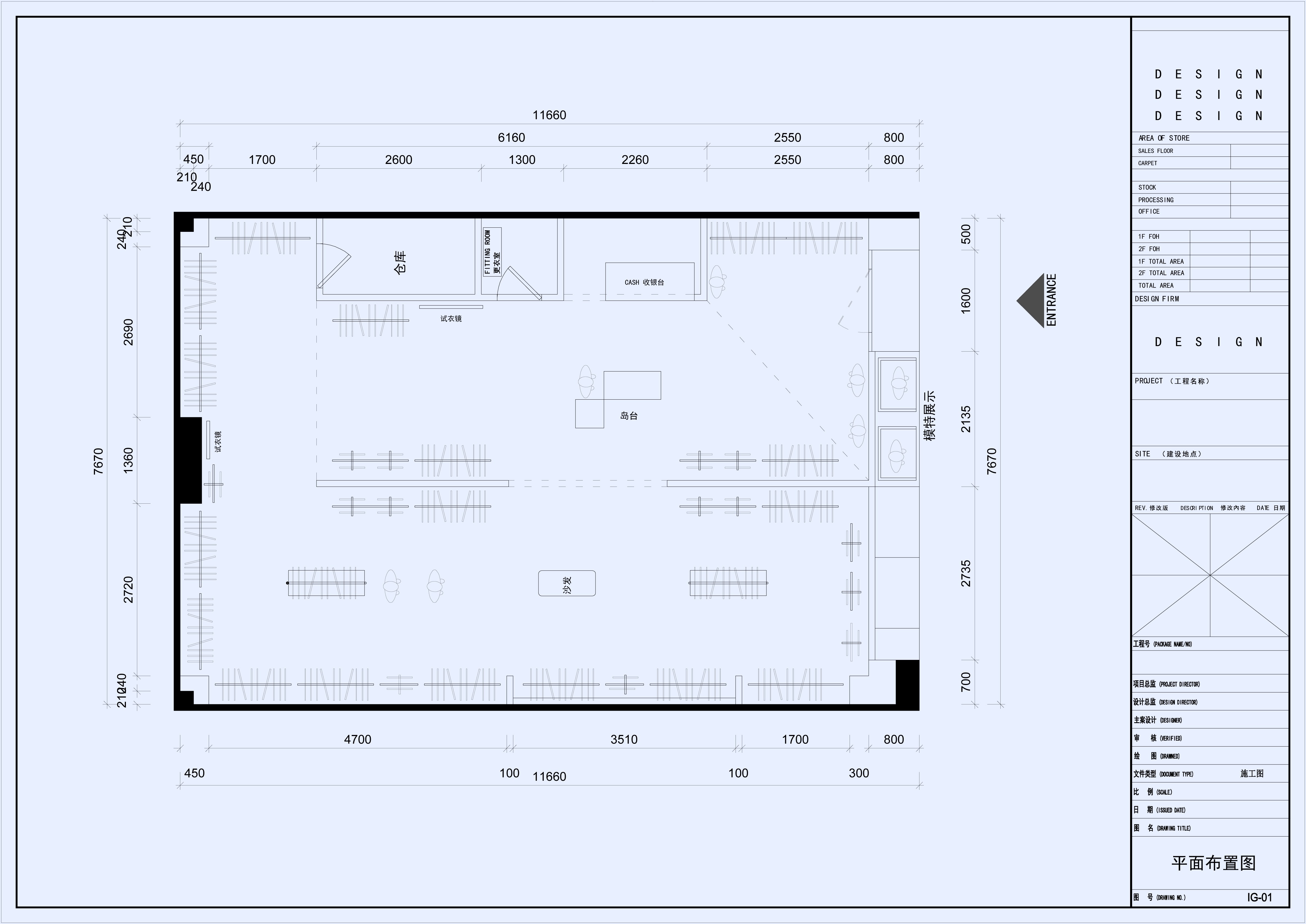
50套服装店创意CAD平面方案合集!!!---CSC CAD版本:2004版 文件包含:CAD文件 来源:网络收集+整理制作 50套服装店创意CAD平面方案合集,对于从事服装店及商业空间设计的朋友具有很高的参考价值,各种店铺空间格局, 各种不一样的平面布局,有规整利索的,也有异形柔美的,还有灵动个性的,各种布局参考打开自己的灵感大门, 让你的思绪迸发,设计出精彩合适的方案布局,一举夺魁,拿下设计单!
|
-
-
1.99 MB, 下载次数: 26
售价: 3 交易币
精华推荐
换一换


好与不好,你懂就好。