据水月在手 弄花香满衣

仅供分享不做任何商业用途,版权归原作者所有,谢谢配合。

马上注册,结交更多好友,享用更多功能,让你轻松玩转社区。

您需要 登录 才可以下载或查看,没有帐号?注册

x
本帖最后由 王秉如 于 2023-10-23 18:09 编辑

                                   执子之手   与而偕老
                             我们的双手相牵就不再分开

                             我们的相拥只给人温暖、安心

                   我们的誓言是一起走到两鬓斑白、步履蹒跚

                             我们约定每一个来生都要相伴

                                           亲爱的

                                           我觉得

                                         我很幸福


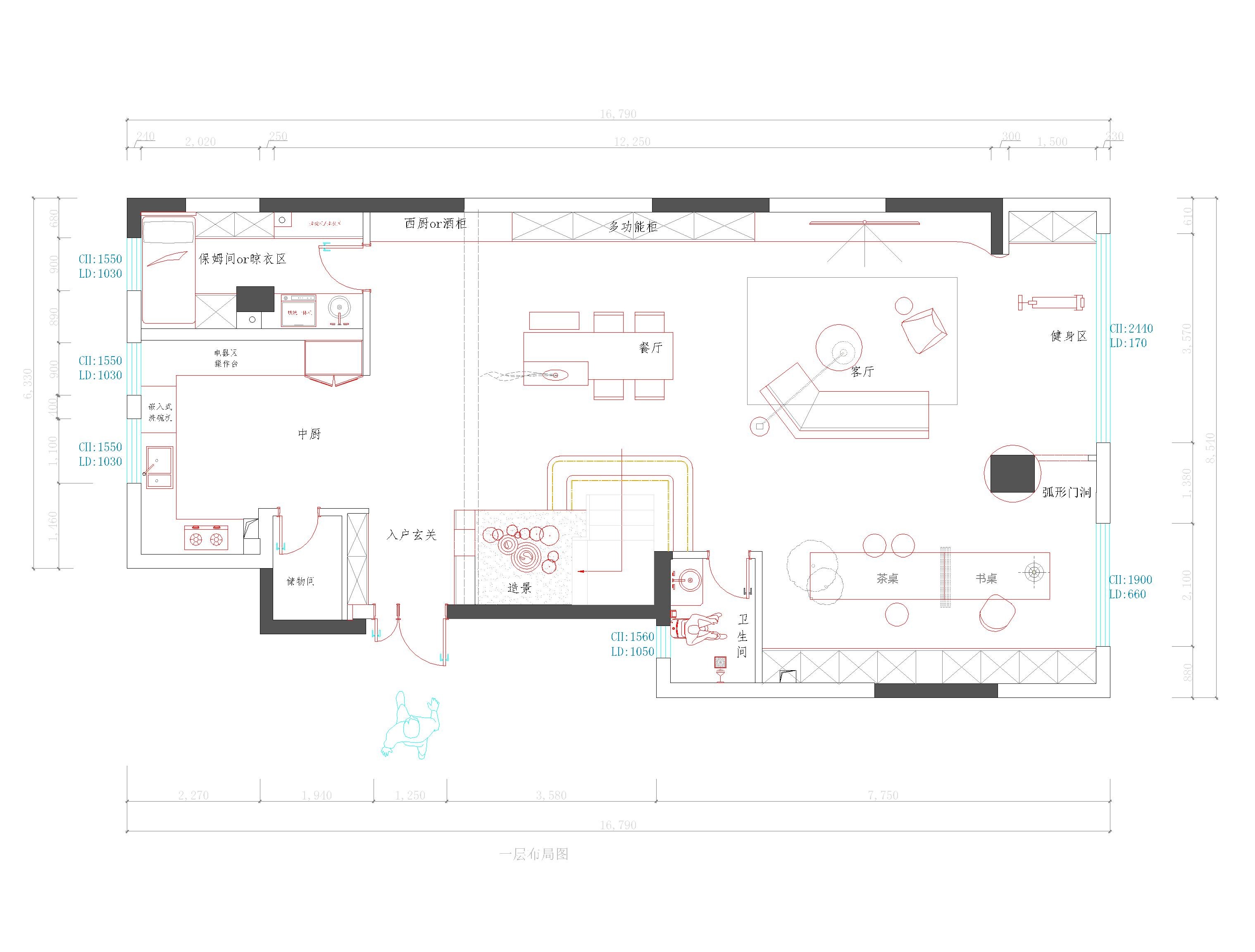
客厅,拆除原有墙体,增加空间即视感

客厅,拆除原有墙体,增加空间即视感

承重柱不能拆,怎么办?没关系,我们将其改造成帅气阳光的罗马柱

承重柱不能拆,怎么办?没关系,我们将其改造成帅气阳光的罗马柱

楼梯换下位置,入户就没有那么堵堵的了

楼梯换下位置,入户就没有那么堵堵的了

入户空间改造,通透性和实用性一个不少

入户空间改造,通透性和实用性一个不少

入户的满满的仪式感还是要有的

入户的满满的仪式感还是要有的

厨房也不甘落后

厨房也不甘落后

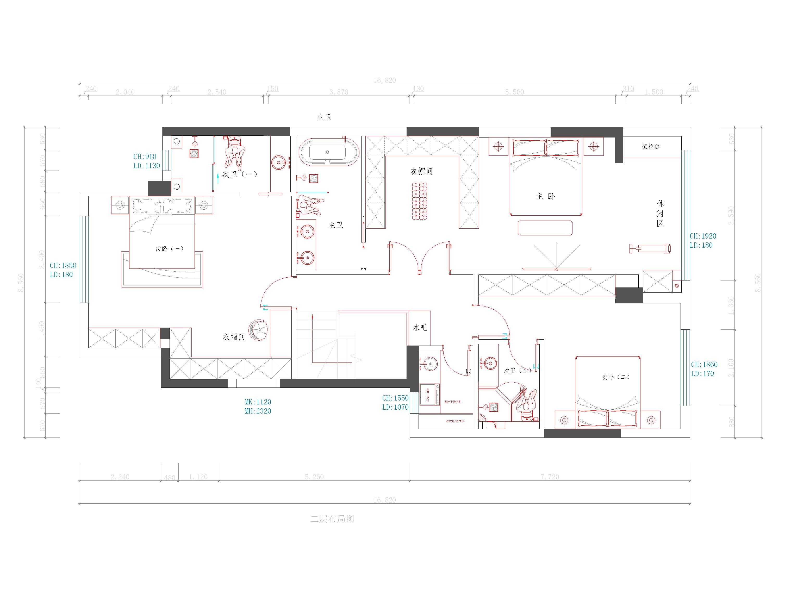
次卧采用杏色魏主色调,温暖的包裹感满满

次卧采用杏色魏主色调,温暖的包裹感满满

未来的小孩房也是童趣满满

未来的小孩房也是童趣满满

卫生间也要浪漫起来

卫生间也要浪漫起来
主卫2‘.jpg

这么有仪式感的生活,还不快来体验

这么有仪式感的生活,还不快来体验
1.jpg
2.jpg
3.jpg
4.jpg

 

精华推荐
换一换

发表评论0

据水月在手 弄花香满衣
拓者推荐
  • WSD世尊新作-南京顶级别墅
  • 苏州绿城越溪合院330样板间方案
  • 召禾邵程设计-上海徐汇绿城潮鸣东方
  • 杭州法式500户型合院别墅方案
  • 比佛利山庄1亿美元的豪宅!
  • 2025拓者年费+案例Vip会员说明!
  • 【 拓者年费--CAD图纸】
  • 【 拓者年费--户型方案】
  • 【 拓者年费--豪宅视频】
  • 【 拓者年费--灵感图库】