唐忠汉-珠江阙330户型台湾原版施工图+效果图+摄影

2024-9-14/ CAD图纸/ 样板间/ 只看大图 阅读模式
仅供分享不做任何商业用途,版权归原作者所有,谢谢配合。

马上注册,结交更多好友,享用更多功能,让你轻松玩转社区。

您需要 登录 才可以下载或查看,没有帐号?注册

x
0.jpg

1.jpg

2.jpg

3.jpg

10.jpg

11.jpg

12.jpg

15.jpg

16.jpg

18.jpg

20.jpg

22.jpg

23.jpg

26.jpg

下面是效果图方案:

1.jpg

2.jpg

3.jpg

4.jpg

5.jpg

6.jpg

7.jpg

8.jpg

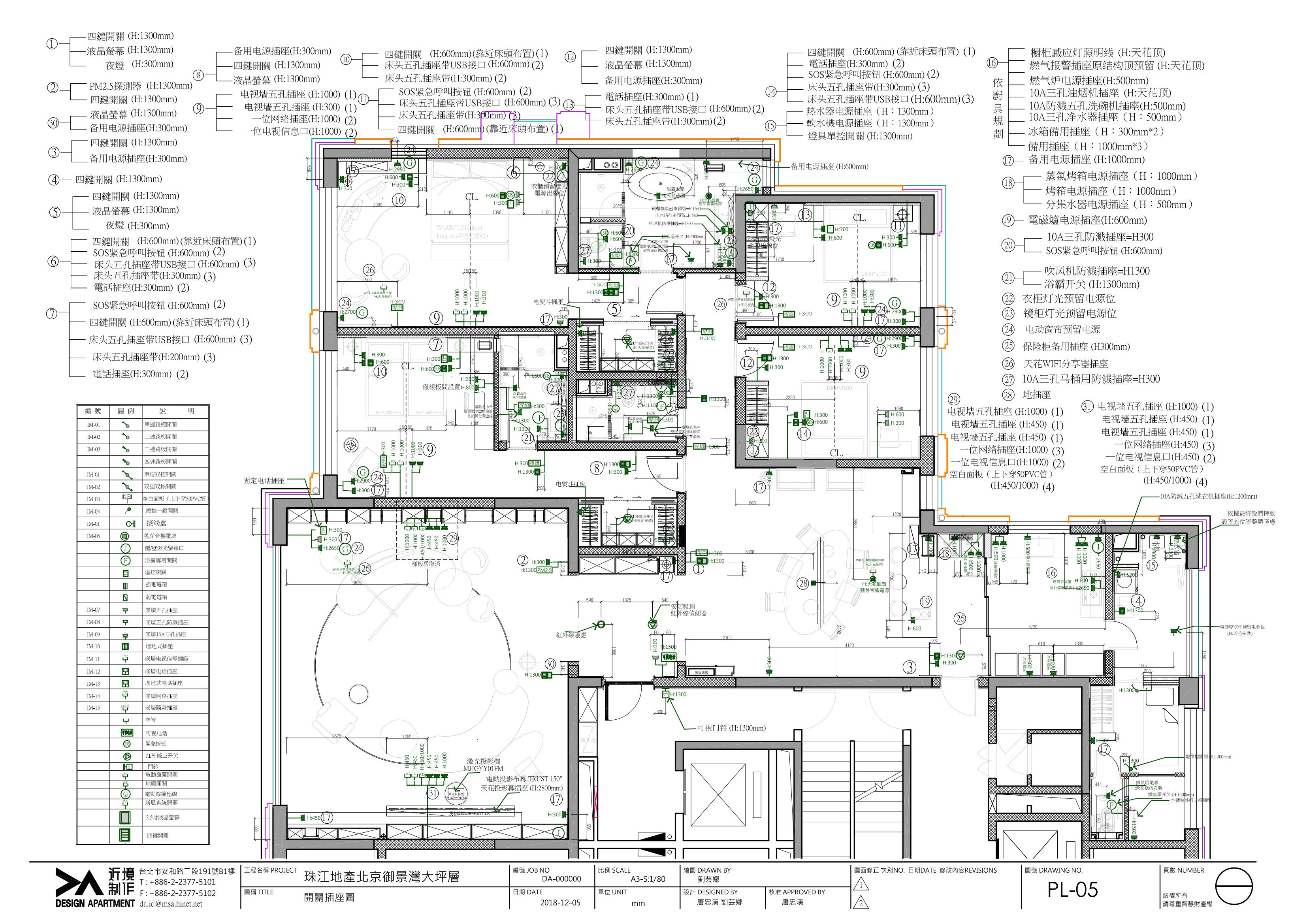
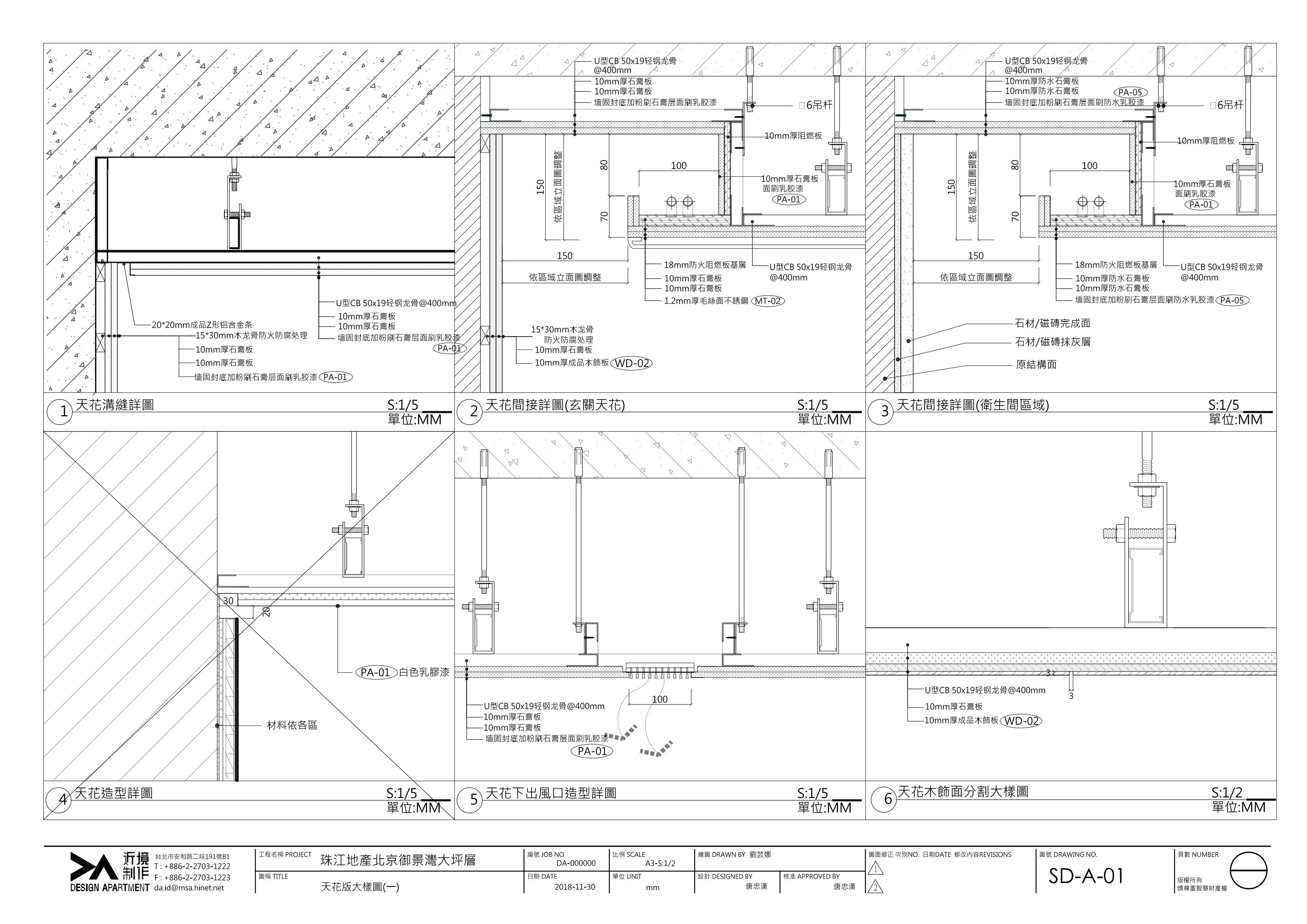
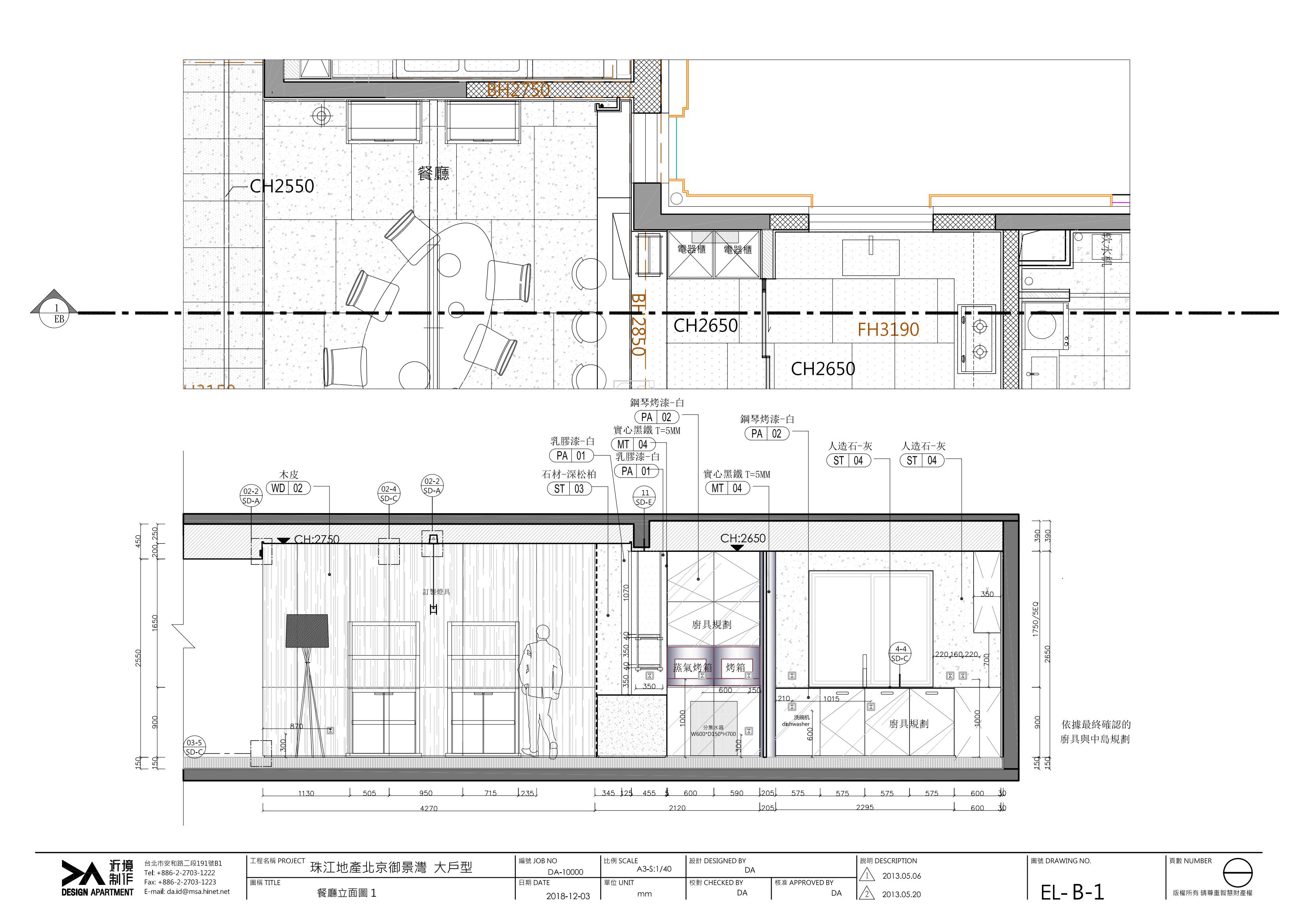
CAD截图:

t (1).jpg

t (2).jpg

t (3).jpg

t (4).jpg

t (5).jpg

t (6).jpg

t (7).jpg

t (8).jpg

t (9).jpg

t (10).jpg

t (11).jpg

t (12).jpg

t (13).jpg

t (14).jpg

t (15).jpg

t (16).jpg

t (17).jpg

QQ截图20240914133207.png



唐忠汉-北京珠江阙330户型大平层.rar (175.43 MB, 下载次数: 53, 售价: 11 交易币)
精华推荐
换一换

发表评论2

  • lj32067 2024-9-15 08:40:34

    这个好像是唐忠汉前几年的案例,现在又发出来了,就是现在看几年前的设计和理念,也还是觉得做的蛮好

唐忠汉-珠江阙330户型台湾原版施工图+效果图+摄影
拓者推荐
  • 【广州站】设计师创业课
  • 【广州站】收纳设计思维训练营
  • 【广州站】户型优化总监内训课
  • 【广州站】 风水丨设计与签单课
  • 【广州站】获客实操训练营
  • 2025拓者年费+案例Vip会员说明!
  • 【 拓者年费--CAD图纸】
  • 【 拓者年费--户型方案】
  • 【 拓者年费--豪宅视频】
  • 【 拓者年费--灵感图库】