求大佬们给一点意见!!!感谢大佬们,比较难改户型!

2025-1-13/ 户型方案/ 户型交流/ 只看大图 阅读模式
仅供分享不做任何商业用途,版权归原作者所有,谢谢配合。

马上注册,结交更多好友,享用更多功能,让你轻松玩转社区。

您需要 登录 才可以下载或查看,没有帐号? 注册

x
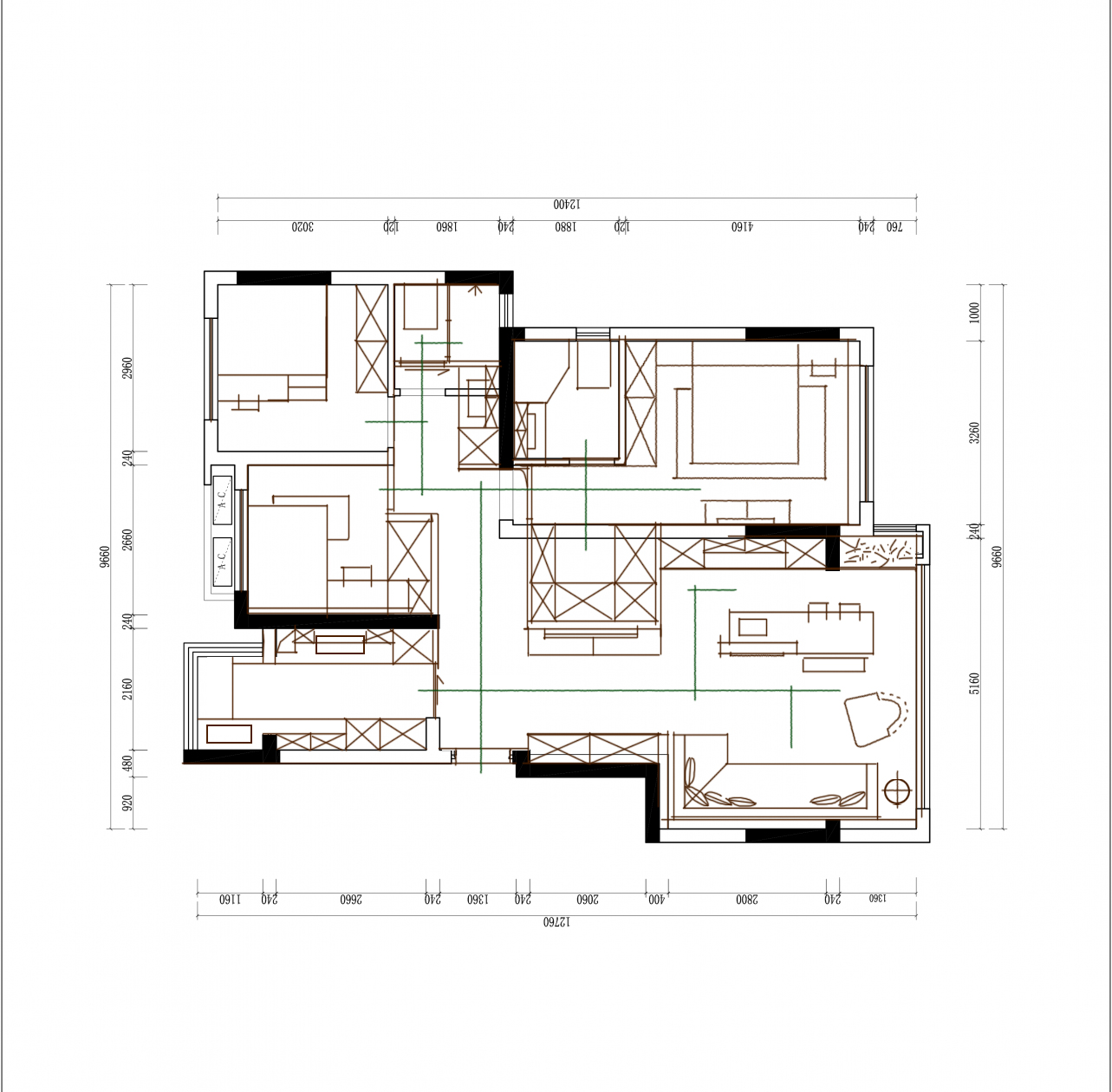
1.小朋友的房间要有书桌,书桌要有明亮的光线;2.最好有给小朋友玩耍的区域;3.入户门不直对门;4.要有足够的收纳;5.要有衣帽间和梳妆台。6保留三个房间,双卫也要保留,

总感觉不是很好

总感觉不是很好
原始.png

 

平面布置图.rar

156.58 KB, 下载次数: 84

精华推荐
换一换

发表评论9

求大佬们给一点意见!!!感谢大佬们,比较难改户型!
拓者推荐
  • 重庆站】精工课(5月27-28日)
  • 郝泽伟设计工作室 | 《木朴》
  • 会讲方案的设计师,行走的印钞机
  • CCD·艺澍家|上海·甘云间!
  • 王小锋 | 1006㎡泉州建发缙湖别墅!
  • CCD-华润 CCBD 889㎡设计方案
  • 【召禾设计]天际江景超大平层方案
  • 【WSD世尊】建发·云启玉诸
  • CCD-华润玺宸上院中叠样板间
  • CCD-武汉绿城外滩玫瑰园别墅
  • 2025拓者年费+案例Vip会员说明!
  • 【 拓者年费--CAD图纸】
  • 【 拓者年费--户型方案】
  • 【 拓者年费--豪宅视频】
  • 【 拓者年费--灵感图库】