【春山秋水】绿城乌鲁木齐生活馆售楼处+三套样板间

2025-2-15/ 方案概念/ 售楼处/ 只看大图 阅读模式
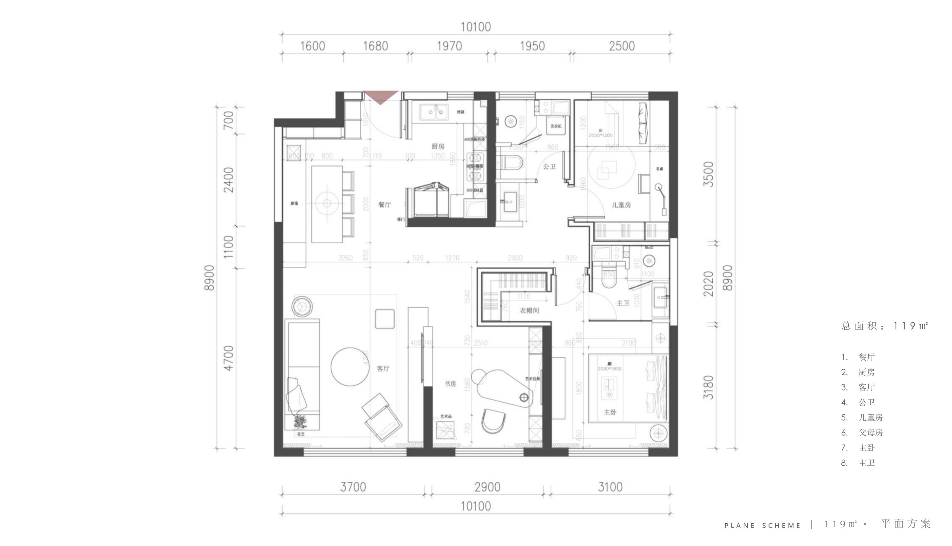
仅供分享不做任何商业用途,版权归原作者所有,谢谢配合。
精华推荐
换一换

发表评论0

【春山秋水】绿城乌鲁木齐生活馆售楼处+三套样板间
拓者推荐
  • 2026拓者 CAD户型方案 发布
  • 【武汉站—“樱”你而来】获客实操
  • 【武汉站—“樱”你而来】户型优化
  • 【武汉站—“樱”你而来】风水
  • 【梁志天】西安曲江·九曲松间
  • 无间-上海汤臣君品合院方案
  • 君品-汤臣金桥花园项目方案
  • 无间-上海大宁中建玖上琅宸
  • HWCD-烟台洲際酒店深化方案图册
  • 琚宾新作-资兴东江湖度假酒店
  • 2025拓者年费+案例Vip会员说明!
  • 【 拓者年费--CAD图纸】
  • 【 拓者年费--户型方案】
  • 【 拓者年费--豪宅视频】
  • 【 拓者年费--灵感图库】