|
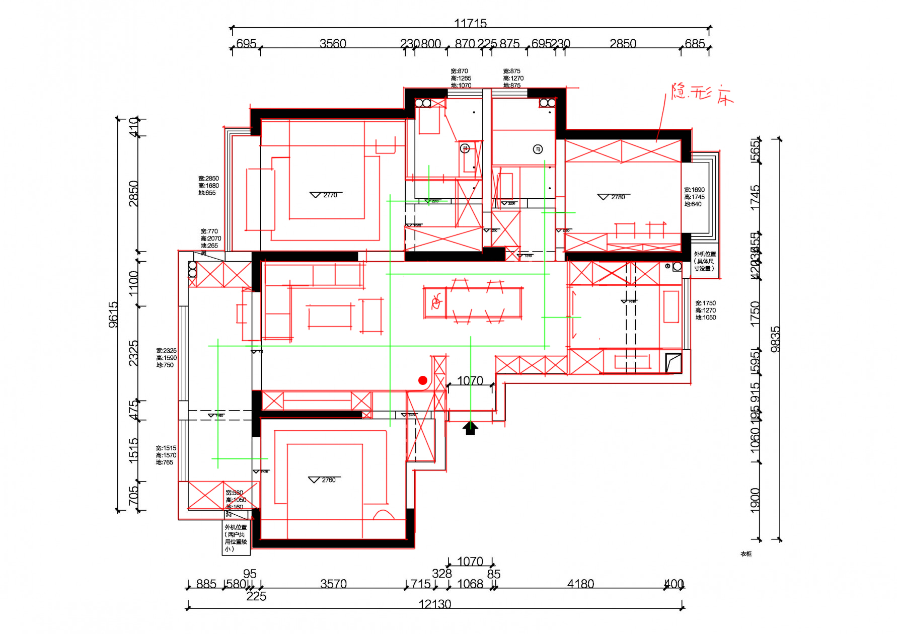
目前布局自己做到这样的,但是有一部自己的需求还没有满足,希望各位大佬能给点建议。坐标河南五线小城市。西户,客厅北向餐厅南向。常住人口2口,偶尔父母会来。主要是布局上的修改,目前在和中央空调新风沟通,布局如果定下来就开始施工。 自己不满足的地方: 客餐厅:入户鞋柜的收纳空间过于小,厨房和餐厅的位置稍微有点小(想看看有没有更合理的方式) 主卧:储物空间不足,考虑过把卫生间尺寸吃掉一部分,如果整体上移要更改强弱电位置(在客卫那面墙上)不排斥更改,但是没有找到较为合理的位置,全屋的飘窗是可以打掉的,原飘窗位置已经打掉考虑做地柜增加储物空间。 次卧:考虑做成电竞房书房,如果能摆放个单人床自然是更好的,放不下也无所谓,三五年内那个房间应该是不考虑有人居住,考虑过飘窗位置做书桌(朝南向),但是考虑害怕窗外光线过亮伤眼(用不透光的纯黑膜是否可行) 客卧:如果父母和客人来了住的房间,目前考虑留下客厅进去的隐形门和阳台的推拉门 目前就这么多,因为层高实在是不高,客餐厅要不要做无主灯还是只做基础的边吊留够中央空调的管道位置,还有就是请教下全屋智能和传统布电需要前期注意的地方有哪些(搜索过短视频平台的的视频,考虑布局定下来再去全屋智能的店里看看)
|
精华推荐
换一换
-
zcx2688973 2025-3-10 23:42:52
wzx19891202 发表于 2025-3-6 16:20
鞋柜放客厅这边,餐厅厨房尽量不要占太多,如果经常在家做饭的话,血的教训
好的,感谢经验分享



本帖最后由 yesterday24C 于 2026-1-7 17:20 编辑
以后有需求可以加下微信