【科技办公】广州小鹏科技园精装总部办公及展厅

2025-3-24/ 方案概念/ 办公概念/ 只看大图 阅读模式
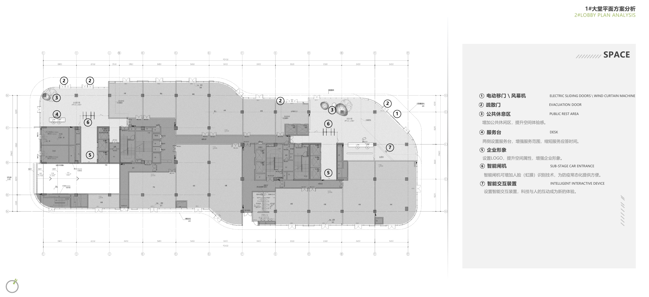
仅供分享不做任何商业用途,版权归原作者所有,谢谢配合。

马上注册,结交更多好友,享用更多功能,让你轻松玩转社区。

您需要 登录 才可以下载或查看,没有帐号?注册

x
25.jpg 26.jpg 27.jpg 28.jpg 29.jpg 30.jpg 31.jpg 32.jpg 37.jpg 38.jpg 39.jpg 40.jpg 41.jpg 42.jpg 47.jpg 49.jpg 50.jpg 51.jpg 52.jpg 53.jpg 54.jpg 55.jpg

广州小鹏总部办公_.pdf

98.99 MB, 下载次数: 0

售价: 5 交易币  [购买]

精华推荐
换一换

发表评论0

【科技办公】广州小鹏科技园精装总部办公及展厅
拓者推荐
  • 晓风印月CAD施工图
  • 成都麓湖生态城项目
  • 春山秋水-南通启东·湖境桃源
  • LSD-苏州绿城凤起潮鸣
  • 上海高·尚领域别墅
  • 2025拓者年费+案例Vip会员说明!
  • 【 拓者年费--CAD图纸】
  • 【 拓者年费--户型方案】
  • 【 拓者年费--豪宅视频】
  • 【 拓者年费--灵感图库】