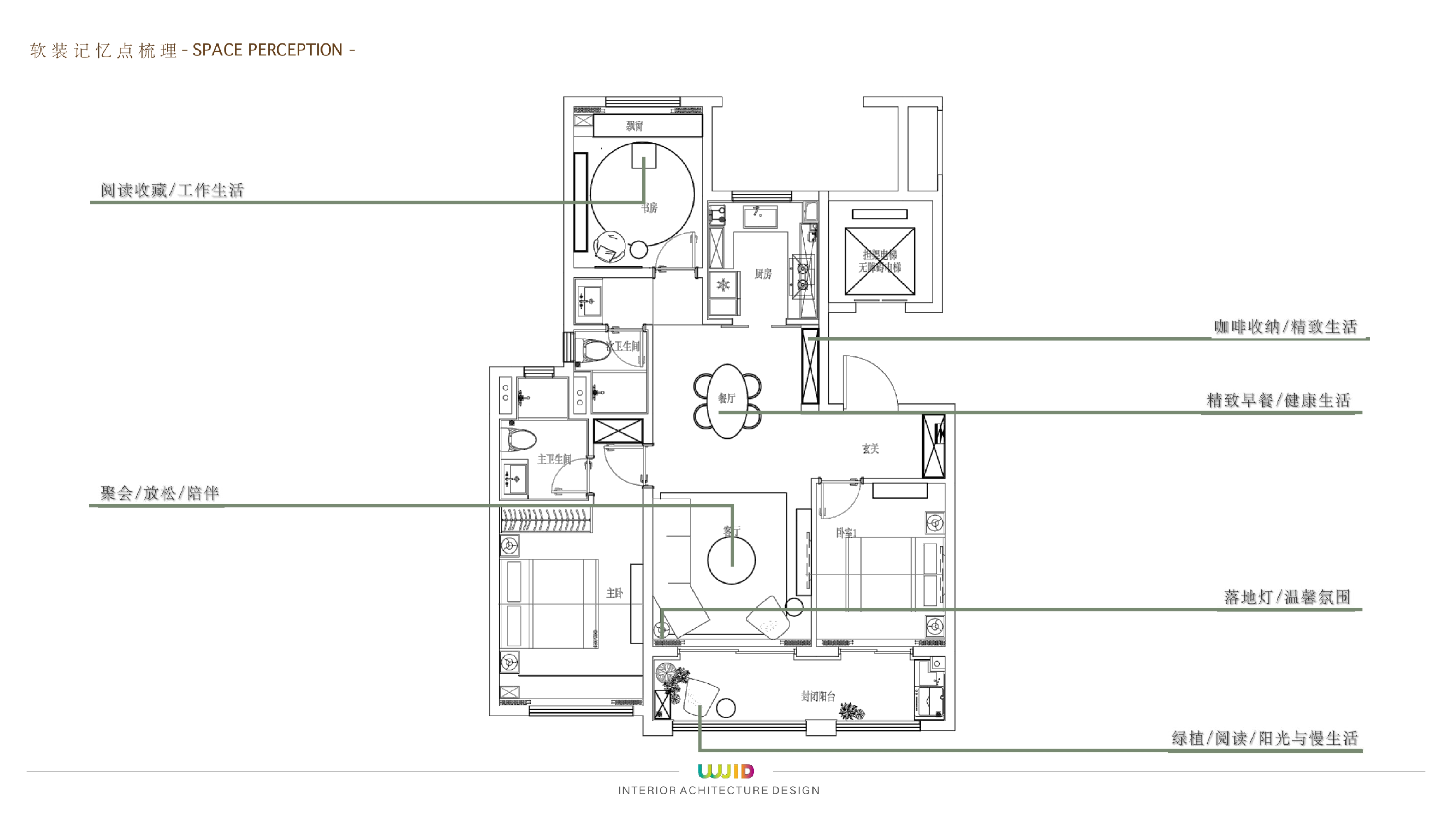
【WJID维几·黄全】南京星河·钟山盛世两套大都会风格精装样板间

2025-3-26/ 方案概念/ 样板间/ 只看大图 阅读模式
仅供分享不做任何商业用途,版权归原作者所有,谢谢配合。

马上注册,结交更多好友,享用更多功能,让你轻松玩转社区。

您需要 登录 才可以下载或查看,没有帐号?注册

x
页面04.jpg 页面05.jpg 页面06.jpg 页面08.jpg 页面09.jpg 页面10.jpg 页面12.jpg 页面13.jpg 页面14.jpg 页面15.jpg 页面21.jpg 页面24.jpg 页面25.jpg 页面26.jpg 页面32.jpg 页面34.jpg 页面38.jpg 页面40.jpg 页面44.jpg 页面46.jpg 页面47.jpg 页面53.jpg 页面62.jpg

维几-南京星河麒麟G127地块样板间项目软装概念方案.pdf

34.98 MB, 下载次数: 0

售价: 3 交易币  [购买]

标签: 样板房
精华推荐
换一换

发表评论0

【WJID维几·黄全】南京星河·钟山盛世两套大都会风格精装样板间
拓者推荐
  • 晓风印月CAD施工图
  • 成都麓湖生态城项目
  • 春山秋水-南通启东·湖境桃源
  • LSD-苏州绿城凤起潮鸣
  • 上海高·尚领域别墅
  • 2025拓者年费+案例Vip会员说明!
  • 【 拓者年费--CAD图纸】
  • 【 拓者年费--户型方案】
  • 【 拓者年费--豪宅视频】
  • 【 拓者年费--灵感图库】