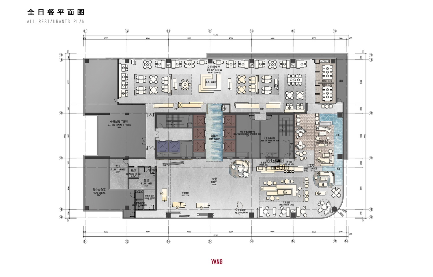
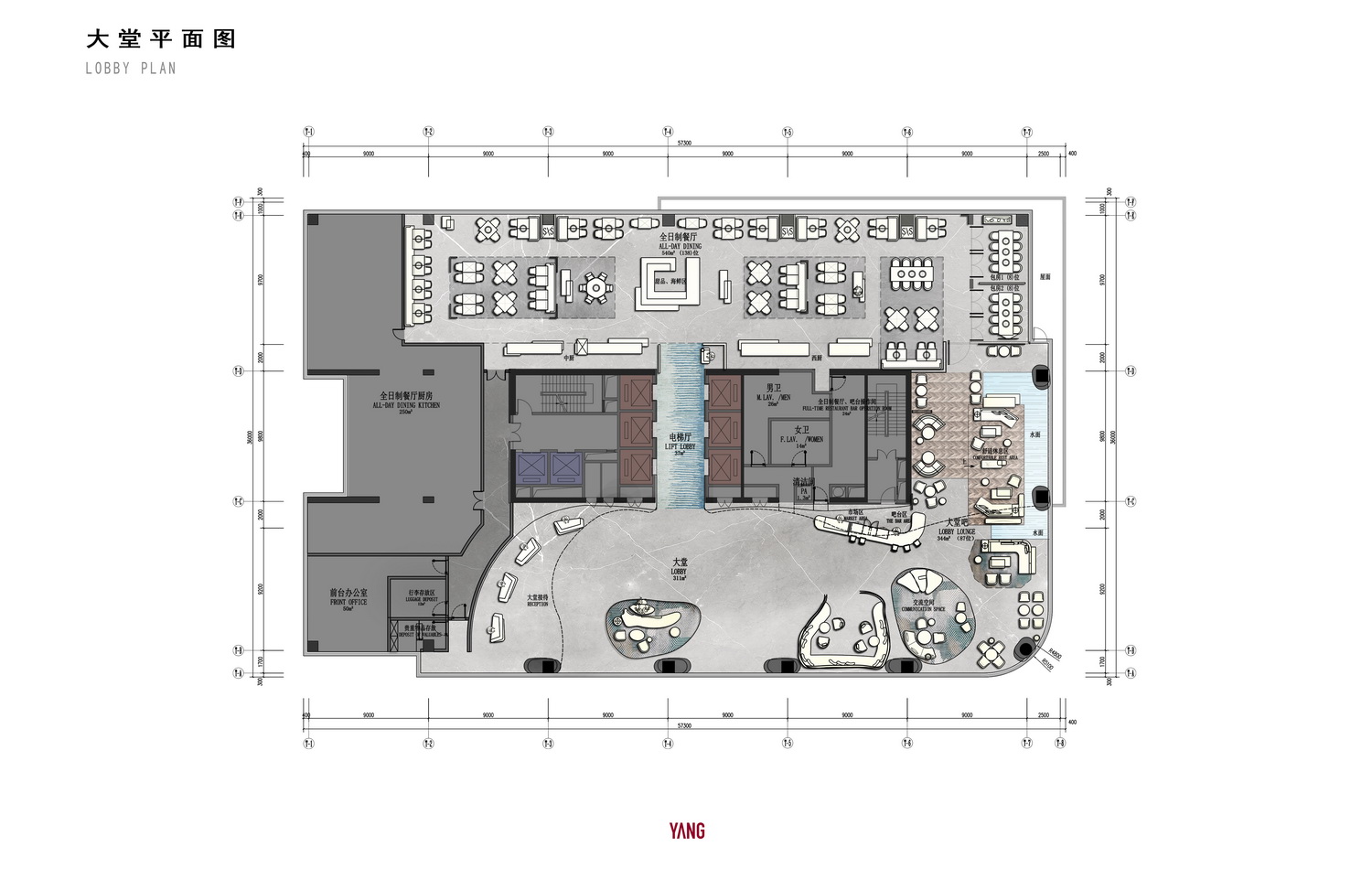
珠海拱北凯悦酒店(投标图册)

2025-3-29/ 方案概念/ 酒店概念/ 只看大图 阅读模式
仅供分享不做任何商业用途,版权归原作者所有,谢谢配合。
标签: 顶级酒店
精华推荐
换一换

发表评论0

珠海拱北凯悦酒店(投标图册)
拓者推荐
  • 重庆站】精工课(5月27-28日)
  • 郝泽伟设计工作室 | 《木朴》
  • 会讲方案的设计师,行走的印钞机
  • CCD·艺澍家|上海·甘云间!
  • 王小锋 | 1006㎡泉州建发缙湖别墅!
  • CCD-华润 CCBD 889㎡设计方案
  • 【召禾设计]天际江景超大平层方案
  • 【WSD世尊】建发·云启玉诸
  • CCD-华润玺宸上院中叠样板间
  • CCD-武汉绿城外滩玫瑰园别墅
  • 2025拓者年费+案例Vip会员说明!
  • 【 拓者年费--CAD图纸】
  • 【 拓者年费--户型方案】
  • 【 拓者年费--豪宅视频】
  • 【 拓者年费--灵感图库】