|
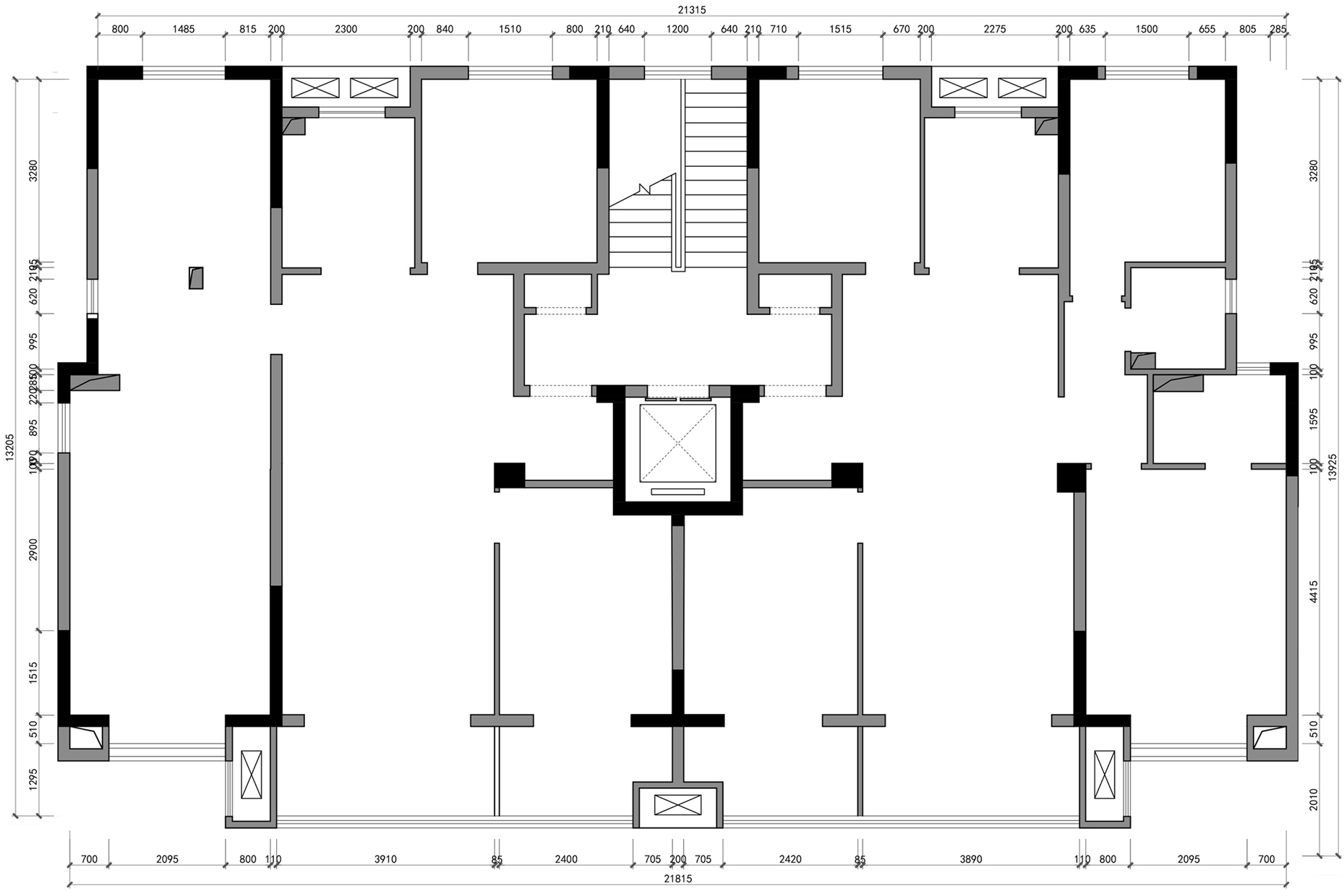
“关注i Go,每周学习一个户型改造小技巧” 项目属性/毛坯/两户打通大平层 项目套内面积/235㎡ 执行设计/i Go空间设计事务所 原始户型 Party A's demand.
甲方需求- Demand of Party A. 1.保留4房 2.中西厨 3.主卧豪华套房 优化方案 Optimization scheme
i Go 业务合作 ①高级定制户型优化合作 | ②全案设计托管服务 服务全国设计师 行业首创—九大托管服务为您的全案项目保驾护航 您负责谈单 赚设计费 掌控全场 我们全力辅助 帮助全国设计师签单 官方微信:1131477025 -官方抖音:iGo户型优化(关注抖音 看最新案例) -官方抖音:i Go户型优化 -官方小红书:i Go户型优化 微信公众号:iGo户型优化 *本文以及方案均为i Go原创 禁止转载 分享至其他平台 |
精华推荐
换一换




本帖最后由 hzmelan 于 2025-4-15 17:18 编辑
哥,4叶草的两个四室,改成这样的。差不多350平的。中间这个差不多150平方公共区。有没有落地照片。