|
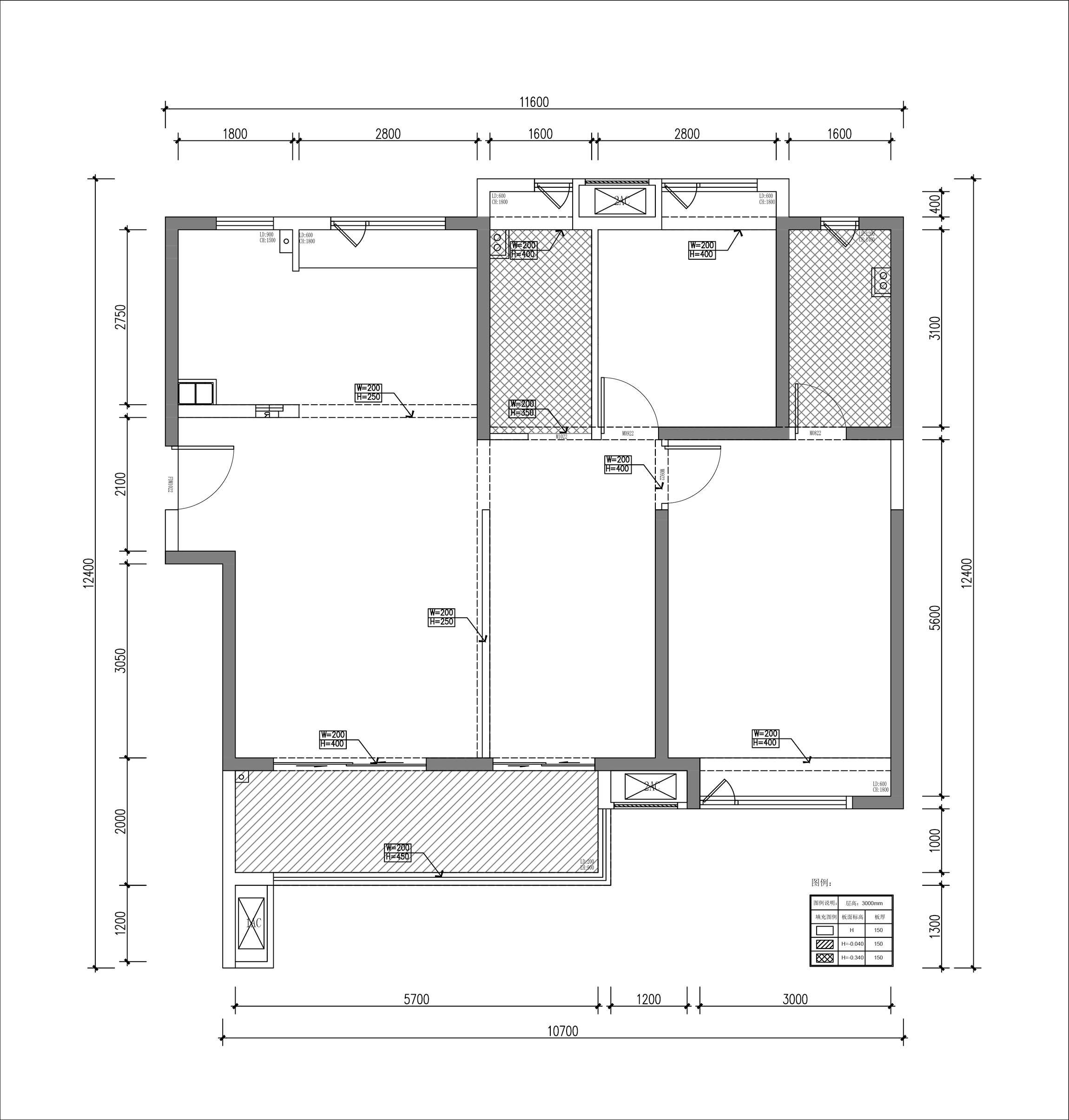
"关注东余、掌握全案设计逻辑” 项目类型:住宅/洋房 项目面积:104㎡ 优化设计:东余方案设计 原方案户型图
设计需求 1、一家三口居住、孩子一年级、喜欢绘画 2、需要有书房、大沙发、水吧以及较多的储物区 3、需要有较多的衣帽储物区 4、希望空间有个性化以及审美 优化后平面图
关注东余、带你学习全案设计! 东余业务合作 1、定制户型优化合作 2、全案设计托管服务 3、SU模型表达 服务全国设计师 全网性价比最高选择 暗号:DYDD-001 官方抖音:东余方案设计(关注抖音 看最新案例) 抖音:东余方案设计 小红书:东余方案设计 公众号:东余方案设计 本文以及方案均为东余原创 已申请原创保护 转载注明出处! |
精华推荐
换一换




哈哈哈 有道理