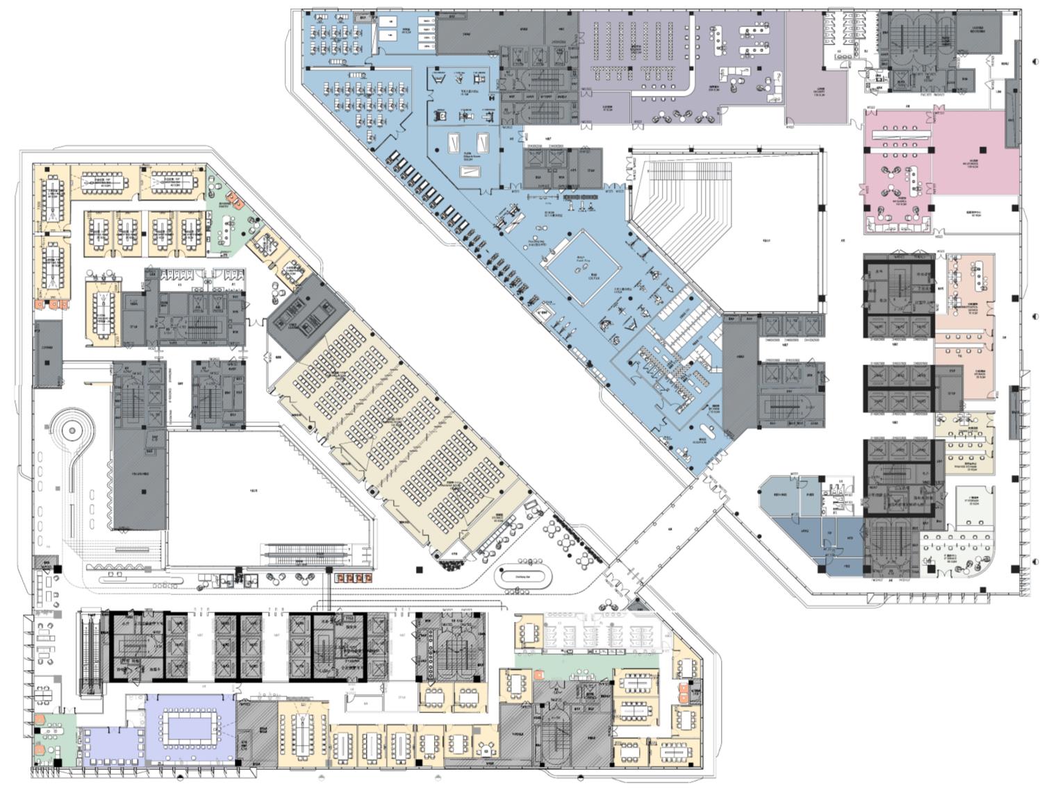
香港穆氏--字节跳动杭州本部办公室丨PPT设计方案+效果图

2025-4-22/ 方案概念/ 办公概念/ 只看大图 阅读模式
仅供分享不做任何商业用途,版权归原作者所有,谢谢配合。

马上注册,结交更多好友,享用更多功能,让你轻松玩转社区。

您需要 登录 才可以下载或查看,没有帐号?注册

x
11 (16).jpg 11 (18).jpg 11 (20).jpg 11 (23).jpg 11 (25).jpg 11 (26).jpg 11 (29).jpg 11 (31).jpg 11 (32).jpg 11 (33).jpg 11 (34).jpg 11 (36).jpg 11 (37).jpg 11 (38).jpg 11 (40).jpg 11 (42).jpg 11 (45).jpg 22 (2).jpg 22 (3).jpg 22 (6).jpg 22 (7).jpg 22 (10).jpg 22 (13).jpg 22 (14).jpg 22 (15).jpg 22 (16).jpg 22 (17).jpg 22 (18).jpg 22 (20).jpg 22 (21).jpg 025474e7-05ac-48fa-b205-42471a0cfd96.png

香港穆氏--字节跳动杭州本部办公室丨PPT设计方案 效果图.rar

281.59 MB, 下载次数: 13

售价: 5 交易币

精华推荐
换一换

发表评论0

香港穆氏--字节跳动杭州本部办公室丨PPT设计方案+效果图
拓者推荐
  • 晓风印月CAD施工图
  • 成都麓湖生态城项目
  • 春山秋水-南通启东·湖境桃源
  • LSD-苏州绿城凤起潮鸣
  • 上海高·尚领域别墅
  • 2025拓者年费+案例Vip会员说明!
  • 【 拓者年费--CAD图纸】
  • 【 拓者年费--户型方案】
  • 【 拓者年费--豪宅视频】
  • 【 拓者年费--灵感图库】