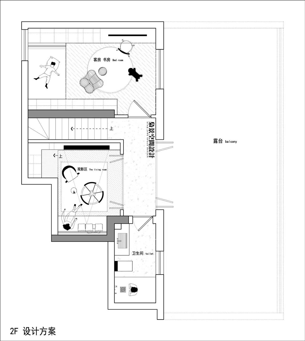
梟景平面方案优化I第265出期【小叠墅如何做出别墅空间感】

2025-5-4/ 户型方案/ 户型交流/ 只看大图 阅读模式
仅供分享不做任何商业用途,版权归原作者所有,谢谢配合。

马上注册,结交更多好友,享用更多功能,让你轻松玩转社区。

您需要 登录 才可以下载或查看,没有帐号?注册

x
d4b434af0a5df8bae8bc7b4ed7f0e32.jpg





ebaed25c6f6222572152f1d718aa802.jpg


9a85bf0a35823902cd9ed5697619278.jpg


9a85fe42552abe727b64e9a58f0c4fc.jpg


6ccf6361e15ca33d90f18cb626ae236.jpg


需要户型优化的请+V
hx19950121


精华推荐
换一换

发表评论1

梟景平面方案优化I第265出期【小叠墅如何做出别墅空间感】
拓者推荐
  • 孟也新作-七都岛640法式别墅拓者空 600㎡极简别墅
  • 【武汉站—“樱”你而来】获客实操
  • 【武汉站—“樱”你而来】户型优化
  • 【武汉站—“樱”你而来】风水
  • LSD-宁波鳳栖雲庐合院样板间
  • CCD-华润 CCBD 889㎡设计方案
  • 孟也新作-七都岛640法式别墅
  • 【WSD世尊】建发·云启玉诸
  • 苏州绿城樾庐合院样板房
  • 无间设计-上海万科中兴傲舍
  • 2025拓者年费+案例Vip会员说明!
  • 【 拓者年费--CAD图纸】
  • 【 拓者年费--户型方案】
  • 【 拓者年费--豪宅视频】
  • 【 拓者年费--灵感图库】