|
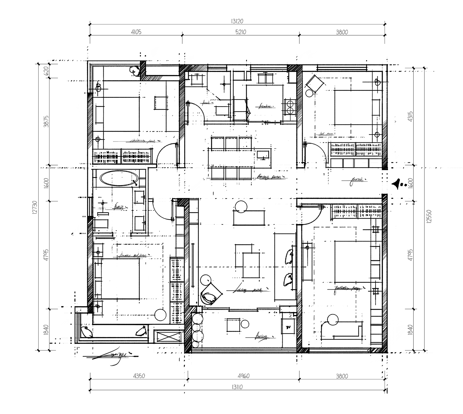
"关注东余、掌握全案设计逻辑” 项目类型:大平层 项目面积:156㎡ 项目坐标:漳州 优化设计:东余方案设计 原方案户型图
基本情况和设计需求 基本情况 1、常住人口为4口人、两个小孩 2、大孩子读初中、小孩子读小学 3、父母一周会过来居住1~3天帮忙照顾孩子 设计需求 1、需要四个卧室 2、不考虑封闭阳台、需要有日光晾晒的区域 3、主卧空间需要浴缸和较多的储物 4、老人房考虑宽敞一点使用 5、小孩的房间需要书桌、有时会回家写作业 手绘思路
彩平图
关注东余、服务全国设计师! 东余业务合作 1、高定户型优化合作 2、全案设计托管服务 3、SU模型表达 超高性价比、值得你拥有! 暗号:DYDD-001 官方抖音:东余方案设计(关注抖音 了解最新项目动态) 抖音:东余方案设计 小红书:东余方案设计 公众号:东余方案设计 本文以及方案均为东余原创 已申请原创保护 转载注明出处! |
精华推荐
换一换


发表评论0