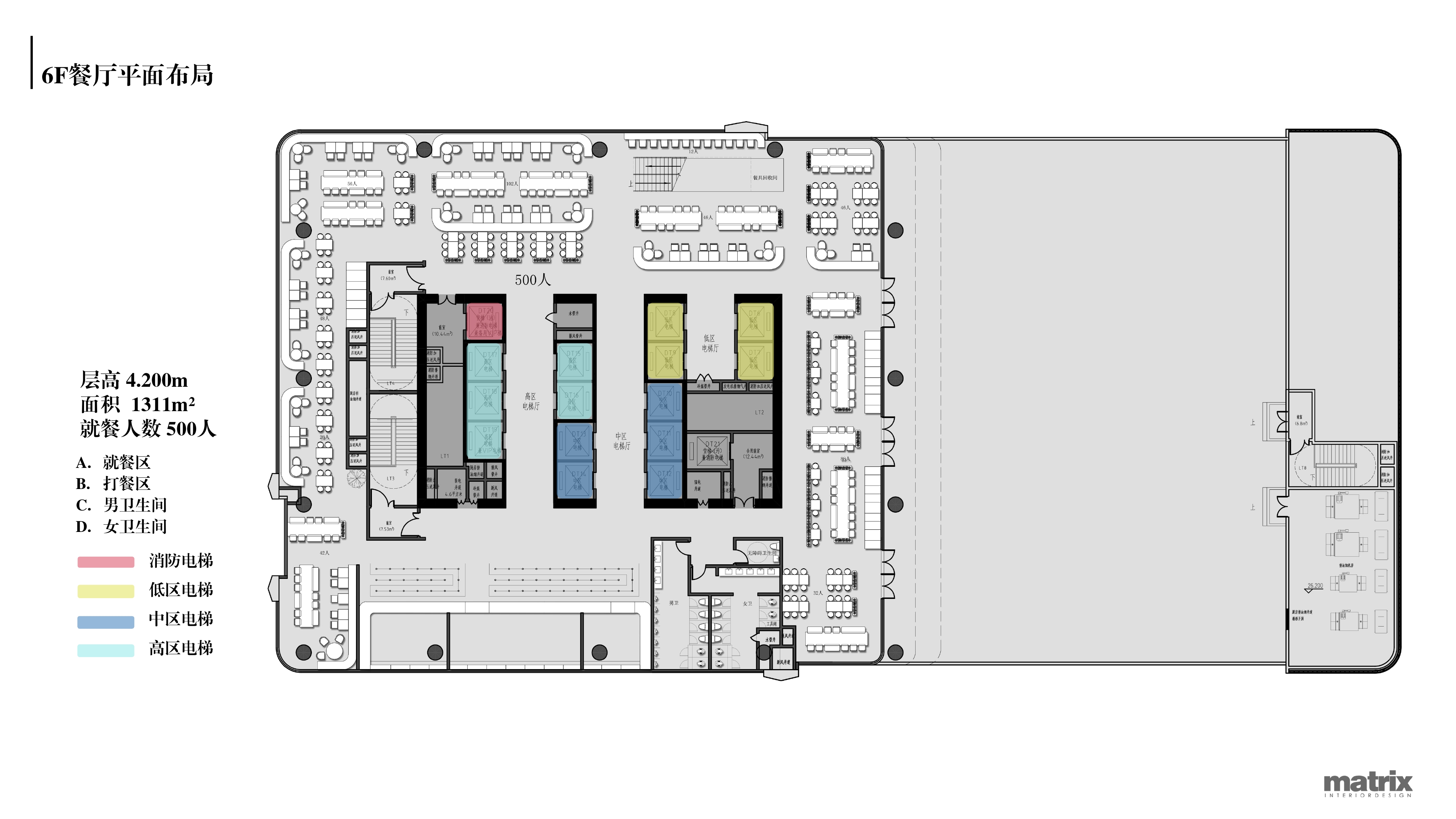
顶级游戏公司·三七互娱全球总部办公

2025-5-17/ 方案概念/ 办公概念/ 只看大图 阅读模式
仅供分享不做任何商业用途,版权归原作者所有,谢谢配合。

马上注册,结交更多好友,享用更多功能,让你轻松玩转社区。

您需要 登录 才可以下载或查看,没有帐号?注册

x
32.jpg 34.jpg 35.jpg 38.jpg 39.jpg 40.jpg 41.jpg 42.jpg 43.jpg 44.jpg 45.jpg 46.jpg 47.jpg 48.jpg 49.jpg 50.jpg 51.jpg 52.jpg 57.jpg 58.jpg 59.jpg 62.jpg 63.jpg 64.jpg 66.jpg 67.jpg 68.jpg 69.jpg 70.jpg

广州三七互娱全球总部方案文本.rar

119.56 MB, 下载次数: 1

售价: 7 交易币

标签: 办公空间
精华推荐
换一换

发表评论0

顶级游戏公司·三七互娱全球总部办公
拓者推荐
  • 晓风印月CAD施工图
  • 成都麓湖生态城项目
  • 春山秋水-南通启东·湖境桃源
  • LSD-苏州绿城凤起潮鸣
  • 上海高·尚领域别墅
  • 2025拓者年费+案例Vip会员说明!
  • 【 拓者年费--CAD图纸】
  • 【 拓者年费--户型方案】
  • 【 拓者年费--豪宅视频】
  • 【 拓者年费--灵感图库】