|
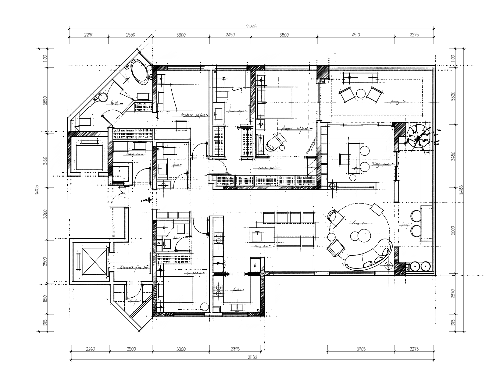
"关注东余、掌握户型优化逻辑” 项目类型:大平层 项目面积:239㎡ 项目坐标:重庆 优化设计:东余方案设计 原方案户型图
基本情况和设计需求 基本情况 1、家庭常住成员:3人 2、一个男孩、马上上初中 3、需要一个客房 设计需求 1、家政区需要考虑在外面、不纳入室内空间使用 2、客餐厅需要开阔、满足大厅的尺度感 3、需要一个书房满足公区动线使用和主卧的随时使用 4、需要中厨房、条桌、岛台、女主人喜欢下厨 5、主卧需要超大的衣帽间、女主人有很多衣物需要考虑 6、孩子的房间需要书桌、衣帽间、浴缸 7、空间需要有格调和品质、满足改善型使用 8、需要露台空间满足主卧使用、晚上可以看嘉陵江的夜景 手绘思路
彩平图
关注东余、服务全国设计师! 东余业务合作 1、高定户型优化合作 2、全案设计托管服务 3、SU模型表达 超高性价比、值得你拥有! 联系我:DYDD-001 官方抖音:东余方案设计(关注官方公众号 了解最新项目动态) 小红书:东余户型优化 公众号:东余方案设计 本文以及方案均为东余原创 已申请原创保护 转载注明出处! |
精华推荐
换一换



发表评论0