|
关于设计公司 ━ 行一空间设计——知行合一,笃行致远。言行表里如一,注重与实践的结合,善行而终才能达到成功的目标。 故而行一空间设计,不断提升自身设计的能力和素养,以注重实践设计落地的方式来完成行一的设计使命。
自然极简的温暖栖居 合肥万科未来之光224㎡
在当代都市生活的快节奏中,我们试图打造一个既能满足现代家庭多元需求,又能提供心灵栖息的理想居所。 本案通过“空间叙事”的设计手法,在功能和美学之间寻找平衡点,让每一个家庭成员都能找到属于自己的舒适区域。
客厅采用中性色为主色调,减少视觉的干扰,突出材质本身的质感。 通过极简的线条,和温润的饰面体块感,克制的色彩,自然的材质和巧妙的光影, 打造出一个既现代又温馨的会客空间,不仅是视觉上的简约,也是对舒适生活方式的精准表达,让业主在繁忙的工作中,回归家的宁静与放松
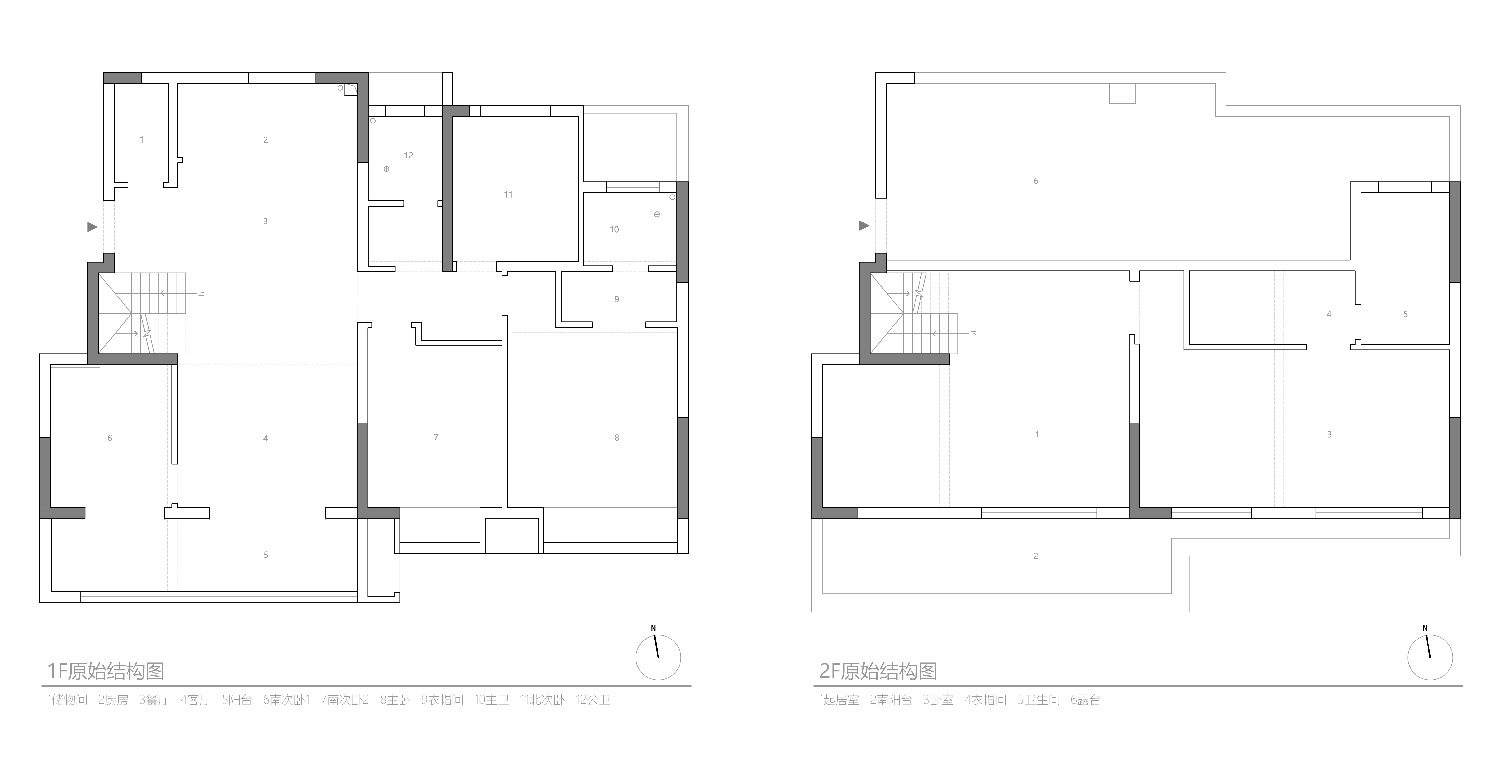
将原始结构中封闭的楼梯间转化为“光庭核心”使自然光线从二楼落地窗贯穿至一楼的客厅,形成气流透通的立体院落感, 这不仅仅是一个垂直交通的构件,更是连接物质与精神的媒介,我们通过解构传统楼梯的笨重感,创造出一个同时承载功能性与艺术性的过渡空间
将原始结构中的冗余的墙体拆除,将楼梯更改位置释放出餐厨空间,消弭边界,实现烹饪、用餐、社交、亲子手工的无缝串联。
原始结构中独立且割裂的卧室动线重构,形成睡眠区、衣帽间、梳妆、卫浴的环形动线,形成当代版“游园式”生活体验。 以床为中轴线,两侧嵌入式移门与通顶的衣柜形成镜像平衡,面向大面积的落地窗感受四季的变化,整个空间便成为了光影变幻的生活剧场,也是承载昼夜节律的能量舱
端景以黑色球形吊灯为视觉的焦点,2.8米的双台盆配合超大镜面的反射延伸维度,在绝对私密的主卧套间里,卫浴空间可以做到视觉连通, 通过透明的玻璃隔断可以使马桶区和淋浴区与干区形成光学叠加,从洗手台可直视窗外景观,当夕阳穿过淋浴玻璃, 在黑色岩板台面上投下流动的光影时,功能主义便在设计下升华为空间美学。
浴缸采用自砌的方式,深色的岩板作为饰面搭配银色瀑布龙头更显质感,这不仅仅是洗浴泡澡的容器,更是光影的雕刻装置。 当瀑布水流在深色石材上溅起珠涟般的水花,当罗马帘的光影从正午走向黄昏,每个沐浴时刻都成为值得期待的空间仪式。
窗洞的设计将窗外的景观以及室内的场景转化为动态的画作,当人物静坐其中,她的剪影成为框景的一部分, 当旅游带回来喜欢的陶瓶枯枝的影子随日光旋转,呈现不同的景致。克制的表达,让空间自己说话。
格局上为即将成为一名一年级的小学生规划出睡眠区、学习区、阅读区,曲面的桌边和弧度的处理, 消除直角隐患,将窗户采光最大化的引入室内,用设计守护好奇心的每一次闪光。
父母房规划出一间独立衣帽间实现收纳隐形化,低饱和度色彩融合极简主义创造出一个能同时满足身体放松与精神慰藉的治愈系休息空间。
客房没有冗余的装饰,木质温润,一方木色秘境的空间也可以成为思绪的容器。
项目名称 | 合肥 万科未来之光 设计机构 | 合肥行一空间设计 主案设计 | 王馗 项目面积 | 224㎡ 施工单位 | 合肥庭安装饰 设备单位 | 大金空调 威能地暖 | 杨文明 主材单位 | 奈思木作(全屋定制)、采盈木作(木饰面)、LSJ艺术涂料(微水泥)、星计划智能(智能灯光)、艺道楼梯、一尺一度窗帘软装、德利丰岩板 项目摄影 | 丛林空间摄影 |
精华推荐
换一换




很不错,感谢分享