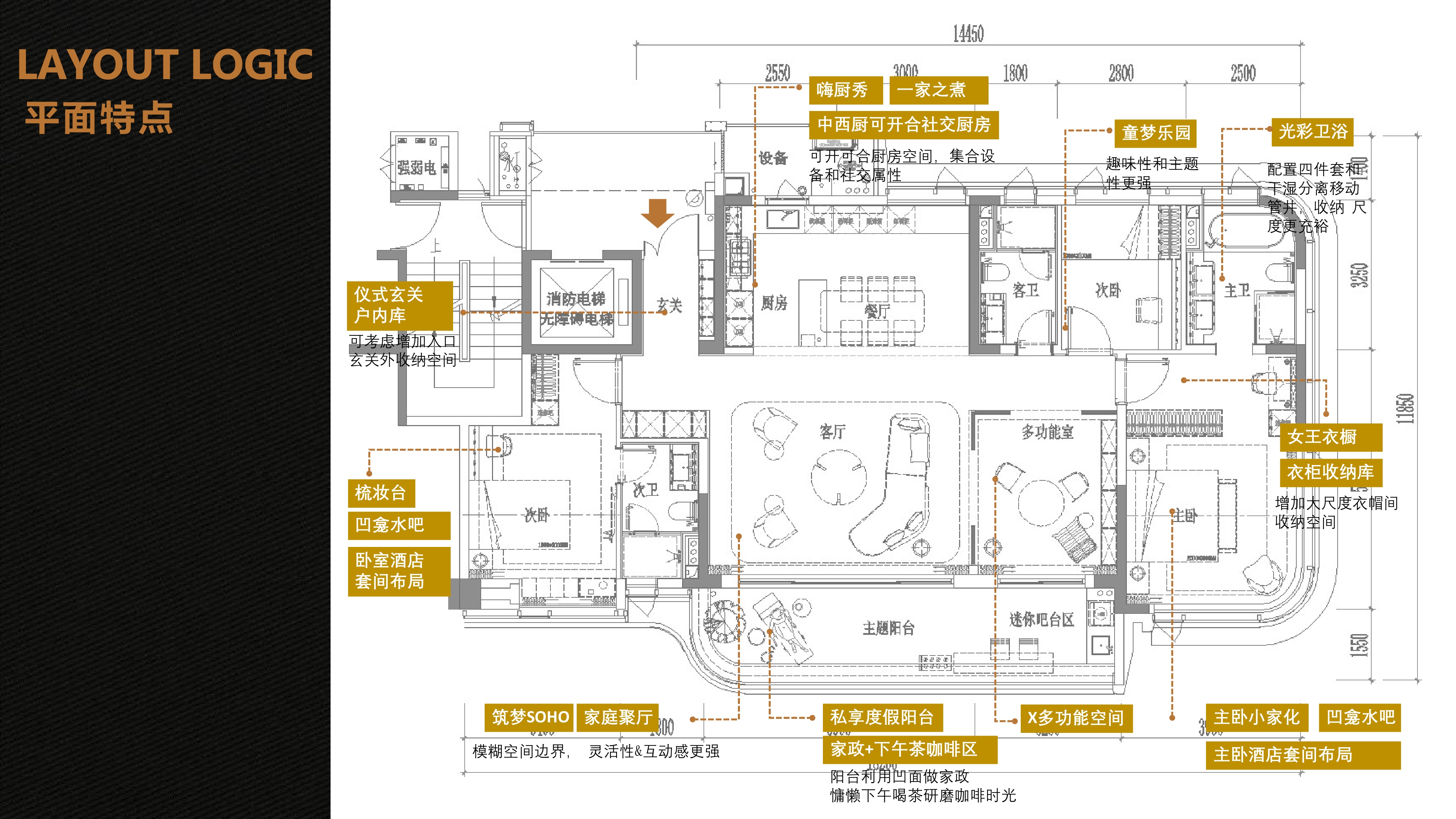
义乌绿城·凤起潮鸣175户型样板间

2025-8-31/ 方案概念/ 样板间/ 只看大图 阅读模式
仅供分享不做任何商业用途,版权归原作者所有,谢谢配合。

马上注册,结交更多好友,享用更多功能,让你轻松玩转社区。

您需要 登录 才可以下载或查看,没有帐号?注册

x
页面13.jpg 页面14.jpg 页面15.jpg 页面16.jpg 页面17.jpg

义乌绿城凤起潮鸣175样板间设计方案.rar

157.68 MB, 下载次数: 1

售价: 5 交易币

标签: 样板房
精华推荐
换一换

发表评论0

义乌绿城·凤起潮鸣175户型样板间
拓者推荐
  • 孟也新作-七都岛640法式别墅拓者空 600㎡极简别墅
  • 【武汉站—“樱”你而来】获客实操
  • 【武汉站—“樱”你而来】户型优化
  • 【武汉站—“樱”你而来】风水
  • LSD-宁波鳳栖雲庐合院样板间
  • CCD-华润 CCBD 889㎡设计方案
  • 孟也新作-七都岛640法式别墅
  • 【WSD世尊】建发·云启玉诸
  • 苏州绿城樾庐合院样板房
  • 无间设计-上海万科中兴傲舍
  • 2025拓者年费+案例Vip会员说明!
  • 【 拓者年费--CAD图纸】
  • 【 拓者年费--户型方案】
  • 【 拓者年费--豪宅视频】
  • 【 拓者年费--灵感图库】