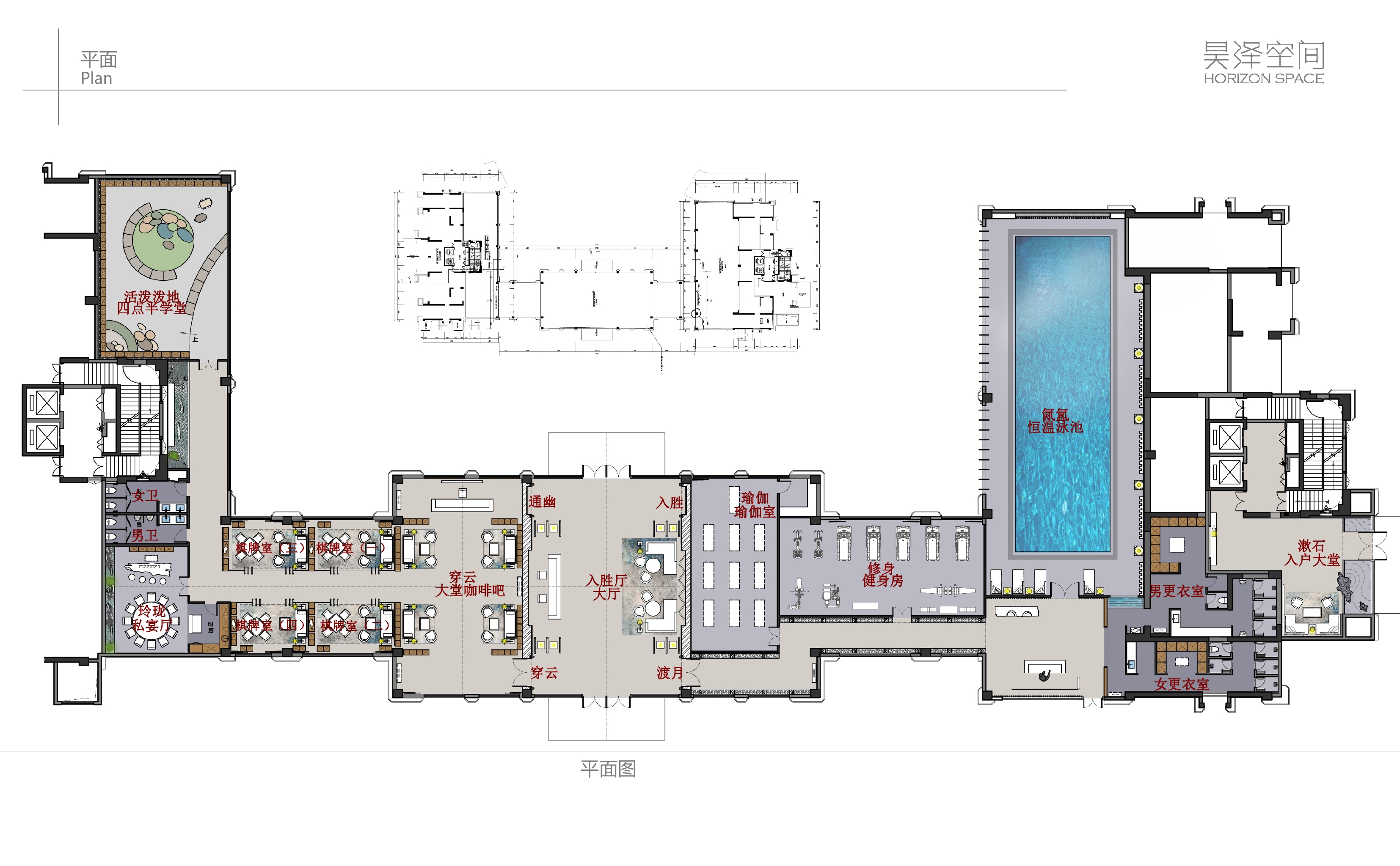
【昊泽设计】福州三盛长乐璞悦府新中式会所

2025-9-1/ 方案概念/ 售楼处/ 只看大图 阅读模式
仅供分享不做任何商业用途,版权归原作者所有,谢谢配合。

马上注册,结交更多好友,享用更多功能,让你轻松玩转社区。

您需要 登录 才可以下载或查看,没有帐号? 注册

x
页面01.jpg 页面04.jpg 页面05.jpg 页面06.jpg 页面08.jpg

昊泽 福州三盛长乐璞悦府会所公区室内设计 新中式.pdf

13.32 MB, 下载次数: 1

售价: 5 交易币

标签: 售楼处 会所
精华推荐
换一换

发表评论0

【昊泽设计】福州三盛长乐璞悦府新中式会所
拓者推荐
  • 重庆站】精工课(5月27-28日)
  • 郝泽伟设计工作室 | 《木朴》
  • 会讲方案的设计师,行走的印钞机
  • CCD·艺澍家|上海·甘云间!
  • 王小锋 | 1006㎡泉州建发缙湖别墅!
  • CCD-华润 CCBD 889㎡设计方案
  • 【召禾设计]天际江景超大平层方案
  • 【WSD世尊】建发·云启玉诸
  • CCD-华润玺宸上院中叠样板间
  • CCD-武汉绿城外滩玫瑰园别墅
  • 2025拓者年费+案例Vip会员说明!
  • 【 拓者年费--CAD图纸】
  • 【 拓者年费--户型方案】
  • 【 拓者年费--豪宅视频】
  • 【 拓者年费--灵感图库】