精华推荐
换一换
-
Lumin9 2025-9-19 19:26:16
Eios 发表于 2025-9-18 18:03
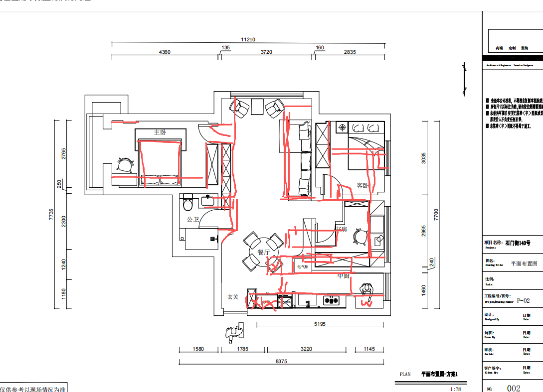
这有103啊 得房率太低了吧
哭死,烂尾了5年的楼,10年前的工艺,不是现在第四类住宅,吃大亏,但是自己实力也就到这么多了
-
Lumin9 2025-9-17 23:25:10
baiqin 发表于 2025-9-16 09:27
我觉得书 餐 客厅可以都打开 书餐中间可以加联动门 既不影响整体也可以关门不影响工作学习 而且客 ...
是个很不错的建议,我看到有邻居在这么做了,你这个也提醒了我,我可以考虑在我这个方案上面直接做联动门,就是书房开门的那个拐角,不砌墙,直接一个L型的联动门,你感觉可行吗
-
baiqin 2025-9-16 09:27:23
Lumin9 发表于 2025-9-14 19:06
我发的方向可能和大佬们不太一样,客厅的窗户是西向的
我觉得书 餐 客厅可以都打开 书餐中间可以加联动门 既不影响整体也可以关门不影响工作学习 而且客房进门也没有那么局促是个很不错的建议,我看到有邻居在这么做了,你这个也提醒了我,我可以考虑在我这个方案上面直接做联动门,就是书房开门的那个拐角,不砌墙,直接一个L型的联动门,你感觉可行吗



我发的方向可能和大佬们不太一样,客厅的窗户是西向的