|
本帖最后由 拓者r58r4xa5 于 2025-9-20 20:16 编辑 关注东余 掌握全案设计逻辑 项目类型:高层 项目面积:74㎡ 项目坐标:重庆
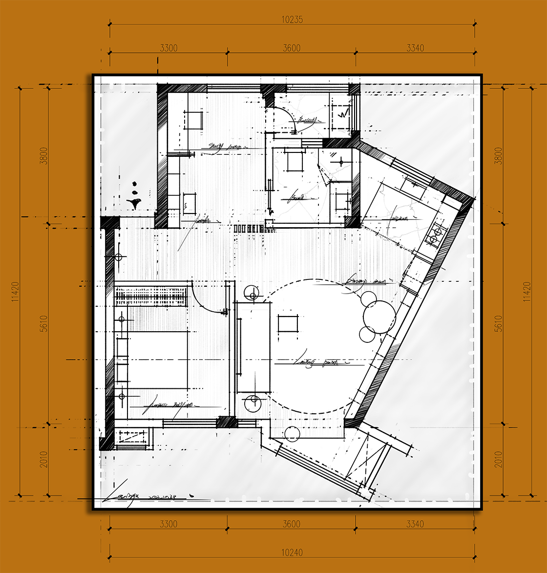
优化设计:东余户型优化 原始结构图
基本情况和设计需求 基本情况 1、家庭常住成员:1人(有一只猫咪) 2、父母不会过来居住 3、需要考虑书房空间、用办公的要求 4、装修预算30万 设计需求 1、希望空间能够温馨和个性化 2、书房空间需要靠窗考虑 3、需要一个阳台空间满足家政和洗衣、晾晒 4、有一只猫咪(兜兜)需要考虑它的专属区域 5、餐厅需要考虑2~3人同时就餐的情况、周末姐妹会一起吃饭 6、不需要考虑传统电视背景墙、需要放书和收纳为主 优化思路 1、玄关端景利用背景墙营造入户的景点 让归家的瞬间感受到家的温馨和独立于工作场景的氛围感。 2、书墙取代电视墙 整墙收纳系统采用木色开放式书架,搭配移动投影仪。 底部预留宠物通行隧道,侧边阳台隐藏猫砂盆区域,实现好用与好看的平衡。 同时搭配弧形沙发让观影也是平行的视距 ! 3、 卡座+圆桌组合 利用原本的墙面结合做卡座让该区域使用不单单是就餐、喝喝下午茶、临时办公也可以。 并且搭配圆桌让临时人数增多也丝毫不担心局促 4、窗景书房盒子+家政阳台 将采光最佳处留给办公区,得到优质的视野又避免重庆南向夏天的曝晒。 旁边开辟家政区,墙面洞洞板收纳清洁工具。 家政洗衣都在这集中处理没烦恼! 5、 利用小空间融合猫宠系统 利用阳台不规则的异形空间沿墙面设置猫爬架+跳台系统,打造人猫共乐的立体活动路线。 手绘思路
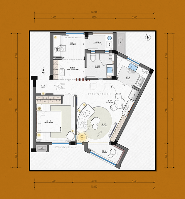
平面方案布置图
关注东余、服务全国设计师! 东余业务合作 1、高定户型优化合作 2、SU模型表达 3、全案设计课程 超高性价比、值得你拥有! 联系我:DYDD-001 官方公众号:东余方案设计(关注官方公众号 了解最多项目完整动态) 本文以及方案均为东余原创 已申请原创保护 转载注明出处! |
精华推荐
换一换



发表评论0