施工图【CCD】深圳宝能中心首层大堂

2025-9-22/ CAD图纸/ 办公空间/ 只看大图 阅读模式
仅供分享不做任何商业用途,版权归原作者所有,谢谢配合。

马上注册,结交更多好友,享用更多功能,让你轻松玩转社区。

您需要 登录 才可以下载或查看,没有帐号?注册

x
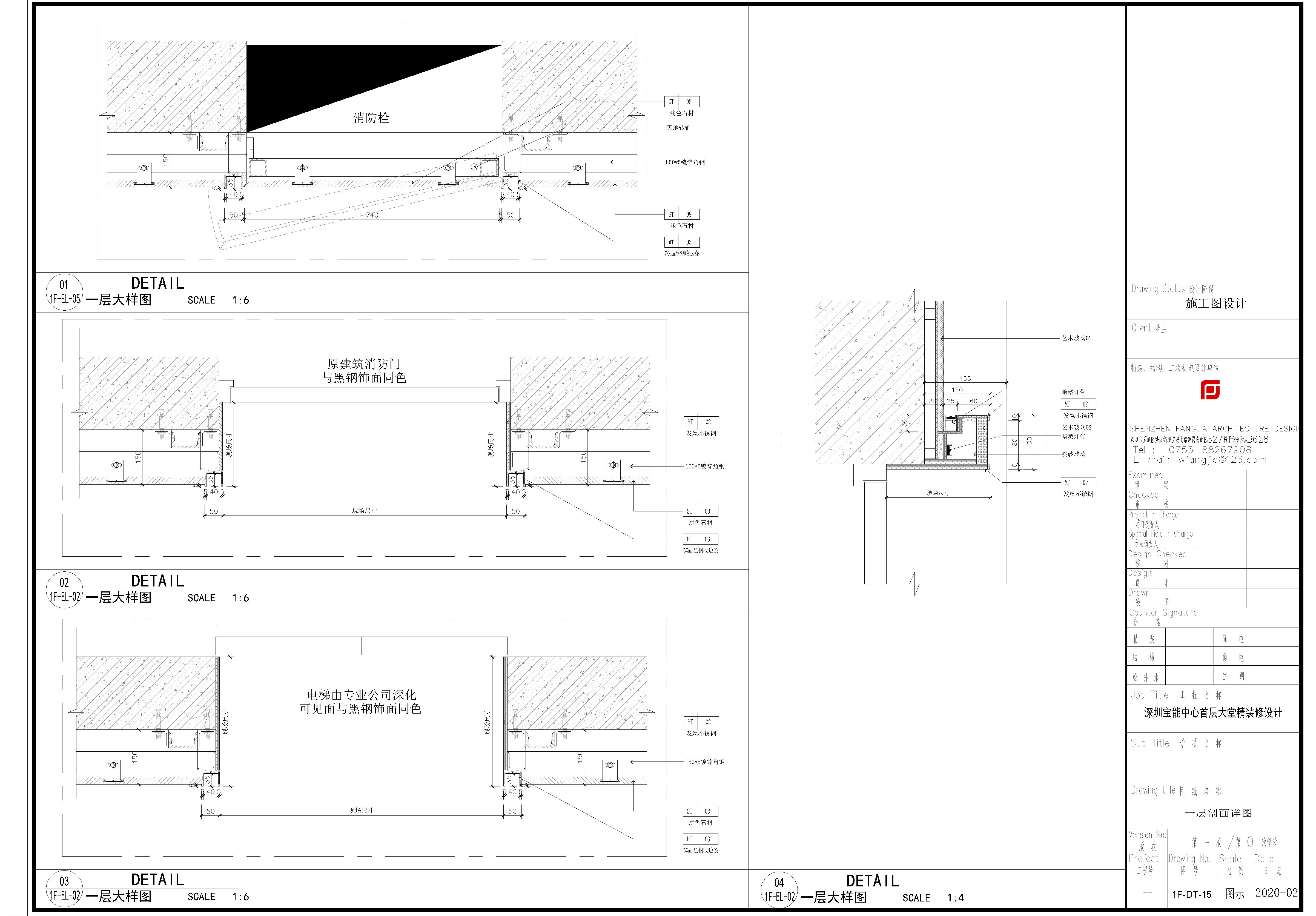
1.jpg 2.jpg 3.jpg 4.jpg 5.jpg 6.jpg 7.jpg 8.jpg 8e149fd1-b0b6-4c67-a8b7-7d2426c7ad23(1).jpg 15fc0e01-1391-4d2b-abb6-bb6557abf0fc(1).jpg edfc8bc8-ff05-46f4-a9a7-2d2d227b79f4(1).jpg f5b674e3-d867-4ab4-9c17-52ad329f2f6d(1).jpg

【CCD】深圳宝能中心首层大堂丨CAD装饰施工图蓝图 物料 效果图丨184M丨2020.02设计.rar

126.9 MB, 下载次数: 0

售价: 7 交易币  [购买]

标签: 办公
精华推荐
换一换

发表评论0

施工图【CCD】深圳宝能中心首层大堂
拓者推荐
  • 【广州站】设计师创业课
  • 【广州站】收纳设计思维训练营
  • 【广州站】户型优化总监内训课
  • 【广州站】 风水丨设计与签单课
  • 【广州站】获客实操训练营
  • 2025拓者年费+案例Vip会员说明!
  • 【 拓者年费--CAD图纸】
  • 【 拓者年费--户型方案】
  • 【 拓者年费--豪宅视频】
  • 【 拓者年费--灵感图库】