|
本帖最后由 拓者r58r4xa5 于 2025-9-25 20:32 编辑 关注东余 掌握全案设计逻辑 项目类型:大平层 项目面积:191㎡ 项目坐标:四川
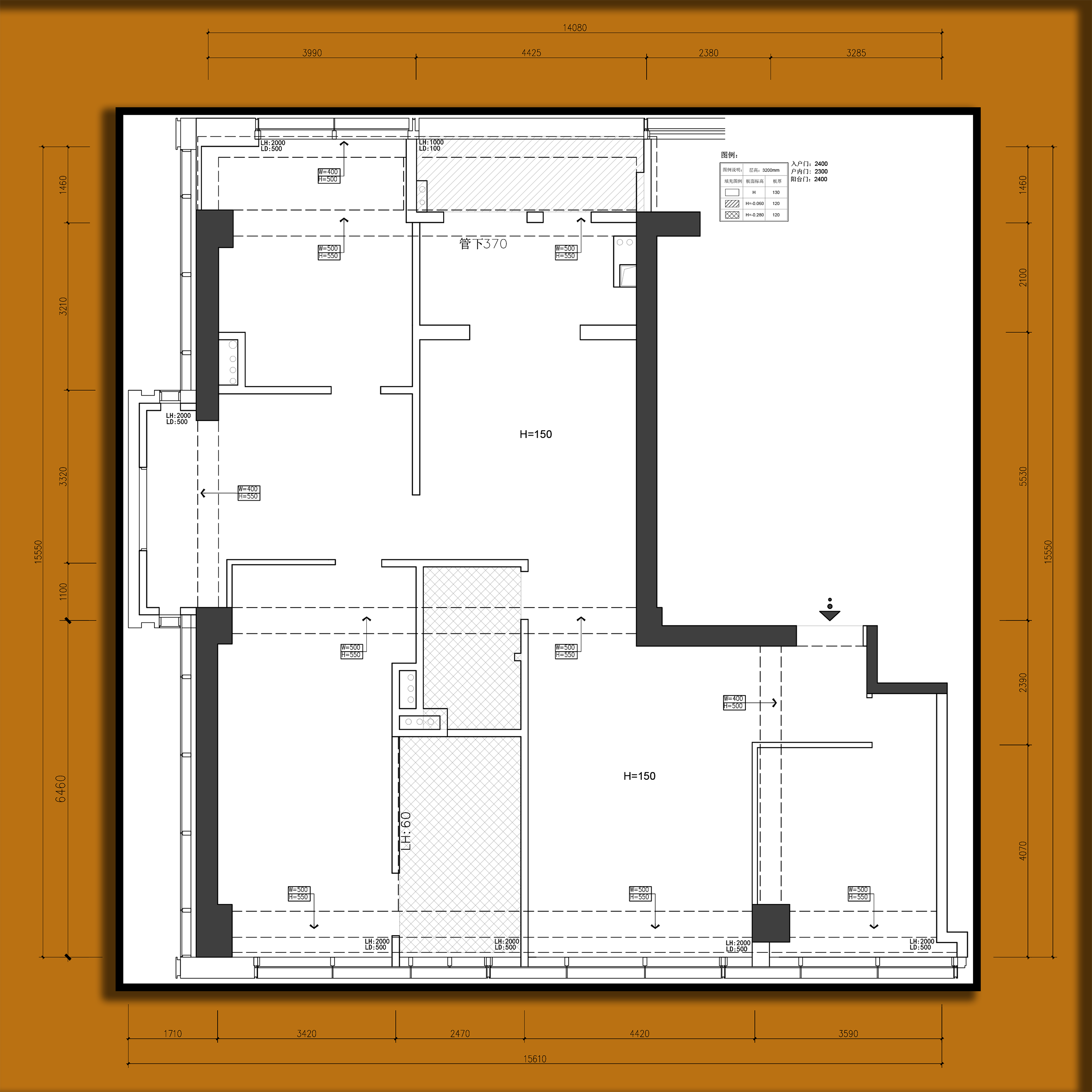
优化设计:东余户型优化 原始结构图
基本情况和设计需求 基本情况 1.家庭常住成员:3口人(夫妻2人和1个孩子) 2.男娃娃上初中二年级 3.需要一个客房备用(主要是给到父母春节或者寒暑假过来居住) 4.女主人是自媒体生活类博主 5.装修预算90万 设计需求 1.入户需要较多的玄关收纳、长辈房门不要开在通行过道上 2.有一个卫生间是暗卫、希望设计师考虑一些自然光并杜绝封闭性 3.客厅考虑紧凑围合、简单干净、需要偶尔观影使用 4.需要一个喝茶的区域、女主人和父母都有这方面的爱好 5.餐厅考虑复合型(办公和就餐)并且考虑较多人使用(有拍摄的需求) 6.女主人需要一个瑜伽区、要有自然光 7.儿童房需要书桌并且尽可能多考虑一点书柜、孩子成长期物品多 8.厨房需要中岛满足烹饪的需求并考虑封闭式厨房(饮食还是炒菜为主) 9.需要生活阳台(不封闭使用) 110.主卧需要套房空间并且要有步入式衣帽间、主卫需要浴缸 手绘思路
平面方案布置图
关注东余、服务全国设计师! 东余业务合作 1、高定户型优化合作 2、SU模型表达 3、全案设计课程 超高性价比、值得你拥有! 联系我:DYDD-001 官方公众号:东余方案设计(关注官方公众号 了解最多项目完整动态) 本文以及方案均为东余原创 已申请原创保护 转载注明出处! |
精华推荐
换一换




发表评论0